Beschrijving
Sommige huizen voelen direct goed zodra je binnenstapt. Dit is er zo één. Gelegen in de geliefde en kindvriendelijke wijk Waldijk, woon je hier in een rustige, prettige omgeving met alle voorzieningen binnen handbereik. Zowel het centrum van Uitgeest als dat van Heemskerk is eenvoudig te bereiken per fiets of auto. Ook openbaar vervoer en uitvalswegen richting Haarlem, Alkmaar en Amsterdam liggen op korte afstand, waardoor je hier de perfecte combinatie vindt van comfortabel wonen en uitstekende bereikbaarheid.
Dit royale familiehuis biedt ruimte, licht en comfort in overvloed. Gelegen op een prachtig perceel van maar liefst 503 m², een fijne tuin met meerdere sfeervolle zitplekken en maar liefst 7 slaapkamers en 2 badkamers, is dit een woning die met je meegroeit. Of je nu een groot gezin hebt, veel thuiswerkt of simpelweg waarde hecht aan ruimte om je heen.
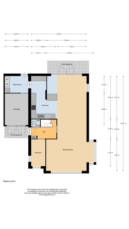
Begane grond
De begane grond kenmerkt zich door ruimte, licht en een prettige indeling. De houten vloer zorgt voor een warme uitstraling en de royale woonkamer met zij-erker biedt een prachtige lichtinval. Dankzij de ruime opzet is er volop plaats voor een grote eettafel en een comfortabele zithoek.
De open keuken met schiereiland is compleet uitgerust met een Boretti gasfornuis met twee ovens, Boretti koelkast, vaatwasser en afzuigkap. Dit is een plek waar kookliefhebbers hun hart kunnen ophalen. De royale hoeveelheid werk- en bergruimte maakt de keuken niet alleen praktisch, maar ook bijzonder comfortabel. Tijdens het koken blijf je in verbinding met de woonkamer en is zo ideaal voor gezinnen en gezellige etentjes.
Via de keuken loop je zo de bijkeuken in, waar de wasmachine, droger en eventueel tweede koelkast netjes kunnen worden geplaatst. Vanuit hier heb je toegang tot zowel de garage als de tuin, wat het dagelijks gebruik bijzonder praktisch maakt.
Daarnaast bevindt zich op de begane grond een extra kamer, perfect als thuiskantoor, speelkamer, hobbyruimte of slaapkamer. Een rustige en veelzijdige ruimte die zich moeiteloos aanpast aan jullie woonwensen.
Eerste verdieping
Op de eerste verdieping bevinden zich vier ruime slaapkamers. De master bedroom beschikt over een inpandige badkamer, die tevens via de overloop bereikbaar is. Deze badkamer is compleet uitgevoerd met een douche, ligbad, toilet en wastafelmeubel. De gehele verdieping is afgewerkt met een nette laminaatvloer, wat zorgt voor een rustige en verzorgde uitstraling.
Tweede verdieping
De tweede verdieping telt nog eens drie slaapkamers. Twee daarvan hebben een speelse indeling vanwege de kapconstructie, wat zorgt voor extra charme en karakter. Daarnaast is er een tweede badkamer met douche en wastafelmeubel, ideaal voor oudere kinderen, gasten of logees. Verder beschikt een van de kamers nog over een royale inloopkast. Ook hier is de verdieping afgewerkt met een nette laminaatvloer. De cv-ketel (2025) is eveneens op deze verdieping geplaatst.
Achtertuin
De achtertuin is werkelijk een plek om van te genieten. Ruim, verzorgd aangelegd en voorzien van meerdere zitmogelijkheden. Onder de houten overkapping groeien druiven, waarvan de huidige bewoners zelfs hun eigen druivensap maken, een bijzonder en charmant detail.
Daarnaast is er een sfeervolle kapschuur met overkapping waar je tot in de late uurtjes comfortabel kunt zitten. Of het nu gaat om een zomerse barbecue, een ontspannen ochtend met koffie in de zon of een goed glas wijn, hier kan het allemaal. In de schuur is bovendien voldoende ruimte voor tuinspullen en opslag.
Langs de zijkant van de tuin bevindt zich een vlonder waar je kunt vissen, een unieke toevoeging die het buitenleven extra bijzonder maakt. De voortuin is royaal opgezet en de oprit biedt ruimte voor twee auto’s.
Bijzonderheden
• Perceel 503 m²
• Maar liefst 7 slaapkamers
• 2 badkamers
• 11 zonnepanelen
• Cv-ketel vernieuwd in 2025
• Houten vloer op de begane grond
• Grote, lichte woonkamer met zij-erker
• Open keuken met Boretti apparatuur en gasfornuis
• Bijkeuken met was- en drogeraansluiting
• Aangebouwde garage
• Ruime oprit voor twee auto’s
Deze bijzonder ruime woning combineert comfort, sfeer en een uitstekende ligging. Een plek waar herinneringen worden gemaakt, waar kinderen kunnen opgroeien en waar je iedere dag met plezier thuiskomt.
Plattegronden
183214927_haverkamplaan_3_tuin_20260320_de4630.jpg
183214927_haverkamplaan_3_begane_grond_20260317_e7a140.jpg
183214927_haverkamplaan_3_1e_verdieping_20260317_03e7fe.jpg
183214927_haverkamplaan_3_2e_verdieping_20260317_91010e.jpg