Beschrijving

Aan de rustige en kindvriendelijke Bramertweg in Urmond staat deze leuke tussenwoning. Een fijne plek waar je direct merkt dat alles met zorg is bijgehouden. Dankzij de kunststof kozijnen, de lichte ruimtes en de praktische indeling is dit een ideale woning voor starters, koppels of een jong gezin. De buurt is groen, rustig en ligt gunstig ten opzichte van scholen, winkels en uitvalswegen richting Sittard, Geleen en Maastricht.

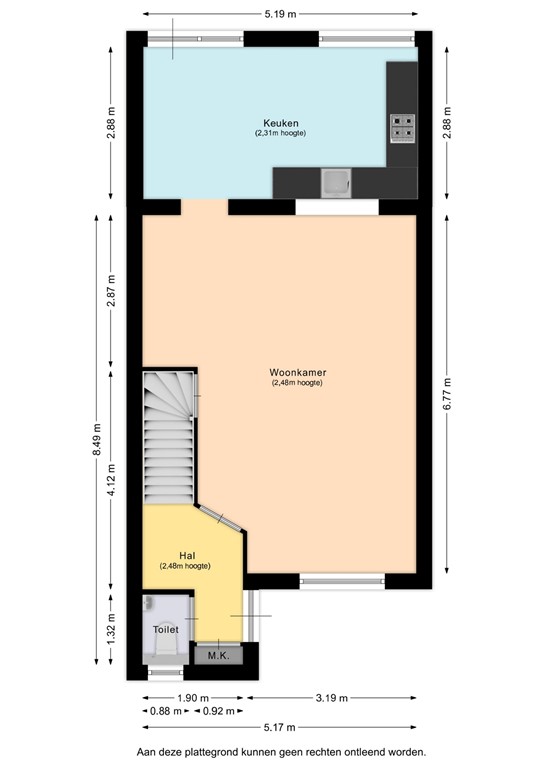
De woning zelf biedt verrassend veel leefruimte. Op de begane grond vind je een gezellige woonkamer met veel lichtinval en een open keuken die direct toegang geeft tot de tuin. Op de eerste verdieping liggen twee keurige slaapkamers en een compleet uitgevoerde badkamer met ligbad. De tweede verdieping is bereikbaar via een vaste trap en is multifunctioneel in te delen: ideaal als extra slaapkamer, werkplek of bergruimte.

Zowel de voor- als achtertuin zijn onderhoudsvriendelijk aangelegd. De achtertuin biedt bovendien veel privacy, omdat er aan de achterzijde geen bebouwing is en deze beschikt over een handige stenen berging met elektra en verlichting. Dankzij een eigen achterom is de tuin praktisch bereikbaar voor fietsen of tuinspullen.

Indeling

Bij aankomst valt direct op hoe verzorgd de woning oogt. De voortuin is netjes en onderhoudsarm aangelegd, waardoor de entree uitnodigend en strak oogt. Via de voordeur stap je binnen in de ontvangsthal, waar een nette laminaatvloer, een praktische garderobe en een modern zwevend toilet met fonteintje je welkom heten.

Vanuit de hal loop je door naar de woonkamer, een warme en sfeervolle leefruimte met een doorlopende laminaatvloer die de kamer nog ruimer maakt. Dankzij de kunststof kozijnen komt er volop daglicht binnen, wat zorgt voor een lichte en open sfeer. Er is voldoende plek voor zowel een comfortabele zithoek als een royale eethoek, ideaal voor gezellige avonden met familie of vrienden.

De woonkamer staat in directe verbinding met de open keuken, waardoor beide ruimtes mooi in elkaar overlopen. De keuken biedt voldoende werkruimte en is verbonden met zowel de buiten als binnenruimte. Hier vind je alle benodigde inbouwapparatuur, zoals een 4-pits gasfornuis, afzuigkap, combi-oven. De deur naar de achtertuin zorgt niet alleen voor veel licht, maar maakt het ook makkelijk om binnen en buiten met elkaar te verbinden perfect voor een ontbijt in de ochtendzon of een barbecue op een warme zomeravond.

Eerste verdieping

Op de eerste verdieping kom je terecht op een overzichtelijke overloop, waar een onderhoudsvriendelijke tegelvloer ligt. Vanaf hier heb je toegang tot twee slaapkamers en de badkamer.

Beide slaapkamers zijn keurig afgewerkt met een nette laminaatvloer en kunststof kozijnen. Dankzij de aanwezige rolluiken kun je de kamers volledig verduisteren, wat prettig is voor een goede nachtrust of om een koele werkplek te creëren tijdens warme dagen. De ruimtes zijn licht, praktisch in te delen en daardoor geschikt als hoofdslaapkamer, kinderkamer of thuiswerkplek.

De badkamer bevindt zich eveneens op deze verdieping en is volledig betegeld. Hier vind je alles wat je nodig hebt voor dagelijks comfort: een ligbad, een zwevend badkamermeubel met wastafel en een spiegelkast met verlichting, een tweede toilet en een radiator. Het is een verzorgde en complete ruimte waar je de dag ontspannen kunt beginnen of juist rustig kunt afsluiten.

Tweede verdieping

Via een vaste trap afgewerkt met tapijt, bereik je de tweede verdieping. Deze ruime zolderverdieping is voorzien van de witgoedaansluitingen en herbergt de cv-installatie. Dankzij de goede afmetingen kan deze verdieping ook gebruikt worden als logeerruimte, werkplek of hobbykamer.

Tuin

De achtertuin is volledig onderhoudsvriendelijk aangelegd met sierbestrating, waardoor je hier nauwelijks omkijken naar hebt. Dankzij de hoge houten erfafscheiding geniet je van optimale privacy en kun je in alle rust ontspannen. De tuin is ruim genoeg voor een comfortabele loungeset, een buitentafel of een speelhoek voor kinderen.

Achterin de tuin staat een stevige stenen berging, voorzien van elektra en verlichting. Ideaal voor het stallen van fietsen, het opbergen van tuingereedschap of het creëren van een kleine hobbyruimte. De tuin beschikt daarnaast over een praktische eigen achterom, waardoor je gemakkelijk met fietsen, afvalcontainers of tuinspullen in en uit kunt.

Dankzij de gunstige ligging kun je hier op verschillende momenten van de dag genieten van zon en schaduw. Een fijne, onderhoudsvriendelijke buitenruimte waar je het hele jaar door plezier van hebt.

Bijzonderheden

- Energielabel C
- Verzorgde tussenwoning op een rustige locatie
- Volledig voorzien van kunststof kozijnen
- Lichte woonkamer met laminaatvloer
- Open keuken met inbouwapparatuur
- Twee ruime slaapkamers met rolluiken
- Vaste trap naar de tweede verdieping
- Zolder met witgoedaansluitingen en cv-installatie
- Onderhoudsvriendelijke en privacy achtertuin (geen directe bebouwing achter de woning)
- Berging met elektra en verlichting
- Eigen achterom

De informatie is met de nodige zorgvuldigheid door ons samengesteld. Er kunnen geen rechten worden ontleend aan deze advertentie en brochure en aanvaarden wij geen enkele aansprakelijkheid voor enige onvolledigheid, onjuistheid of anderszins, dan wel de gevolgen daarvan. Maatvoeringen en oppervlakten zijn indicatief.

Kenmerken