| Prijs | € 375.000,- k.k. |
| Type object | Appartement, galerijflat |
| Woonoppervlakte | 86 m² |
| Aanvaarding | In overleg |
| Status | Verkocht |
Ben jij op zoek naar een fijn appartement aan de rand van het bruisende centrum van Veghel? Dan is Sluisstraat 90 precies wat je zoekt! Op een aantrekkelijke locatie, aan de rand van het centrum, bevindt zich dit speelse en moderne 3-kamerappartement. Dit gezellige appartement is een uitstekende plek om je eigen stek te creëren. Het appartement is gelegen op de 2e en 3e verdieping en maakt onderdeel uit van de Rembrandtboulevard – een moderne woonwijk die in 2006 is ontwikkeld met oog voor kwaliteit, comfort en bereikbaarheid. Dit appartement is uitermate geschikt voor zowel starters als ouderen die comfortabel en gelijkvloers willen wonen. Dankzij de modernisering in 2022 voldoet het aan de hedendaagse woonwensen: instapklaar, onderhoudsarm en praktisch ingedeeld. Voor ouderen is de aanwezigheid van een lift, het gelijkvloerse woonprogramma en de goede bereikbaarheid een groot pluspunt. Starters vinden hier een moderne, sfeervolle woning op een toplocatie dicht bij het centrum.
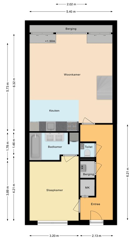
Via de gezamenlijke entree, voorzien van een bellentableau, brievenbussen en zowel een trap als een lift, bereik je op de eerste verdieping het appartement. Zowel een trap als een lift, maakt dit appartement ideaal voor jong én oud! Via de galerij aan de achterzijde van het complex is het appartement te bereiken. Vanuit de entree/hal zijn de meterkast, toiletruimte, berging met c.v.-opstelling, een slaapkamer met aangrenzende badkamer en de lichte woonkamer met open keuken bereikbaar. De slaapkamer aan de achterzijde is ca. 12 m² groot en heeft directe toegang tot de badkamer met bad/douche-combinatie, wastafel en wasmachineaansluiting. Net als de hal en woonkamer is deze kamer afgewerkt met een laminaatvloer in lichte tint.
De woonkamer (ca. 30 m²) aan de voorzijde is heerlijk licht en biedt via de vide een speelse verbinding met de bovenverdieping. De open keuken is uitgerust met een gaskookplaat, afzuigkap, vaatwasser en hetelucht-oven. Een vaste trap in de woonkamer leidt naar de entresol, een multifunctionele ruimte van ca. 25 m². Ideaal als extra slaapkamer, werkplek of zitkamer. Vanuit hier is tevens het ruime dakterras van ca. 13 m² toegankelijk – een heerlijke plek om buiten te genieten.
Het appartement beschikt over een heerlijk balkon waar je in alle rust kunt ontspannen. Gelegen op een gunstige ligging ten opzichte van de zon is het hier volop genieten – of je nu 's ochtends rustig een kop koffie drinkt of 's avonds tot laat buiten zit met een goed glas wijn. Het balkon is ruim genoeg voor een zitje of kleine loungeset, waardoor je er echt een verlengstuk van je woonkamer van kunt maken.
* Bouwjaar: 2006 – dus volledig geïsoleerd en energiezuinig * Vide zorgt voor extra licht en ruimtegevoel * Eigen parkeerplaats + berging * Ruim balkon aan de achterzijde met vrij uitzicht * Uitstekende bereikbaarheid en ligging op loopafstand van het centrum * In 2022 gemoderniseerd en stijlvol afgewerkt
| Referentienummer | 00030 |
| Vraagprijs | € 375.000,- k.k. |
| Servicekosten | € 205,- |
| Elektra | € 41,50 |
| Gas | € 97,77 |
| Water | € 15,- |
| Status | Verkocht |
| Aanvaarding | In overleg |
| Laatste wijziging | Woensdag 15 oktober 2025 |
| Type object | Appartement, galerijflat |
| Woonlaag | 3e woonlaag |
| Soort bouw | Bestaande bouw |
| Toegankelijkheid | Senioren |
| Bouwperiode | 2006 |
| Dakbedekking | Dakpannen |
| Type dak | Zadeldak |
| Isolatievormen | Dakisolatie Dubbel glas HR-glas Muurisolatie Volledig geïsoleerd |
| Woonoppervlakte | 86 m² |
| Woonkameroppervlakte | 20,5 m² |
| Keukenoppervlakte | 34,13 m² |
| Inhoud | 308 m³ |
| Oppervlakte externe bergruimte | 4,4 m² |
| Oppervlakte gebouwgebonden buitenruimte | 13 m² |
| Aantal bouwlagen | 2 |
| Aantal kamers | 2 (waarvan 1 slaapkamer) |
| Aantal badkamers | 1 (en 1 apart toilet) |
| Ligging | Dichtbij openbaar vervoer In centrum Nabij school Nabij snelweg Vrij uitzicht |
| Energielabel | A |
| CV ketel | Intergas |
| Warmtebron | Gas |
| Bouwjaar | 2006 |
| Combiketel | Ja |
| Eigendom | Eigendom |
| Aantal parkeerplaatsen | 1 |
| Warm water | CV-ketel |
| Verwarmingssysteem | Centrale verwarming |
| Ventilatie methode | Natuurlijke ventilatie |
| Badkamervoorzieningen | Douche Dubbele wastafel Ligbad Wasmachineaansluiting Wastafelmeubel |
| Glasvezelaansluiting aanwezig | Ja |
| Heeft schuur/berging | Ja |
| Heeft een dakraam | Ja |
| Heeft zonwering | Ja |
| Ingeschreven bij de KvK | Ja |
| Jaarlijkse vergadering | Ja |
| Periodieke bijdrage | Ja |
| Reservefonds | Ja |
| Meer jaren onderhoudsplan | Ja |
| Onderhoudsverwachting | Ja |
| Opstal verzekering | Ja |
| Kadastrale aanduiding | Veghel H 1797 |
| Omvang | Appartementsrecht of complex |
| Eigendomsituatie | Zie akte |
| Kadastrale aanduiding | Meierijstad H 1797 |
| Omvang | Appartementsrecht of complex |
| Eigendomsituatie | Zie akte |
| Kadastrale aanduiding | Veghel H 1797 |
| Omvang | Appartementsrecht of complex |
| Eigendomsituatie | Zie akte |