Beschrijving
Instapklaar halfvrijstaand woonhuis uit 2017 dat helemaal voldoet aan de moderne eisen van comfort en stijl. Gelegen aan de rand van het dorp in een rustige woonomgeving nabij de dagelijkse voorzieningen en het groene buitengebied, is dit de ideale woning voor mensen die op zoek zijn naar comfort en gemak.
Met een slaapkamer en de mogelijkheden voor een badkamer op de begane grond (het leidingwerk is al aanwezig) is de woning levensloopbestendig te gebruiken maar daarmee is dit huis ook perfect voor gezinnen met opgroeiende kinderen en doorstromers die op zoek zijn naar ruimte, comfort en gemak. De fraaie woonkamer met open keuken, de 2 slaapkamers en de badkamer op de verdiepingen bieden genoeg ruimte voor iedereen.
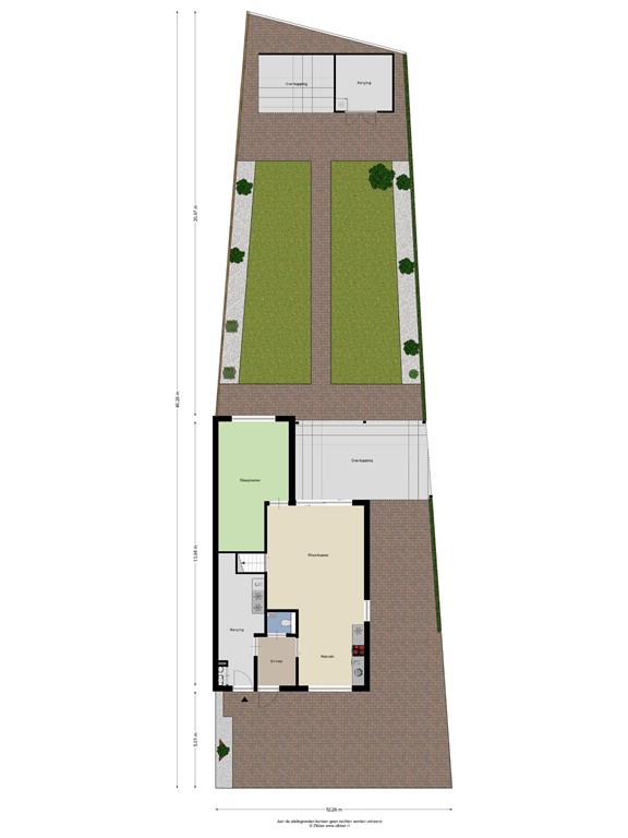
Met een woonoppervlakte van 147 m² biedt deze woning voldoende ruimte voor het hele gezin. Het perceel heeft een oppervlakte van maar liefst 432 m², waarvan het grootste gedeelte bestemd is als achtertuin. Hier kun je volop genieten van het buitenleven, heerlijk ontspannen in de zon of onder één van de twee overkapping. Dankzij de inpandige berging, het tuinhuis en de brede oprit is er genoeg parkeerplek en bergruimte.
Duurzaamheid is ook een belangrijk aspect van deze woning. De woning is volledig geïsoleerd, beschikt over 10 zonnepanelen en heeft energielabel A dat ervoor zorgt dat je energieverbruik beperkt blijft.
Indeling
Begane grond:
De entree geeft toegang tot de hal. Vanuit de hal met tegelvloer zijn de toiletruimte, de keuken en de berging bereikbaar. De open keuken is aan de voorzijde van de woning gelegen en is voorzien van een tegelvloer en een moderne keukenopstelling met apparatuur (inductiekookplaat, afzuigkap, koelkast, vaatwasser, oven) en voldoende werk- en kastruimte. De fraaie woonkamer (ca. 27 m²) is eveneens voorzien van een tegelvloer en heeft veel lichtinval door de schuifpui aan de achterzijde met toegang naar het overdekt terras. Aansluitend aan de woonkamer is de slaapkamer gelegen. Deze ruime slaapkamer (ca. 21 m²) is voorzien van een laminaatvloer en airco. In de slaapkamer is leidingwerk aanwezig om een badkamer te realiseren.
De inpandige berging / bijkeuken is voorzien van een tegelvloer en een loopdeur. Hier bevinden zich de meterkast en de witgoedaansluitingen. De begane grond is voorzien van vloerwarming.
Eerste verdieping
1e verdieping:
Op de eerste verdieping bevinden zich 2 slaapkamers, de badkamer en een berging. De overloop en slaapkamers zijn afgewerkt met een doorlopende laminaatvloer en de slaapkamers zijn respectievelijk circa 16 en 15 m² groot. De badkamer is voorzien van een ligbad, douche, badkamermeubel met wastafel en een wandcloset. De praktische berging met c.v.-opstelling is eveneens voorzien van een laminaatvloer.
Tweede verdieping
2e verdieping:
Zolder-berging;
Tuin
Tuin:
De op het zuiden georiënteerde achtertuin is circa 24 meter diep en biedt voldoende privacy. De tuin is voorzien van een overdekt terras aan de woning, gazon, beplanting en een tuinhuis met overkapping achter in de tuin. De tuin is ook bereikbaar via de brede oprit en is geheel omheind.
Bijzonderheden
Algemeen:
Deze moderne en goed onderhouden halfvrijstaande woning verkeert in een prima staat van onderhoud en is gelegen in een fijne woonomgeving. De woning is gebouwd in 2017 en is volledig geïsoleerd, voorzien van kunststof kozijnen met HR++ beglazing, een HR combiketel, 10 zonnepanelen en heeft energielabel A. Het woonoppervlak bedraagt ca. 147 m², de overige inpandige ruimte ca. 7 m², de gebouw gebonden buitenruimte ca. 28 m², externe berging ca. 8,5 m², de inhoud ca. 546 m³ en het perceeloppervlak bedraagt 432 m².
Omgeving:
Vlodrop maakt met haar buurtschappen Etsberg, Rothenbach en Vlodrop Station deel uit van de gemeente Roerdalen en heeft ruim 2300 inwoners. Het dorp is gelegen in een landelijke en groene woonomgeving langs rivier de Roer en Nationaal Park de Meinweg met haar vele wandel- en fietsroutes. Vlodrop beschikt over voldoende voorzieningen zoals een basisschool, kinderopvang, supermarkten, diverse winkels, tuincentra, een huisartsenpraktijk, een tandartspraktijk, restaurants, cafés, een dorpshuis, een sporthal, een buitenzwembad en diverse (sport)verenigingen. Vlodrop ligt op circa 10 kilometer van de stad Roermond met zijn uitgebreide maasplassen, tal van winkels en terrasjes in de fraaie historische binnenstad en het Designer Outlet Center met meer dan 180 winkels en diverse restaurants. Het Bourgondische Maastricht en het Zuid-Limburgse heuvelland maar ook Venlo, Eindhoven en grote Duitse steden als Düsseldorf, Keulen en Aken zijn eveneens goed bereikbaar.
Plattegronden
176120278_1573387_ambac_begane_grond_first_design_20250827_21a44d.jpg
176120278_1573387_ambac_begane_grond_tu_first_design_20250827_b4f664.jpg
176120278_1573387_ambac_eerste_verdiepi_first_design_20250827_bf768c.jpg
176120278_1573387_ambac_zolder_first_design_20250827_aa5828.jpg
176120278_1573387_ambac_berging_first_design_20250827_7878d6.jpg
20250909113856900_0001.jpg