Beschrijving

MODERN WONEN MET JAREN ’30 CHARME
Op zoek naar een ruim, instapklaar bovenhuis met karakter én comfort? Dit recent gerenoveerde 5-kamer dubbel bovenhuis (ca. 123 m²) aan de geliefde Zwartelaan combineert de sfeer van de jaren ’30 met de luxe van nu. Met drie slaapkamers, een moderne woonkeuken, een zonnig balkon en een ideale ligging tegenover station Voorburg, is dit de perfecte plek voor jonge stellen, gezinnen of starters die nét dat beetje extra ruimte zoeken.
________________________________________
HIGHLIGHTS OP EEN RIJ
•	Recent gerenoveerd dubbel bovenhuis (1937) met authentieke details
•	Maar liefst 5 kamers, waaronder 3 ruime slaapkamers
•	Sfeervolle woonkamer met natuurstenen schouw en veel lichtinval
•	Luxe woonkeuken met kookeiland en toegang tot balkon (NO)
•	Strakke badkamer met inloopdouche, tweede toilet en modern sanitair
•	Eigen fietsenberging achter het complex
•	Actieve en gezonde VvE, maandelijkse bijdrage ca. € 160,-
•	Woonoppervlak ca. 123,7 m², energielabel C
________________________________________
VOLLEDIGE WONINGOMSCHRIJVING

BUITENKANT EN OMGEVING
Al bij aankomst voel je de typische sfeer van de Zwartelaan: een rustige, groene straat met een charmant jaren ’30 gevelbeeld. Aan de overkant ligt station Voorburg, waardoor je binnen no time in Den Haag of zelfs hartje Amsterdam staat. Tegelijkertijd wandel je zo de buurt in, waar parken, pleinen en gezellige horeca om de hoek liggen. Het beste van stad en rust komt hier echt samen.

TWEEDE VERDIEPING – LICHT EN LEEFGENOT
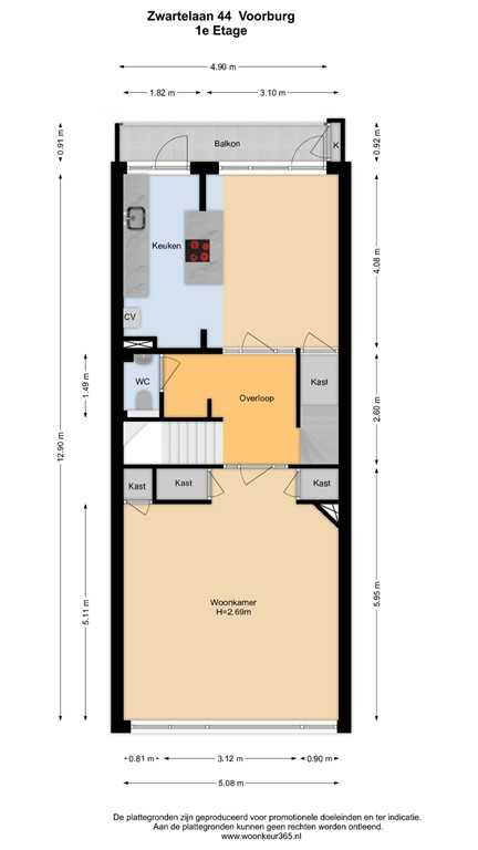
Via de nette entree en trap kom je binnen op de tweede verdieping. De hal geeft toegang tot de lichte woonkamer aan de voorzijde, waar de grote raampartijen zorgen voor een zee aan daglicht en een levendig uitzicht op de laan. De natuurstenen schouw is een knipoog naar de jaren ’30 en geeft de ruimte karakter.
Aan de achterzijde vind je de echte eyecatcher: de ruime woonkeuken met kookeiland. Denk aan koken terwijl je vrienden of gezin aanschuiven aan de bar, of lange avonden tafelen in de eetruimte. Dankzij de openslaande deur stap je zo naar het balkon op het noordoosten – perfect voor een kop koffie in de ochtendzon.
Een apart toilet met fonteintje maakt deze verdieping compleet.

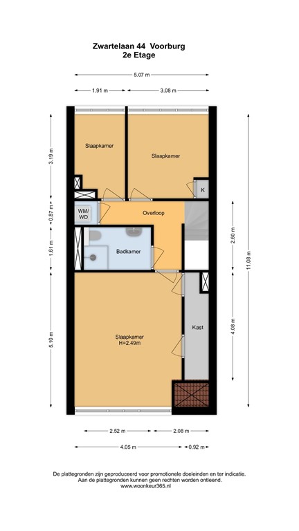
DERDE VERDIEPING – SLAAPKAMERS EN BADKAMER
De vaste trap brengt je naar de derde verdieping met drie slaapkamers, stuk voor stuk licht en praktisch ingedeeld. De grootste slaapkamer aan de voorzijde heeft handige vaste kasten én toegang tot de vliering, ideaal voor extra opslag. Aan de achterzijde liggen twee gezellige (kinder)kamers, waarvan één met een vaste kast.
De badkamer is slim vergroot en modern afgewerkt met een inloopdouche, tweede toilet en een stijlvol wastafelmeubel. Alles strak in neutrale tinten, zodat je er meteen je eigen draai aan kunt geven.

EXTRA’S
Naast de woning heb je nog een eigen fietsenberging achter het complex. Handig voor je fiets, kinderwagen of seizoensspullen. De actieve VvE zorgt voor een goed onderhouden pand en geeft je zorgeloos woongenot.
________________________________________
EEN WONING DIE AL JE ZINTUIGEN PRIKKELT
Voel de warme houten vloer onder je voeten terwijl je door de lichte woonkamer loopt. Ruik de vers gezette koffie die je ’s ochtends op je balkon drinkt. Zie de prachtige mix van klassiek en modern in elk detail van de woning. Hoor de stilte van de rustige straat – en toch, weet je dat het bruisende stadsleven van Den Haag op maar enkele minuten ligt. Proef het gemak van alles binnen handbereik: winkels, scholen, restaurants en het station.
________________________________________
KLAAR VOOR DE VOLGENDE STAP?
Dit dubbel bovenhuis aan de Zwartelaan 44 is niet zomaar een appartement – het is een kans om te wonen in een unieke combinatie van ruimte, sfeer en locatie. Kom kijken, ervaar het zelf en laat je verrassen door de mogelijkheden. Bel of mail ons voor een bezichtiging en wie weet geniet jij hier binnenkort van jouw nieuwe thuis in Voorburg.

*** english text ***

MODERN LIVING WITH 1930S CHARM
Looking for a spacious, move-in ready upper house with character and comfort? This recently renovated 5-room duplex upper house (approx. 123 m²) on the popular Zwartelaan combines the charm of the 1930s with modern luxury. With three bedrooms, a modern kitchen/diner, a sunny balcony, and an ideal location opposite Voorburg station, this is the perfect place for young couples, families, or first-time buyers looking for that little bit of extra space. ________________________________________
HIGHLIGHTS AT A GLANCE
• Recently renovated double-top apartment (1937) with authentic details
• No fewer than 5 rooms, including 3 spacious bedrooms
• Charming living room with a natural stone fireplace and plenty of natural light
• Luxurious kitchen/diner with a cooking island and access to a balcony (north-east facing)
• Sleek bathroom with a walk-in shower, second toilet, and modern plumbing
• Private bicycle storage behind the complex
• Active and healthy homeowners' association (VvE), monthly fee approx. €160
• Living area approx. 123.7 m², energy label C
______________________________________
FULL PROPERTY DESCRIPTION

EXTERIOR AND SURROUNDINGS
Upon arrival, you'll feel the typical atmosphere of Zwartelaan: a quiet, leafy street with a charming 1930s façade. Voorburg station is across the street, connecting you to The Hague or even the heart of Amsterdam in no time. At the same time, you can easily stroll into the neighborhood, where parks, squares, and charming restaurants and cafes are just around the corner. The best of the city and tranquility truly come together here.

SECOND FLOOR – LIGHT AND ENJOYMENT
The neat entrance and staircase lead to the second floor. The hall leads to the bright living room at the front, where large windows provide a wealth of natural light and a vibrant view of the avenue. The natural stone fireplace is a nod to the 1930s and adds character to the space.
At the rear, you'll find the real eye-catcher: the spacious kitchen/diner with a cooking island. Imagine cooking while your friends or family gather at the bar, or enjoying long evenings dining in the dining area. French doors open directly onto the northeast-facing balcony – perfect for a cup of coffee in the morning sun.
A separate toilet with a small sink completes this floor.

THIRD FLOOR – BEDROOMS AND BATHROOM
The staircase leads to the third floor with three bedrooms, each bright and practically laid out. The largest bedroom at the front of the house features convenient built-in wardrobes and access to the loft, ideal for extra storage. At the rear are two cozy (children's) bedrooms, one of which has a built-in wardrobe.
The bathroom has been cleverly enlarged and modernly finished with a walk-in shower, a second toilet, and a stylish vanity. Everything is sleek and finished in neutral tones, so you can immediately add your own touch.
EXTRAS
In addition to the house, you also have a private bicycle shed behind the complex. Handy for your bike, stroller, or seasonal items. The active homeowners' association ensures a well-maintained property and provides you with carefree living.
________________________________________
A HOME THAT TICKLES ALL YOUR SENSES
Feel the warm wooden floor beneath your feet as you walk through the bright living room. Smell the freshly brewed coffee as you drink it on your balcony in the morning. See the beautiful blend of classic and modern in every detail of the house. Hear the silence of the quiet street – and yet, know that the vibrant city life of The Hague is only minutes away. Experience the convenience of having everything within easy reach: shops, schools, restaurants, and the train station.
________________________________________
READY FOR THE NEXT STEP?
This duplex apartment at Zwartelaan 44 isn't just an apartment—it's an opportunity to live in a unique combination of space, ambiance, and location. Come see it, experience it for yourself, and be amazed by the possibilities. Call or email us to schedule a viewing, and who knows, you might soon be enjoying your new home in Voorburg.

Kenmerken