Beschrijving

Deze royale en karakteristieke vrijstaande woning, voormalig pand "De Groene Papegaai", is gelegen op een ruim perceel van 431 m². De woning heeft 8 slaapkamers, waarvan 3 op de begane grond, 2 badkamers op de begane grond, een ruime berging en een zonnige tuin op het noordoosten. De woning is goed onderhouden en is in 2024 voorzien van kunststof kozijnen met HR ++ beglazing en geschikt voor vele doeleinden, met ruime parkeergelegenheid en bushalte op loopafstand. De woning is gelegen aan de brede doorgaande weg in Vrouwenparochie, nabij de Friese Waddenkust, op slechts een paar minuten afstand van Sint-Annaparochie, waar voldoende voorzieningen te vinden zijn. Wie uniek wil wonen, grijp hier uw kans! 
Indeling:
Begane Grond: Entree, hal met meterkast, royale living met pelletkachel, 3 slaapkamers, gesloten keuken met 6-pits gasstel, witgoedopstelling, toilet met fontein, badkamer met jacuzzi, wastafel, toilet, badkamer met inloopdouche, dubbele wastafel, bijkeuken met cv ketel, bergruimte.
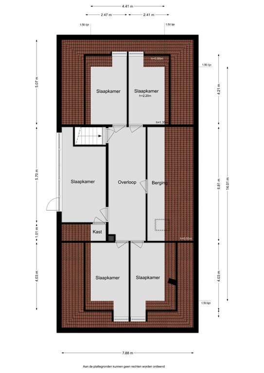
Eerste verdieping: Overloop, 5 slaapkamers, bergruimte.

Kenmerken