Beschrijving

**Wonen in de Oude Kern van Zandvoort**

Stel je eens voor: een charmant oud vissershuisje, verscholen in het gezellige hart van Zandvoort, waar het strand nooit ver weg is. Duinstraat 6 biedt starters een unieke kans om hun woondromen waar te maken. Ja, er moet wat gebeuren aan deze kluswoning, maar hé… dat zorgt er nou juist voor dat je helemaal je eigen plekje kunt creëren.

**Sfeervol en Authentiek**

Eerlijk is eerlijk – als je valt voor moderne nieuwbouw met vloerverwarming en superstrak gestucte wanden, dan is dit even slikken. Maar hou je van historie, karakter en ouderwetse charme? Dan kun je hier je geluk niet op. Dit huis komt uit 1900 en ademt een en al nostalgie uit. Denk aan een gevel die het straatbeeld bepaalt, een knusse voortuin en de aanblik van typisch Zandvoortse huisjes om je heen. Zeg zelf – dat is toch iets heel anders dan rijtjeshuizen in Vinex-wijken?

**Ideaal voor Handige Starters die niet Schrikken van een Beetje Werk**

We gaan er geen doekjes om winden: dit huis vraagt om liefde en aandacht. Het energielabel is G – dus volop mogelijkheden om te verduurzamen! Pak het groots aan of ga stapje voor stapje. Jij bepaalt. Misschien droom je van een super strakke keuken, nieuwe badkamer of innovatieve indeling. Of wil je het oude karakter juist bewaren, met houten balken en klassieke deuren? Hoe dan ook, je krijgt hier alle ruimte om je eigen draai eraan te geven.

**Lekker centraal, met alles binnen handbereik**

Zandvoort leeft het hele jaar door. Op loopafstand vind je gezellige winkels, horeca, en natuurlijk het strand. In de ochtend slenter je richting de bakker voor verse broodjes, ‘s avonds wandel je in enkele minuten naar zee om even lekker uit te waaien. De ligging in de Oude Kern maakt dat je alles bij de hand hebt – en daar hoef je echt geen auto voor te pakken. Handig en relaxed, toch?

**Hier begint jouw woonavontuur**

Wat je ook wilt – schilderen, slopen, opbouwen, vernieuwen: het kan hier allemaal. Zie jij jezelf al aan het klussen met vrienden, familie?  Droom weg bij de mogelijkheden en maak van dit vissershuisje jouw paleisje. De basis is eenvoudig, dat klopt, maar oh – er zit zoveel potentieel in.

**Kom kijken en ontdek jouw nieuwe plek!**

Ben je nieuwsgierig geworden naar Duinstraat 6 in Zandvoort? Kom gerust langs voor een kijkje en voel de sfeer zelf. Trek je stoute schoenen aan, laat je beste ideeën de vrije loop en start jouw woonavontuur aan de Noordzeekust. Wie weet ben jij straks de trotse bewoner van dit authentieke huisje!

**Dus waar wacht je nog op? Grijp je kans, kom proeven van het leven vlakbij zee, en begin met bouwen aan je toekomst!**

Indeling

Via de voortuin kom je binnen in de hal. Aan je rechterhand vind je de woonkamer en suite met een vaste kast en aansluiting voor een gaskachel, in het achter gedeelte is de eenvoudige doucheruimte. In de hal zelf is de toilet. Aan je rechter hand ligt de verrassend ruime keuken, en hier vind je ook de trap naar de 1ste etage.

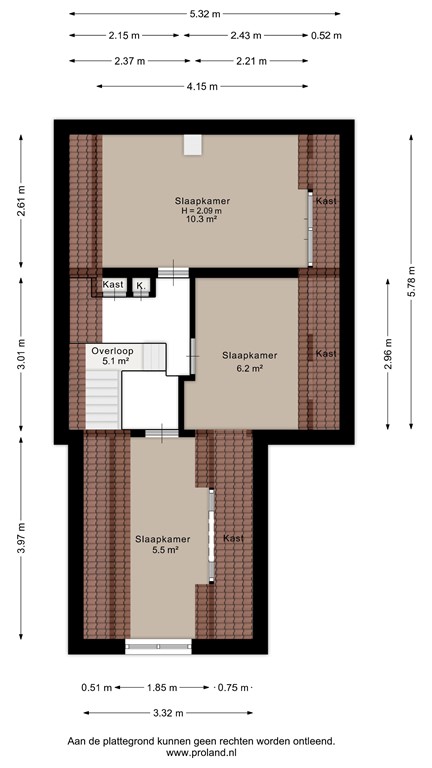
Eerste verdieping

Via de trap in de keuken kom je op de 1ste verdieping waar de drie slaapkamers zijn.

Bijzonderheden

* Oud visserhuisje gelegen in de oude dorps kern.
* Centrum op loopafstand.
* 3 slaapkamers.
* Naar eigen inzicht te renoveren.

Kenmerken