Beschrijving

Geheel gerenoveerd dubbele bovenwoning!

Deze mooie goed verzorgde pas gerenoveerde dubbele bovenwoning aan de Tolweg biedt een moderne en comfortabele woonomgeving. 

Door de grote raampartijen is er veel lichtinval in de woning, met de nieuwe open woonkeuken,  maar liefst drie slaapkamers, badkamer met ligbad, inloopdouche, tweede toilet en het ruime balkon (Z/O) heeft deze woning alles wat je wenst. 

Gelegen aan de rand van het centrum, naast de geliefde zuid duinen van Zandvoort vind je deze woning met een woonoppervlakte van ca. 94m2 verdeeld over twee woonlagen. 
De nieuwe open keuken is voorzien van alle gemakken zoals een 5 zone inductiekookplaat, afzuigkap, combi-overn, inbouwkoelkast en vaatwasser. Via de openslaande deur in de woonkamer kom je op het ruime balkon gelegen op het Z/O maar tijdens de warme dagen kun je ook zitten op het gedeelte gelegen op het N/O.

Met een energielabel C, dubbel glas, vloerverwarming op de begane grond en de 1ste verdieping biedt dit energiezuinige appartement een comfortabel gevoel.

Zandvoort, gelegen aan de prachtige kust van Nederland, staat bekend om zijn brede stranden,
levendige boulevard en gezellige centrum. Met tal van restaurants, winkels en recreatiemogelijkheden,
biedt Zandvoort een aantrekkelijke levensstijl voor liefhebbers van zee, strand en natuur. Met een goede
bereikbaarheid naar steden als Haarlem en Amsterdam, combineert Zandvoort het beste van kust- en
stadsleven.

Indeling

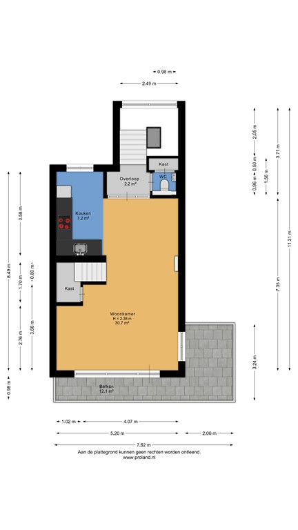
Via de voordeur aan de zijkant van de woning kom je binnen in de ruime entree, hier vind je aan de linkerzijde een ruime kast. Daarnaast ligt de nieuwe meterkast. Via de brede trap loop je naar boven....

Eerste verdieping

Boven aangekomen op de overloop is aan je linkerkant de deur naar de toilet, hier vind je in de kast de installatie van de vloerverwarming. Door de glazen deur loop je de woonkamer in met gelijk aan je rechterhand de sfeervolle open keuken met inbouwapparatuur zoals de 5 zone inductie kookplaat, afzuigkap, inbouwkoelkast, afwasmachine en sfeervolle verlichting binnen. In de woonkamer zijn grote raampartijen die zorgen voor veel lichtinval en de deur naar het ruime balkon. Naast de keuken is de trap naar de 2de verdieping met daaronder de trapkast met de nodige bergruimte.

Tweede verdieping

Via de trap kom je op de 2de en tevens bovenste verdieping met een ruime overloop. Aan je linkerzijde is de badkamer met ligbad, inloopdouche, dubbele wastafel met meubel, de tweede toilet en een aparte nis voor de wasmachine en droger. Naast de badkamer ligt de grote slaapkamer en aan de linkerzijde van de overloop liggen twee gelijke ruime slaapkamers. Aan het eind van de overloop vind je de kast  waar de CV-ketel hangt.

Bijzonderheden

* Energielabel C
* Geheel gerenoveerd in 2024/2025
* Vloerverwarming
* 3 slaapkamers
* Ruim balkon op het Z/O en N/W
* Op 5 minuten lopen van het centrum
* Op 1 minuut lopen van de Zuid Duinen

Kenmerken