Beschrijving
Wonen met karakter, uitzicht én comfort – deze charmante dijkwoning aan de Dorpsstraat is er zo één die je niet vaak tegenkomt. Met een woonoppervlakte van ca. 94 m² en een perceel van 125 m² biedt deze goed onderhouden tussenwoning uit 1924 een verrassend ruime en speelse indeling. De woning beschikt over een sfeervolle woonkamer, een complete woonkeuken in het souterrain, twee (mogelijk drie) slaapkamers en praktische extra ruimtes zoals een bijkeuken en berging. Wat direct opvalt is de combinatie van authentieke charme met modern wooncomfort, én het vrije uitzicht aan de achterzijde. Een huis dat nét even anders is – en juist daarom zo aantrekkelijk.
De ligging in Zuid-Beijerland maakt het geheel compleet. Je woont hier aan de karakteristieke Dorpsstraat, met aan de achterzijde een vrije ligging richting het open landschap. Dat geeft rust, privacy en een uitzicht dat nooit verveelt. Tegelijkertijd zijn voorzieningen zoals winkels, scholen en sportfaciliteiten op korte afstand bereikbaar. De Hoeksche Waard staat bekend om zijn dorpse karakter en prettige leefomgeving, terwijl steden als Rotterdam en Dordrecht goed bereikbaar zijn. Een ideale combinatie van rust en bereikbaarheid.
Bijzonderheden:
* Bouwjaar ca. 1924
* Woonoppervlakte ca. 94 m²
* Perceeloppervlakte 125 m²
* Energielabel ****
* 10 Zonnepanelen 2023
* Goed onderhouden woning
* Airconditioning aanwezig (meerdere ruimtes)
* Dakkapel aanwezig
* Tuin op het zuiden (hele dag zon)
* Vrije ligging aan de achterzijde
* Overkapping aan de woning
* Aanpandige berging
* Meterkast gemoderniseerd
* Dakisolatie en gevelisolatie
* Schilderwerk netjes bijgehouden
* Rolluiken aanwezig
Indeling
Begane grond (dijkniveau)
Je komt binnen op dijkniveau in de hal met meterkast en toegang tot de woonkamer. De woonkamer is sfeervol afgewerkt met gestuukte wanden en plafonds en een echte houten vloer, wat direct zorgt voor een warme uitstraling. Vanuit de woonkamer heb je een prettig zicht op de straatzijde en ervaar je de karakteristieke sfeer van de woning.
Praktisch detail is de trapkast met extra veel bergruimte. Daarnaast bevindt zich bij de trapopgang naar boven nog een tweede berging, ideaal voor extra opslag. Vanuit de hal ga je naar de eerste verdieping, terwijl je vanuit de woonkamer juist naar beneden loopt richting het souterrain.
Souterrain
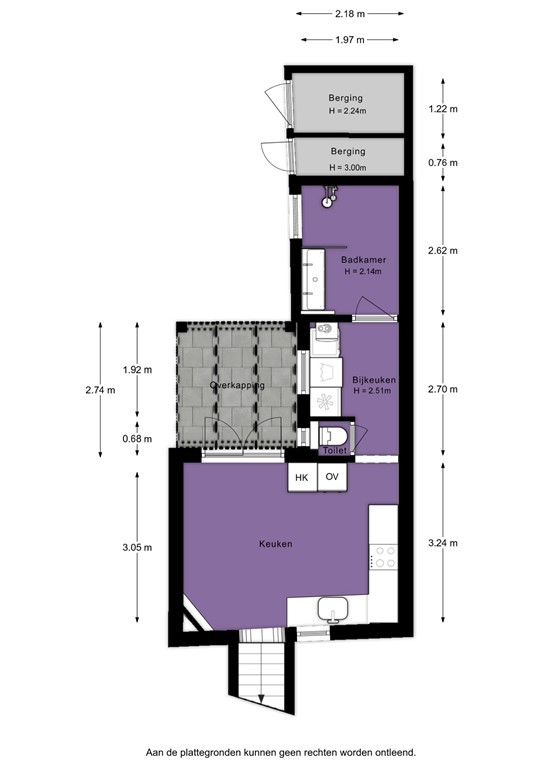
Hier zit echt de verrassing van de woning. De woonkeuken vormt het hart van deze verdieping en is modern ingericht met een inductiekookplaat, vaatwasser, afzuigkap, oven en een koelkast. Vanuit de eethoek loop je via openslaande deuren zo onder de overkapping in de tuin – een heerlijke plek waar binnen en buiten naadloos in elkaar overlopen.
De badkamer is verzorgd en compleet uitgevoerd met een dubbele wastafel, inloopdouche en designradiator. Daarnaast is er een modern toilet aanwezig. De bijkeuken biedt ruimte voor de wasmachine en de opstelling van de CV-ketel en zorgt voor extra praktische bergruimte.
Eerste verdieping
De hoofdslaapkamer bevindt zich op deze verdieping en is een fijne, lichte ruimte met uitzicht, een rolluik en airconditioning voor extra comfort. Tevens is er plaats voor een grote kledingkast deze maakt de kamer compleet en praktisch in gebruik.
Zolder
De zolderverdieping is bereikbaar via een vaste trap en biedt een veelzijdige ruimte. Of je nu een extra slaapkamer wilt creëren of een werkplek nodig hebt (zelfs voor twee bureaus), hier kan het allebei. Ook hier is airconditioning aanwezig, wat het comfortniveau hoog houdt.
Buitenruimte
De tuin is gelegen op het zuiden, waardoor je hier de hele dag van de zon kunt genieten. In combinatie met de overkapping ontstaat een fijne plek waar je al vroeg in het voorjaar en tot laat in het najaar buiten kunt zitten. De vrije ligging aan de achterzijde zorgt voor extra privacy en een prettig gevoel van ruimte. Daarnaast is er een aanpandige berging aanwezig voor fietsen en opslag.
Een karaktervolle woning met een speelse indeling, modern comfort en een uitzicht dat je elke dag blijft waarderen. Kom kijken en laat je verrassen.
Plattegronden
Dorpsstraat 67 - Situatie - 2D.jpg
Dorpsstraat 67 - Souterrain - 2D.jpg
Dorpsstraat 67 - Begane grond - 2D.jpg
Dorpsstraat 67 - 1e verdieping - 2D.jpg
Dorpsstraat 67 - Situatie - 3D.jpg
Dorpsstraat 67 - Souterrain - 3D.jpg
Dorpsstraat 67 - Begane grond - 3D.jpg
Dorpsstraat 67 - 1e verdieping - 3D.jpg