Beschrijving

Welkom aan de Brucknerstraat 4! Deze premie A-woning bevindt zich op een rustige locatie in Zwijndrecht en biedt alles waar je als starter, jong gezin of doorstromer naar op zoek bent. Met verrassend veel leefruimte en een zonnige tuin is dit een huis waar je je direct thuis zult voelen. Ben je toe aan een volgende stap in je wooncarrière? Lees dan snel verder en ontdek wat deze fijne hofjeswoning jou allemaal te bieden heeft.

Als je de straat inrijdt, valt meteen op hoe gezellig en groen de wijk is. Brucknerstraat 4 maakt deel uit van een hofje waar kinderen veilig kunnen spelen en buren elkaar nog goed kennen. De woning zelf, een keurige eengezinswoning met een praktisch ingedeelde binnenruimte, straalt direct de warmte uit van een echt thuis. Authentiek, maar met de luxe en duurzaamheid van nu; precies zoals je het graag ziet.

De woonkamer vormt het kloppend hart van het huis. Dankzij de grote raampartij aan de achterzijde valt het daglicht rijkelijk naar binnen; wat zorgt voor een prettige sfeer en een gevoel van ruimte. Je hebt hier voldoende plek voor een comfortabele zithoek en een fijne eettafel waar je samenkomt met familie of vrienden. Of je nu werkt, relaxt of dineert, je kijkt altijd uit op de fraai aangelegde achtertuin. En daarbij: de open keuken maakt het koken net even gezelliger.

Een ander pluspunt dat niet onbenoemd mag blijven: deze woning is helemaal klaar voor de toekomst! Dankzij het energielabel A weet je zeker dat je hier duurzaam én voordelig woont. Zonnepanelen op het dak verlagen immers je energierekening. 

Heb je groene vingers of wil je gewoon heerlijk buiten zitten met een goed boek? Kom kijken in deze onderhoudsvriendelijke achtertuin waar je volop van de zon kunt genieten. Deze tuin vormt hoe dan ook een verlengstuk van je wooncomfort. Praktisch detail: helemaal achterin de tuin vind je een ruime, stenen berging. Ideaal voor je fietsen, gereedschap of seizoensspullen.

Brucknerstraat 4 heeft een centrale ligging, vlakbij winkels, scholen en sportfaciliteiten. Met het openbaar vervoer of de auto ben je bovendien zó in het centrum van Dordrecht of Rotterdam. Het betekent een rustige leefomgeving, zonder in te leveren op bereikbaarheid of gemak.

Ben je nieuwsgierig geworden? Maak snel een afspraak voor een bezichtiging en laat je verrassen door de ruimte, lichtinval en het aangename woongevoel van deze ideale eengezinswoning!

Indeling

Via de entree aan de voorzijde betreedt u de woning in de hal, waar zich de meterkast en het toilet bevinden. Vanuit de hal is er toegang tot de woonkamer, wat zorgt voor een prettige en logische indeling.

Aan de voorzijde van de woning ligt de keuken. De keuken is functioneel opgezet en voorzien van diverse inbouwapparatuur en een losse ijskast. Dankzij het raam aan de voorzijde is er daglichttoetreding tijdens het koken. 

De ruime woonkamer, aan de achterzijde die zich over de volledige breedte van de woning aan de tuinzijde bevindt, is een lichte en comfortabele leefruimte. De grote raampartij en schuifpui aan de achterzijde zorgen voor veel natuurlijk licht en een directe verbinding met de tuin. Hier is voldoende ruimte voor zowel een gezellige zithoek als een royale eethoek.

Onder de trap bevindt zich nog een extra bergruimte, ideaal voor voorraad of huishoudelijke spullen.

Eerste verdieping

Via de vaste trap bereikt u de overloop op de eerste verdieping. Vanaf hier heeft u toegang tot alle vertrekken, wat zorgt voor een praktische en overzichtelijke indeling.

Aan de achterzijde van de woning bevindt zich een ruime slaapkamer (voormalig 2 slaapkamers). Deze kamer is aangenaam licht dankzij de dakramen en biedt volop ruimte voor een tweepersoonsbed en kastenwand.

De tweede slaapkamer ligt aan de voorzijde van de woning en heeft een royale afmeting. Door de lengte van de kamer is deze flexibel in te delen, bijvoorbeeld als volwaardige slaapkamer, werkkamer of combinatie van beiden.

Aan de voorzijde zich de badkamer. De badkamer is functioneel ingericht en voorzien van een douche, wastafel en toilet. Daglicht en ventilatie worden verzorgd via het raam.

Deze verdieping biedt twee goed bemeten slaapkamers en een praktische badkamer, ideaal voor gezinnen of voor wie extra werk- of logeerruimte wenst.

Tweede verdieping

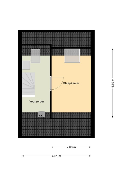
Via de vaste trap bereikt u de zolderverdieping, die is opgedeeld in een voorzolder en een slaapkamer. Deze verdieping biedt verrassend veel ruimte en functionele mogelijkheden.

Op de voorzolder bevindt zich de overloop met daglichttoetreding via een dakraam. Hier is plaats voor de opstelling van de cv-installatie en extra bergruimte. Door de praktische indeling is de voorzolder uitstekend geschikt als wasruimte of opslag.

Aansluitend ligt de zolderkamer. Dankzij het dakraam is dit een lichte ruimte die zich uitstekend leent als extra slaapkamer, werk- of hobbykamer. 

Deze zolderverdieping vormt een volwaardige aanvulling op de woning en vergroot het woonoppervlak aanzienlijk, ideaal voor gezinnen of thuiswerkers die behoefte hebben aan extra ruimte.

Tuin

De woning beschikt over een onderhoudsvriendelijk aangelegde achtertuin met een gunstige zonligging op het zuiden. Door deze situering geniet de tuin de gehele dag van een maximale lichtinval.

Inrichting en aanleg
De tuin is onderhoudsarm. De erfafscheiding bestaat deels uit een gemetselde tuinmuur en deels uit houten schuttingdelen. De tuin is direct toegankelijk vanuit de woning via een brede aluminium schuifpui.

Berging
Achterin de tuin is een vrijstaande stenen berging gesitueerd met een oppervlakte van circa 6 m². De berging biedt voldoende ruimte voor het stallen van fietsen, tuingereedschap en overige opslag.

Bijzonderheden

Kadastraal bekend; het woonhuis met schuur, ondergrond, tuin en verdere ­aanhorigheden, staande en gelegen te Zwijndrecht aan de Brucknerstraat 4 (postcode 3335 CN), kadastraal bekend gemeente Zwijndrecht, sectie E nummer 1966, groot acht­ennegentig centiaren, alsmede het een/zeventiende onver­deeld aandeel in een daarbij gelegen pad, kadastraal be­kend gemeente Zwijndrecht, sectie E nummer 1968, voor het geheel groot een are en achttien centiaren,;
•Eigen grond
•Bouwjaar: 1984
•Woonoppervlak: 98² (inhoud: 311³)
•Dubbelglas in houten kozijnen
•Woning voorzien van 8 zonnepanelen
•CV ketel met hetelucht verwarming.
•Energielabel A geldig tot 16-08-2030
•Oplevering in overleg, kan snel.
•Er zal een ouderdomsclausule en een niet-zelf bewoond clausule, worden opgenomen in de koopakte voor deze woning.

•Ondanks dat grote zorgvuldigheid is betracht bij het samenstellen van de verkoopinformatie wordt voor de onjuistheid van de vermelde gegevens door de eigenaar noch door de verkopend makelaar enige aansprakelijkheid aanvaard.

•Rechtsgeldige koopovereenkomst pas ná ondertekening: Een mondelinge overeenstemming tussen de particuliere verkoper en de particuliere koper is niet rechtsgeldig. Met andere woorden: er is (nog) geen koop. Er is pas sprake van een rechtsgeldige koop als de particuliere verkoper en de particuliere koper de koopovereenkomst hebben ondertekend. Dit vloeit voort uit artikel 7:2 Burgerlijk Wetboek. Een bevestiging van de mondelinge overeenstemming per e-mail of een toegestuurd concept van de koopovereenkomst wordt overigens niet gezien als een ‘ondertekende koopovereenkomst’.

Kenmerken