slide
DIVA Makelaars Landelijk werkzaam, lokaal gespecialiseerd!
DIVA staat voor ‘Ster’:
wij willen dan ook uitblinken in optimale service en kwaliteit
Verkocht onder voorbehoud

Verkocht onder voorbehoud: Markeweg 15, 7846 AG Noord-Sleen

€ 895.000,- k.k.
Type object Woonhuis, woonboerderij, vrijstaande woning
Perceeloppervlakte 3.865 m²
Woonoppervlakte 250 m²
Aanvaarding In overleg
Status Verkocht onder voorbehoud

Notitie

Algemeen

Markeweg 15 Noord-Sleen
Wonen in de dorpskern

In het sfeerrijke, lommerrijke Noord-Sleen vind je deze rietgedekte woonboerderij uit 1916 met zelfs een historie tot 1709 onder de naam Olde Wiggers. De boerderij, met een schapenschuur en drie bijgebouwen is gelegen op een fraai perceel van 3.865 m2 eigen grond.

Gelegen in de dorpskern, met de deel naar de straat dus veel privacy rondom, z... Meer informatie
  • Kenmerken

    Alle kenmerken
    Type object Woonhuis, woonboerderij, vrijstaande woning
    Bouwjaar 1916
    Status Verkocht onder voorbehoud
  • Locatie

Kenmerken

Overdracht
Referentienummer 63098/9354186
Vraagprijs € 895.000,- k.k.
Status Verkocht onder voorbehoud
Aanvaarding In overleg
Laatste wijziging Maandag 15 december 2025
Bouw
Type object Woonhuis, woonboerderij, vrijstaande woning
Soort bouw Bestaande bouw
Bouwjaar 1916
Type dak Zadeldak
Isolatievormen Dakisolatie, Dubbel glas, Muurisolatie, Vloerisolatie
Oppervlaktes en inhoud
Perceeloppervlakte 3.865 m²
Woonoppervlakte 250 m²
Inhoud 1.457 m³
Tuinoppervlakte 2.850 m²
Indeling
Aantal bouwlagen 2 (en 1 kelder)
Aantal kamers 7 (waarvan 5 slaapkamers)
Locatie
Ligging Aan rustige weg, In bosrijke omgeving, Vrij uitzicht
Tuin
Type Tuin rondom
Hoofdtuin Ja
Heeft een achterom Ja
Staat Normaal
Energieverbruik
Energielabel D
Uitrusting
Warm water CV-ketel
Badkamervoorzieningen Ligbad, Toilet, Wastafel, Wastafelmeubel
Parkeergelegenheid Vrijstaande houten garage
Tuin aanwezig Ja
Heeft een garage Ja
Heeft schuur/berging Ja

Beschrijving

Markeweg 15 Noord-Sleen
Wonen in de dorpskern

In het sfeerrijke, lommerrijke Noord-Sleen vind je deze rietgedekte woonboerderij uit 1916 met zelfs een historie tot 1709 onder de naam Olde Wiggers. De boerderij, met een schapenschuur en drie bijgebouwen is gelegen op een fraai perceel van 3.865 m2 eigen grond.

Gelegen in de dorpskern, met de deel naar de straat dus veel privacy rondom, zicht op molen Albertdina uit 1906 en de mogelijkheid om je eigen paarden of kleinvee bij huis te hebben.

Word jij blij van deze gemoderniseerde boerderij met nagenoeg nieuwe rieten kap? We laten je de mogelijkheden graag zien en nemen je mee.

De woonboerderij is gelegen in het Drentse esdorp Noord-Sleen en heeft een prachtig uitzicht op je eigen weiland en richting molen Albertdina, landelijk wonen ten top!

Het landelijk wonen begint al bij de inrit naar de boerderij, voorzien van bomen en veldkeien. Je zet je auto op eigen terrein, in de kapschuur of in de deel van de boerderij.

Er is ruimte genoeg voor een heel wagenpark, paardenstallen of andere hobby’s waar je
veel ruimte bij zoekt. Ook voor grote gezinnen is het een ideale ruimte voor alle fietsen.

Alhoewel de voordeur aan de rechterzijde zit, is het gebruikelijk om of via de deel binnen te stappen of via de deur aan de linkerzijde van de boerderij, grenzend aan de schuren.

De royale hal biedt toegang naar meerdere vertrekken. Je kijkt vanuit de hal naar de vaste trap naar de eerste verdieping met een vide, de doorloop naar de deel en naar de keuken. In de hal is daarnaast een gastentoilet aanwezig en een wasruimte met de witgoedaansluitingen.

De deel is enorm van afmeting, wat een potentie heeft deze ruimte. De stalramen en de baanderdeuren naar de straatzijde brengen je terug in de tijd toen er nog (klein)vee stond.

Nu is deze ruimte in gebruik geweest voor onderhoud en reparatie aan auto’s, motoren en fietsen. Maar heb je andere plannen met deze ruimte, van kantoor aan huis, dubbele bewoning tot een chillruimte voor je tieners, alles is mogelijk.

De woonkeuken aan de andere kant van de royale hal heeft een prettige lichtinval en in de stijl van de boerderij landelijk ingericht, sfeervol door de houtkachel. De hoekkeuken is voorzien van inbouwapparatuur en heeft zicht op de zijtuin.

De naastgelegen woonkamer heeft een mooie zicht op het weiland en richting Sleen. De schouw en de hoge ramen met roedeverdeling zorgen voor een fijne leefruimte.

Vanuit de woonkamer bereik je de hal naar de oorspronkelijke voordeur en de tweede trapopgang naar de verdieping.

Aan de achterzijde van de boerderij zijn twee slaapkamers en de badkamer te vinden. De badkamer is royaal, volledig betegeld en voorzien van een tweede toilet, een wastafel, een ligbad en een douche.

Eerste verdieping
We gaan via de royale hal naar de eerste verdieping met de vide. Aan beide zijden van de verdieping zijn gigantische vertrekken.

De grootste kamer aan de achterzijde is royaal in afmeting, we verwachten dat deze kamer als eerste uitgekozen gaat worden.

Aan de andere zijde van de vide stap je de volgende tweede kamers in, met elkaar verbonden met een deur waarbij je met de tweede trap ook weer naar beneden kunt. Dit lijkt me een goed rondje boerderij binnen.

Genoeg over de mogelijkheden binnen, we gaan naar buiten.
Aan de straatzijde is een kapschuur ook wel schapenschuur genoemd. De robuuste uitstraling van metselwerk en zwart geschilderde rabatdelen passen goed bij de robuuste uitstraling van de boerderij.

In de schapenschuur zijn twee ruime stallen, één voor een paard en één voor een pony ingericht, maar deze ruimte is zelf om te zetten naar meerdere stallen. Daarnaast is er een overdekte ruimte voor de trailer en een zeer ruime zadelkamer. In de manege op 200m afstand is een overdekte rijhal en op 10 minuten rijden langs rustige wegen ben je in het bos waar je zeer uitgebreide routes kunt rijden.

Naast de kapschuur vind je naast de boerderij nog een drietal schuren met potentie. Mogelijk dat aan een van de schuren veel onderhoud zit of dat je liever een extra terras maakt naast je boerderij. Het is aan de nieuwe eigenaar om dit op te pakken.

Paarden bij huis
De tuin en het weiland voor je paarden aan huis is je prachtige uitzicht vanuit de boerderij. Er is een paddock Paradise met twee afzonderlijke weilandjes, meerdere voerpunten en een ruimte schuilstal met vrije inloop voorzien van betegelde droge bodem. Ideaal is een waterpunt en installatie voor besproeiing van het weiland.

Boswachterij het Sleenerzand vind je daarnaast op ongeveer 1,5 km afstand en geeft je prima uitrijmogelijkheden. Daar vind je ook een uitdagend MTB-parcours van 32 km, mocht je liever een toch op een mountainbike willen rijden.

Noord-Sleen
In het dorp zelf vind je onder andere een basisschool, een restaurant en uiteraard het verwarmd openluchtzwembad het Bosbad. Bosgebied het Sleenerzand heeft ook prachtige wandelroutes en natuurplas de Kibbelkoele, verder een aantal (grote) hunebedden en jeneverbesbosjes met de galgenberg en de Papeloze Kerk.

Sleen
Overige voorzieningen zoals een supermarkt, winkels, sportverenigingen, de tandarts en de huisarts zijn in het naastgelegen dorp Sleen op ongeveer vijf minuten fietsafstand te vinden. Uitvalswegen zoals de N381 richting Assen-Groningen, N34 richting Emmen-Coevorden en A37 richting Zwolle zijn op korte afstand bereikbaar.

Bijzonderheden:
- Kunststof kozijnen met HR++ beglazing
- De boerderij is voorzien van dakisolatie en grotendeels van spouwisolatie
- Verwarming middels een cv-ketel, radiatoren en een houtkachel
- Rieten kap voorzijde en nokvorsten vernieuwd (2024), achterzijde kan nog 15 jaar mee
- Betonvloeren en houten verdiepingsvloeren
- Er is een waterbron aanwezig in de tuin
- Voor een andere bestemming of dubbele bewoning verwijzen we je door naar de gemeente Coevorden

Oplevering in overleg.

Meer informatie over de boerderij en de (leef)omgeving kun je vinden op markeweg15.nl.

Ben je op zoek naar een landelijk gelegen en hoogwaardig afgewerkte woonboerderij met vrij uitzicht en alle voorzieningen voor paarden? Neem dan snel contact op met ons kantoor voor het inplannen van een afspraak. Fijn wonen begint met zwaandacht.

Proclaimer
Zwanenburg Makelaardij is verantwoordelijk voor de inhoud van deze informatie en doet er alles aan deze actueel en juist te houden. Je kunt ervan uitgaan dat de teksten, kenmerken en maatvoeringen met de grootste zorgvuldigheid zijn opgesteld en berekend. Kom je desondanks toch iets tegen dat niet correct of verouderd is, dan stellen wij je reactie bijzonder op prijs.

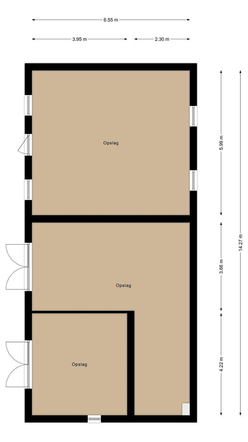
Plattegronden

Sluiten

Recent bekeken