slide
DIVA Makelaars Landelijk werkzaam, lokaal gespecialiseerd!
DIVA staat voor ‘Ster’:
wij willen dan ook uitblinken in optimale service en kwaliteit
HR_01-min.png Render_01 (1)-min.png Render_03-min.png Render_02 (1)-min.png Render_02-min.png Render_03 (1)-min.png Render_01-min.png HR_03.png HR_02.png
Onder optie

Onder optie: Gaykingastraat 37-11, 9791 CG Ten Boer

€ 225.000,- k.k.
Type object Appartement, bovenwoning
Woonoppervlakte 49,76 m²
Aanvaarding In overleg
Status Onder optie

Notitie

Algemeen

Startersappartementen Ten Boer, wonen als nieuw, op 10 minuten van Groningen!
Ben jij klaar voor je eerste eigen plek?

Ontdek deze recent gerenoveerde appartementen in Ten Boer, modern, duurzaam en direct instapklaar! Slechts 10 autominuten van Groningen, met de rust van het dorp en de levendigheid van de stad binnen handbereik.

De appartementen zijn in 2025 volledig gerenoveerd en deels... Meer informatie
  • Kenmerken

    Alle kenmerken
    Type object Appartement, bovenwoning
    Bouwperiode 2025
    Status Onder optie
  • Locatie

Kenmerken

Overdracht
Referentienummer 00257
Vraagprijs € 225.000,- k.k.
Servicekosten € 100,-
Status Onder optie
Aanvaarding In overleg
Laatste wijziging Dinsdag 13 januari 2026
Bouw
Type object Appartement, bovenwoning
Woonlaag 2e woonlaag
Soort bouw Bestaande bouw
Bouwperiode 2025
Dakbedekking Bitumen
Type dak Platdak
Isolatievormen HR-glas, Volledig geïsoleerd
Oppervlaktes en inhoud
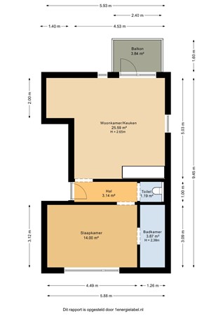
Woonoppervlakte 49,76 m²
Inhoud 166 m³
Oppervlakte gebouwgebonden buitenruimte 3,84 m²
Balkonoppervlakte 3,84 m²
Indeling
Aantal bouwlagen 1
Aantal kamers 2 (waarvan 1 slaapkamer)
Aantal badkamers 1 (en 1 apart toilet)
Energieverbruik
Energielabel A++
Uitrusting
Warm water Elektrische boiler
Verwarmingssysteem Airconditioning
Ventilatie methode Mechanische ventilatie
Badkamervoorzieningen Inloopdouche, Wasmachineaansluiting, Wastafelmeubel
Heeft airco Ja
Heeft een balkon Ja
Heeft kabel-tv Ja
Glasvezelaansluiting aanwezig Ja
Heeft zonnepanelen Ja
Heeft ventilatie Ja
Vereniging van Eigenaren
Ingeschreven bij de KvK Ja
Jaarlijkse vergadering Ja
Periodieke bijdrage Ja
Reservefonds Ja
Meer jaren onderhoudsplan Ja
Opstal verzekering Ja
Kadastrale gegevens
Kadastrale aanduiding Ten Boer A§ 5166
Omvang Appartementsrecht of complex

Beschrijving

Startersappartementen Ten Boer, wonen als nieuw, op 10 minuten van Groningen!
Ben jij klaar voor je eerste eigen plek?

Ontdek deze recent gerenoveerde appartementen in Ten Boer, modern, duurzaam en direct instapklaar! Slechts 10 autominuten van Groningen, met de rust van het dorp en de levendigheid van de stad binnen handbereik.

De appartementen zijn in 2025 volledig gerenoveerd en deels herbouwd en voelen als nieuw.
Alles is voor je geregeld: vloer, stoffering, keuken, badkamer, schilderwerk, compleet sleutelklaar!

Globale indeling: Hal/entree met modern toilet. Woonkamer met openslaande deuren naar terras of balkon. Open keuken met moderne keukenopstelling v.v. enige inbouwapparatuur.
Slaapkamer en doucheruimte met douche, wastafelmeubel en aansluiting voor wasmachine.

Waarom kiezen voor dit project:
• Compact en comfortabel – woonoppervlak van ca. 39 tot 70 m²
• Moderne afwerking met luxe keuken en strak sanitair
• Tegen meerprijs is de keuken uit te breiden
• Verwarming én koeling via energiezuinige airconditioning
• Zonnepanelen aanwezig, lage energielasten, hoog wooncomfort
• Inclusief berging, met gezamenlijke berging voor de kleinere type appartementen
• Parkeerplaats mogelijk (tegen meerprijs en beschikbaarheid)
• Bushalte op loopafstand, binnen no time in Groningen
• Energielabel A++ (verwacht)
• Interessante projectfinanciering beschikbaar
• De VvE is in oprichting, waardoor de genoemde bijdrage en het breukdeel nog niet definitief zijn vastgesteld

Ideaal voor starters en young professionals die comfortabel en duurzaam willen wonen, zonder klussen of zorgen.

Kom vrijdag 21 november tussen 14.00 en 16.00 de appartementen bekijken. Tijdens dit open huis zijn er makelaars van Makelaardij Nienoord en 050Wonen aanwezig om je rond te leiden. Daarnaast is er adviseur van VastgoedKeukens en een hypotheekadviseur van Veni Groningen aanwezig. Kom je ook?

Plattegronden

Brochure(s) en overige bijlagen

Sluiten

Recent bekeken