slide
DIVA Makelaars Landelijk werkzaam, lokaal gespecialiseerd!
DIVA staat voor ‘Ster’:
wij willen dan ook uitblinken in optimale service en kwaliteit
Oosterlaan_63-44.jpg Oosterlaan_63-4.jpg Oosterlaan_63-5.jpg Oosterlaan 63_09.jpg Oosterlaan_63-6.jpg Oosterlaan 63_07.jpg Oosterlaan 63_Woonkamer_FINAL.jpg Oosterlaan_63-7.jpg Oosterlaan_63-7a.jpg Oosterlaan 63_08.jpg Oosterlaan_63-17.jpg Oosterlaan_63-18.jpg Oosterlaan 63_Slaapkamer_01_FINAL.jpg Oosterlaan 63_01.jpg Oosterlaan 63_02.jpg Oosterlaan 63_03.jpg Oosterlaan 63_04.jpg Oosterlaan 63_05.jpg Oosterlaan 63_06.jpg Oosterlaan_63-1z.jpg Oosterlaan_63-2a.jpg Oosterlaan_63-2.jpg Oosterlaan_63-3.jpg entree.jpg Oosterlaan_63-12a.jpg Oosterlaan_63-13a.jpg Oosterlaan_63-16.jpg Oosterlaan_63-19.jpg Oosterlaan_63-20.jpg Oosterlaan_63-21.jpg Oosterlaan_63-22.jpg Oosterlaan_63-23.jpg Oosterlaan_63-24.jpg Oosterlaan_63-25.jpg Oosterlaan 63_10.jpg Oosterlaan 63_11.jpg Oosterlaan 63_Slaapkamer_02_FINAL.jpg Oosterlaan_63-27.jpg Oosterlaan_63-28.jpg Oosterlaan_63-29.jpg Oosterlaan_63-30.jpg Oosterlaan_63-31.jpg Oosterlaan_63-41.jpg Oosterlaan_63-43.jpg Oosterlaan_63-42.jpg Oosterlaan_63-45.jpg

Te koop: Oosterlaan 63, 7322 HG Apeldoorn

€ 829.500,- k.k.
Type object Praktijkruimte
Perceeloppervlakte 705 m²
Totale VVO 343 m²
Aanvaarding In overleg

Notitie

Algemeen

Zeer multifunctioneel woon/werk object op centrale locatie in Apeldoorn!

Denk hierbij aan winkel, web-shop, assurantiekantooor , ICT bedrijf ; klein schilderbedrijf, bewoning met mantelzorg , pedicure, nagelshop en vele meer.

De vele parkeermogelijkheden op eigen terrein zijn hierbij een prettige bijkomstigheid.

Nabij het centrum van Apeldoorn ligt deze zeer ruime woning welke zeer ge... Meer informatie
  • Kenmerken

    Alle kenmerken
    Type object Praktijkruimte
    Bouwperiode 1935
  • Locatie

Kenmerken

Overdracht
Referentienummer 00202
Vraagprijs € 829.500,- k.k.
Inrichting Ja
Inrichting Gestoffeerd
Aanvaarding In overleg
Laatste wijziging Maandag 7 april 2025
Bouw
Type object Praktijkruimte
Soort bouw Bestaande bouw
Bouwperiode 1935
Dakbedekking Dakpannen
Type dak Zadeldak
Isolatievormen Dakisolatie, Grotendeels dubbel glas, Muurisolatie, Spouwmuren
Oppervlaktes en inhoud
Perceeloppervlakte 705 m²
VVO 343 m²
Inhoud 1.254 m³
Locatie
Ligging Aan rustige weg, In woonwijk
Tuin
Type Tuin rondom
Hoofdtuin Ja
Heeft een achterom Ja
Staat Normaal
Energieverbruik
Energielabel C
Uitrusting
Parkeergelegenheid Aangebouwde houten garage, Vrijstaande houten garage
Kadastrale gegevens
Kadastrale aanduiding Apeldoorn Z 602
Perceeloppervlakte 705 m²
Omvang Geheel perceel
Eigendomsituatie Eigen grond

Beschrijving

Zeer multifunctioneel woon/werk object op centrale locatie in Apeldoorn!

Denk hierbij aan winkel, web-shop, assurantiekantooor , ICT bedrijf ; klein schilderbedrijf, bewoning met mantelzorg , pedicure, nagelshop en vele meer.

De vele parkeermogelijkheden op eigen terrein zijn hierbij een prettige bijkomstigheid.

Nabij het centrum van Apeldoorn ligt deze zeer ruime woning welke zeer geschikt is voor meerdere doeleinden. Zo kan dit huis interessant zijn voor dubbele bewoning, een groot samengesteld gezin, gezin met mantelzorgleden aan huis, kantoor aan huis of een klein bedrijf. De mogelijkheden bij deze royale woning zijn dus zeer ruim aanwezig.

Met behulp van de artist impressions proberen wij u de mogelijkheden te laten zien met betrekking tot dubbele bewoning waarbij de kantoorruimte aan de achterzijde op zowel de begane grond als 1e verdieping is omgezet naar een zelfstandige woonruimte. Hierdoor zou er aan de achterzijde van heb object een woning ontstaan met woonkamer, open keuken en badkamer op de begane grond en 1 royale slaapkamer op de 1e verdieping. Tevens hebben wij een artist impression toegevoegd van de zolderetage, deze ruimte heeft ontzettend veel potentieel. Tot slot hebben wij aangepaste plattegronden toegevoegd die het verschil laten zien tussen de huidige situatie en aangepaste situatie van dubbele bewoning.

Het object beschikt over een energielabel C. Er is grotendeels dubbel glas, 20 zonnepanelen, spouwmuurisolatie & dakisolatie. De woning staat er netjes onderhouden bij. Aan de linkerzijde van de woning is een ruime oprit aanwezig voor 2 auto's en een aangebouwde houten garage. Aan de rechterzijde van de woning is een ruime oprit voor meerdere auto's beschikbaar een een zonneterras achter de parkeerplekken. Aan de achterzijde van de woning staan nog een vrijstaande houten garage en een vrijstaande houten berging.

INDELING

Begane grond: aan beide zijden kunt u de woning betreden. Aan de linkerzijde en ruimte entree met ruime garderobe ruimte, toilet, meterkast en toegang tot de diverse vertrekken. De woonkamer is aan de voorzijde gelegen en is royaal van opzet. De glas-in-lood ramen geven deze ruimte een sfeervol uiterlijk. De ruimte van de woonkamer is fors, het geeft daarvoor veel mogelijkheden qua inrichting. Er is een royale woonkeuken met inbouwapparatuur en toegang tot de grote provisiekelder op stahoogte. Tweede hal aan de achterzijde van de woning (te bereiken via de rechterzijde van de woning) geeft toegang tot de kantoorruimte aan de achterzijde met bijkeuken en toilet. Dit is althans naar huidig gebruik, het is hier dus goed mogelijk om een 2e woning te realiseren waarbij de woonkamer, keuken en badkamer zich op de begane grond bevinden. Vanuit de begane grond is met een vaste trap de verdieping te bereiken. Nu thans ook daar een kantoorruimte maar potentieel interessant als royale slaapkamer.

Eerste verdieping: zeer royale overloop met vaste inbouwkasten. Deze verdieping heeft 5 goed formaten slaapkamers te bieden, waarvan 1 bereikbaar is uit een andere slaapkamer. Van deze kamer kan dus ook 1 royale ruimte gemaakt worden. 2e overloop met aansluiting voor wasapparatuur en opslag mogelijkheden. Goed formaat badkamer met neutrale/nette uitstraling. Voorzien van ligbad, inloopdouche, wastafelmeubel en toilet. Kantoorruimte aan de achterzijde. Deze ruimte is voorzien van dakramen waardoor er een zeer prettig lichtinval is. Deze ruimte is zoals eerder aangegeven perfect om te zetten naar een royale slaapkamer voor eventueel een eigen woning aan de achterzijde.

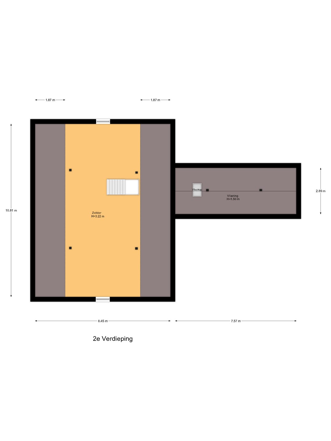
Tweede verdieping:

Zeer royale zolderruimte met veel potentieel. Hier kunnen meerdere kamers gemaakt worden of het kan bewust 1 royale ruimte blijven. Meerdere doeleinden mogelijk. Zie artist impression om een idee te krijgen van het potentieel hier!

Kortom, een zeer royaal woonhuis wat zich perfect ontleent voor meerdere doeleinden. Dus ben jij op zoek naar dubbele bewoning, heb je een groot samengesteld gezin, of ben je op zoek naar bedrijfsmogelijkheden aan huis? Dan is de Oosterlaan 63 in Apeldoorn zeer geschikt!

Energielabel C, geldig tot en met 28-05-2034.

Aanvaarding in overleg.
Sluiten

Recent bekeken