slide
DIVA Makelaars Landelijk werkzaam, lokaal gespecialiseerd!
DIVA staat voor ‘Ster’:
wij willen dan ook uitblinken in optimale service en kwaliteit
Verhuurd

Verhuurd: Koningsplein 3A, 6224 EB Maastricht

€ 676,25 /mnd
Type object Appartement, benedenwoning
Woonoppervlakte 24 m²
Aanvaarding Per donderdag 1 januari 2026
Status Verhuurd

Notitie

Algemeen

TE HUUR - 2 STUDENTENKAMERS

2 Kamers te huur in ruime benedenverdieping met tuin op het zuiden vlakbij het station en de A2. Perfecte ligging: in luttele minuten ben je op de autoweg, bij het station en in het populaire stadsdeel Wyck. Maar bovenal ligt de woning aan het prachtige nieuw aangelegde Vrijheidspark en aan de Groene Loper.

Indeling woning:
Begane grond
Ruime hal met originel... Meer informatie
  • Kenmerken

    Alle kenmerken
    Type object Appartement, benedenwoning
    Bouwperiode 1930
    Status Verhuurd
  • Locatie

Kenmerken

Overdracht
Referentienummer 02115
Huurprijs € 676,25 per maand
Borg € 1.350,-
Servicekosten € 100,- per maand
Status Verhuurd
Aanvaarding Per donderdag 1 januari 2026
Laatste wijziging Dinsdag 16 december 2025
Bouw
Type object Appartement, benedenwoning
Woonlaag 1e woonlaag
Soort bouw Bestaande bouw
Bouwperiode 1930
Oppervlaktes en inhoud
Woonoppervlakte 24 m²
Woonkameroppervlakte 22,1 m²
Keukenoppervlakte 11,89 m²
Inhoud 270 m³
Oppervlakte overige inpandige ruimten 20 m²
Indeling
Aantal bouwlagen 1
Aantal kamers 3 (waarvan 2 slaapkamers)
Aantal badkamers 1
Locatie
Ligging Aan park
Tuin
Hoofdtuin Ja
Tuin 2 - Type Voortuin
Energieverbruik
Energielabel F
Uitrusting
Tuin aanwezig Ja

Beschrijving

TE HUUR - 2 STUDENTENKAMERS

2 Kamers te huur in ruime benedenverdieping met tuin op het zuiden vlakbij het station en de A2. Perfecte ligging: in luttele minuten ben je op de autoweg, bij het station en in het populaire stadsdeel Wyck. Maar bovenal ligt de woning aan het prachtige nieuw aangelegde Vrijheidspark en aan de Groene Loper.

Indeling woning:
Begane grond
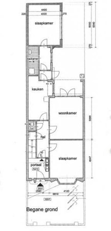
Ruime hal met originele vloer.
Kamer aan de voorzijde (4.99x4.07), ruime woonkamer (4.07x5.43), keuken (3.04x3.91), badkamer (3.27x1.03)
Kamer aan de achterzijde (3.94x5.12)

Kamers zijn beide per 01-01-2025 beschikbaar.
Mooie, royale kamer aan de voorzijde en achterzijde van het huis

Bijzonderheden: Alleen vrouwelijke studenten toegestaan.


Kamer 1 - voorzijde
Huur: € 696,66
Servicekosten: € 100,00 inclusief voorschot gas
Exclusief water en elektra

Totale huur: € 796,66
Waarborgsom: € 1350,-

Kamer 2 - achterzijde
Huur: € 696,99
Servicekosten: € 100,00 inclusief voorschot gas
Exclusief water en elektra

Totale huur: € 796,66
Waarborgsom: € 1350,-

Disclaimer - Huren bij 'mijn huis en ik'
- We nodigen, afhankelijk van de woonruimte, de eerste 10, 15 of 20 potentiële kandidaten uit voor een bezichtiging op volgorde van reactie.
- Vervolgens houden we nog maximaal 20 kandidaten in portefeuille, eveneens op volgorde van reactie.
- De overige kandidaten ontvangen een bericht dat we het maximale aantal reacties hebben bereikt.
- Kandidaten kunnen zich kosteloos inschrijven op onze website voor een zoekopdracht, waarbij je een mail krijgt met ons nieuwste aanbod.
- Als inkomenseis dien je minimaal drie (3) keer de maandhuur bruto te verdienen of een borgsteller te hebben die hieraan voldoet.
- De informatie op onze website is met de nodige zorgvuldigheid samengesteld.
- We aanvaarden geen enkele aansprakelijkheid voor enige onvolledigheid of onjuistheid, dan wel de gevolgen daarvan.
- Alle opgegeven maten en oppervlakten zijn indicatief en hieraan kunnen geen rechten worden ontleend.
- Lees de brochure zorgvuldig door, met name ook de uitsplitsing van de huur en de totale huur per maand.
- Alle potentiële huurders worden uitgebreide gescreend uit op onder andere kredietwaardigheid en inkomstentoets.
Sluiten

Recent bekeken