slide
DIVA Makelaars Landelijk werkzaam, lokaal gespecialiseerd!
DIVA staat voor ‘Ster’:
wij willen dan ook uitblinken in optimale service en kwaliteit
Verkocht onder voorbehoud

Verkocht onder voorbehoud: Ermerzand 101, 7843 PR Erm

€ 245.000,- k.k.
Type object Woonhuis, bungalow, geschakelde woning
Perceeloppervlakte 158 m²
Woonoppervlakte 71 m²
Aanvaarding In overleg
Status Verkocht onder voorbehoud

Notitie

Algemeen

Ermerzand 101 Erm
Wonen op een groene locatie

Ben je op zoek naar een levensloopbestendige bungalow op park Ermerzand in Erm? Zoek niet verder! Deze 3-aaneen geschakelde bungalow heeft de perfecte ligging aan het groen, nabij het water en wonen in een fijne leefomgeving op een park in Drenthe.

Natuurschoon als achtertuin
Het park ligt in het plaatsje Erm en behoort tot de gemeente Coevo... Meer informatie
  • Kenmerken

    Alle kenmerken
    Type object Woonhuis, bungalow, geschakelde woning
    Bouwjaar 1975
    Status Verkocht onder voorbehoud
  • Locatie

Kenmerken

Overdracht
Referentienummer 63098/9497602
Koopsom € 245.000,- k.k.
Status Verkocht onder voorbehoud
Aanvaarding In overleg
Laatste wijziging Dinsdag 21 april 2026
Bouw
Type object Woonhuis, bungalow, geschakelde woning
Soort bouw Bestaande bouw
Bouwjaar 1975
Type dak Platdak
Oppervlaktes en inhoud
Perceeloppervlakte 158 m²
Woonoppervlakte 71 m²
Inhoud 262 m³
Tuinoppervlakte 158 m²
Indeling
Aantal bouwlagen 1
Aantal kamers 3 (waarvan 2 slaapkamers)
Tuin
Type Achtertuin
Hoofdtuin Ja
Oriëntering Zuid-west
Heeft een achterom Ja
Staat Normaal
Energieverbruik
Energielabel C
Uitrusting
Warm water CV-ketel
Badkamervoorzieningen Douche, Toilet, Wastafel
Tuin aanwezig Ja
Heeft schuur/berging Ja

Beschrijving

Ermerzand 101 Erm
Wonen op een groene locatie

Ben je op zoek naar een levensloopbestendige bungalow op park Ermerzand in Erm? Zoek niet verder! Deze 3-aaneen geschakelde bungalow heeft de perfecte ligging aan het groen, nabij het water en wonen in een fijne leefomgeving op een park in Drenthe.

Natuurschoon als achtertuin
Het park ligt in het plaatsje Erm en behoort tot de gemeente Coevorden. Het is gelegen aan de rand van de Hondsrug, tussen Emmen en Coevorden, in een bosrijke omgeving en aan een recreatiemeer van 27 ha, met een eigen zandstrand. Er zijn veel wandel- en fietsroutes uitgezet in de naaste omgeving, zowel door de bossen, over de vlaktes, als in de omringende dorpen van het Ermerzand.

Gelijkvloers wonen
Stap binnen en ontdek het gemak van gelijkvloers wonen, waardoor elke hoek van je nieuwe thuis gemakkelijk bereikbaar is.

Twee slaapkamers
De bungalow beschikt over twee slaapkamers, ideaal voor rustige nachten en ontspannen ochtenden.

Rust en ruimte
Door de grote tuin op het zuidwesten kun je genieten van de rust en de ruimte die rondom de bungalow heerst. De ligging aan het groenplantsoen maakt het compleet.

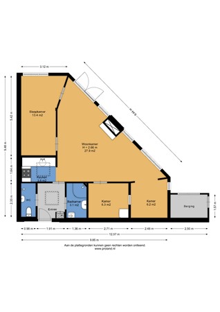
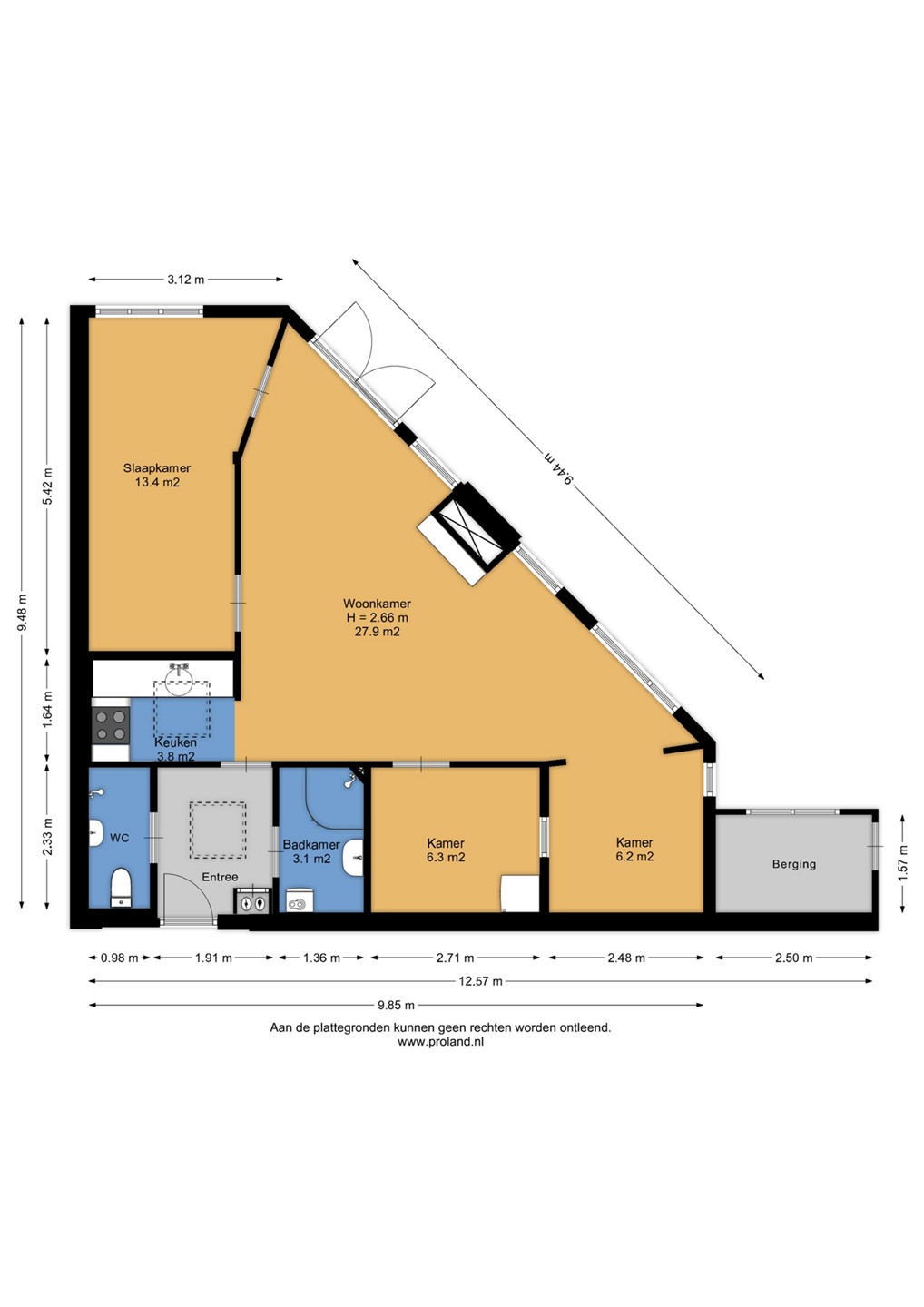
De indeling van de geschakelde bungalow is als volgt.
Je kunt de auto parkeren op een gezamenlijk parkeerterrein. Via de voordeur kom je in de hal met de meterkast en toegang tot de badkamers waarvan één met toilet en de woonkamer. De hal is voorzien van een lichtkoepel voor extra lichtinval.

De compacte badkamer is voorzien van een toilet, wastafel en een douche. Daarnaast is er een ruimte wat eerder de berging was, hier is een begin gemaakt voor het realiseren van een modernere badkamer, met een luxe massage douchecabine. Ook zit hier de aansluiting voor de wasmachine en/of droger.

De halfopen nette keuken is van 2021/2022 en kent een L-vormige opstelling en een lichte kleurstelling. De keuken is voorzien van een inbouw 4-pits inductiekookplaat, een afzuigkap, een spoelbak en een koelkast. De keuken is ook voorzien van een lichtkoepel voor extra lichtinval.

De woonkamer heeft rondom ramen tot aan de grond waardoor er veel lichtinval in de kamer is en vanuit hier heb je een mooi uitzicht op de tuin. Via de tuindeur tussen de woonkamer en slaapkamer stap je zo het terras op waar je heerlijk kunt genieten.
Vanuit de woonkamer/eethoek zijn de twee slaapkamers bereikbaar.

De tuin is netjes onderhouden en voorzien van bestrating. Naast de aangebouwde stenen berging voor de fietsen en het tuingereedschap is er ook nog een kunststof berging aanwezig. De tuin heeft een fraaie ligging aan het groenplantsoen. Je loopt vanuit de bungalow zo richting het water. Een ideale ligging dus op dit mooie park.

Bijzonderheden:

- Bouwjaar 1975
- Verwarming met cv-ketel en pelletkachel
- 6 zonnepanelen (eigendom)
- Airco voor koelen en verwarmen
- Centraal gelegen aan groenplantsoen

In het kader van het project Vitale Vakantieparken Drenthe zijn de provincie Drenthe en de gemeente Coevorden akkoord met het omzetten van de recreatiebestemming naar een woonbestemming. Het traject moet nog worden afgerond. Houd er rekening mee dat er op dit moment nog een beperkte financiering mogelijk is vanwege de huidige recreatieve bestemming.

Bungalowpark Ermerzand heeft een CVE (Coöperatieve Vereniging) en een actieve VvE (Vereniging van Eigenaren), je koopt dus een appartementsrecht op het park. Hierdoor:
- ben je 1/260ste deel eigenaar van het hele park
- kun je 158 m² als ‘eigen grond’ beschouwen
- is er een parkbijdrage van ongeveer € 1.650,- per jaar voor onder andere vuilnis, opstalverzekering en parkonderhoud

Omgeving
- Er zijn wandel-, fiets- en MTB-routes in de directe omgeving
- Het naastgelegen dorp Sleen ligt op korte afstand voor de dagelijkse boodschappen
- Het park heeft een goede aansluiting naar de N34 en A37 richting Emmen en Hoogeveen
- Het treinstation Nieuw-Amsterdam ligt op korte afstand richting Emmen of Zwolle

Aanvaarding in overleg.

Wonen aan het groen
Ben je op zoek naar een mooie bungalow in een mooie omgeving van Drenthe? Maak dan een afspraak voor een bezichtiging. Wij laten je de bungalow graag zien.

Meer informatie? Kijk op Ermerzand101.nl

Proclaimer
Zwanenburg Makelaardij is verantwoordelijk voor de inhoud van deze informatie en doet er alles aan deze actueel en juist te houden. Je kunt ervan uitgaan dat de teksten, kenmerken en maatvoeringen met de grootste zorgvuldigheid zijn opgesteld en berekend. Kom je desondanks toch iets tegen dat niet correct of verouderd is, dan stellen wij jouw reactie bijzonder op prijs.

Plattegronden

Sluiten

Recent bekeken