slide
DIVA Makelaars Landelijk werkzaam, lokaal gespecialiseerd!
DIVA staat voor ‘Ster’:
wij willen dan ook uitblinken in optimale service en kwaliteit
1.jpg 2.jpg 3.jpg 4.jpg 5.jpg 6.jpg 7.jpg 8.jpg 9.jpg 10.jpg 11.jpg 12.jpg 13.jpg 14.jpg 15.jpg 16.jpg 17.jpg 18.jpg 19.jpg 20.jpg 21.jpg 22.jpg 22a.jpg 22b.jpg 22c.jpg 22d.jpg 23.jpg 24.jpg 25.jpg 26.jpg 29.jpg 30.jpg 35.jpg 36.jpg 37.jpg 38.jpg 39.jpg 40.jpg 41.jpg 42.jpg 43.jpg
Verkocht onder voorbehoud

Verkocht onder voorbehoud: Jagerstraat 26, 6075 BG Herkenbosch

€ 385.000,- k.k.
Type object Woonhuis, eengezinswoning, hoekwoning
Perceeloppervlakte 260 m²
Woonoppervlakte 125 m²
Aanvaarding In overleg
Status Verkocht onder voorbehoud

Notitie

Algemeen

Welkom op Jagerstraat 26. Deze fijne hoekwoning is perfect voor starters, doorstromers en gezinnen die op zoek zijn naar ruimte en een fijne plek om thuis te komen. De woning is gelegen in een rustige woonomgeving nabij een groenvoorziening en de dagelijkse voorzieningen.

Met een woonoppervlakte van 125 m² biedt deze woning voldoende ruimte voor het hele gezin.
De fijne woonkamer met open k... Meer informatie
  • Kenmerken

    Alle kenmerken
    Type object Woonhuis, eengezinswoning, hoekwoning
    Bouwperiode 1964
    Status Verkocht onder voorbehoud
  • Locatie

Kenmerken

Overdracht
Referentienummer 212
Vraagprijs € 385.000,- k.k.
Status Verkocht onder voorbehoud
Aanvaarding In overleg
Laatste wijziging Woensdag 19 november 2025
Bouw
Type object Woonhuis, eengezinswoning, hoekwoning
Soort bouw Bestaande bouw
Bouwperiode 1964
Dakbedekking Bitumen, Dakpannen
Type dak Samengesteld
Isolatievormen Dakisolatie, HR-glas, Muurisolatie, Spouwmuren, Vloerisolatie
Oppervlaktes en inhoud
Perceeloppervlakte 260 m²
Woonoppervlakte 125 m²
Woonkameroppervlakte 39 m²
Keukenoppervlakte 10 m²
Inhoud 530 m³
Oppervlakte overige inpandige ruimten 24 m²
Oppervlakte externe bergruimte 35 m²
Oppervlakte gebouwgebonden buitenruimte 10 m²
Indeling
Aantal bouwlagen 3 (en 1 kelder)
Aantal kamers 6 (waarvan 4 slaapkamers)
Aantal badkamers 1 (en 1 apart toilet)
Locatie
Ligging Aan rustige weg, In woonwijk, Open ligging
Tuin
Type Achtertuin
Hoofdtuin Ja
Oriëntering Zuiden
Heeft een achterom Ja
Staat Goed onderhouden
Energieverbruik
Energielabel A
CV ketel
CV ketel Nefit HR combiketel
Warmtebron Gas
Bouwjaar 2023
Combiketel Ja
Eigendom Eigendom
Uitrusting
Aantal parkeerplaatsen 1
Warm water CV-ketel
Verwarmingssysteem Airconditioning, Centrale verwarming
Keukenvoorzieningen Inbouwapparatuur
Badkamervoorzieningen Douche, Ligbad, Toilet, Wastafel, Wastafelmeubel
Parkeergelegenheid Vrijstaande stenen garage
Heeft airco Ja
Heeft een rookkanaal Ja
Glasvezelaansluiting aanwezig Ja
Tuin aanwezig Ja
Heeft een garage Ja
Heeft rolluiken Ja
Heeft schuur/berging Ja
Heeft een schuifpui Ja
Heeft zonnepanelen Ja
Kadastrale gegevens
Kadastrale aanduiding Melick en Herkenbosch A 3737
Perceeloppervlakte 260 m²
Omvang Geheel perceel
Eigendomsituatie Eigen grond

Beschrijving

Welkom op Jagerstraat 26. Deze fijne hoekwoning is perfect voor starters, doorstromers en gezinnen die op zoek zijn naar ruimte en een fijne plek om thuis te komen. De woning is gelegen in een rustige woonomgeving nabij een groenvoorziening en de dagelijkse voorzieningen.

Met een woonoppervlakte van 125 m² biedt deze woning voldoende ruimte voor het hele gezin.
De fijne woonkamer met open keuken, de tuinkamer met mooi tuincontact en de 4 slaapkamers en de badkamer op de verdieping bieden genoeg ruimte voor iedereen.

De twee kelderruimtes zorgen voor extra mogelijkheden en bergruimte.

De garage en de handige berging naast de woning bieden genoeg plek voor stalling en opslag van spullen maar zijn ook zeer geschikt voor de uitoefening van een hobby. Het perceel heeft een oppervlakte van 260 m², waarvan een groot gedeelte bestemd is als achtertuin. Hier kun je volop genieten van het buitenleven onder een van de twee overkappingen en ook heerlijk ontspannen in de zon.

De woning is goed geïsoleerd, voorzien van zonnepanelen en heeft energielabel A. Kortom, een fijne en ruime woning waar het goed wonen is!

Indeling

Begane grond:
De entree geeft toegang tot de voordeur en de hal. Vanuit de hal met tegelvloer, meterkast en trap naar de 1e verdieping zijn het toilet en de keuken bereikbaar. De open keuken met tegelvloer is voorzien van een moderne keukenopstelling met apparatuur (inductiekookplaat, afzuigkap, vaatwasser, oven, combimagnetron en koelkast met biofresh) en biedt voldoende werk- en kastruimte. Een loopdeur geeft toegang tot de overkapping en de tuin.
De fijne en lichte woonkamer (ca. 26 m²) is voorzien van een tegelvloer en een schuifpui naar de tuinkamer. De aangebouwde tuinkamer (ca. 13 m²) is voorzien van een laminaatvloer, heeft veel lichtinval en een schuifpui naar de tuin. De hal, woonkamer en keuken zijn voorzien van vloerverwarming en in de keuken hangt een airco.

Eerste verdieping

1e verdieping:
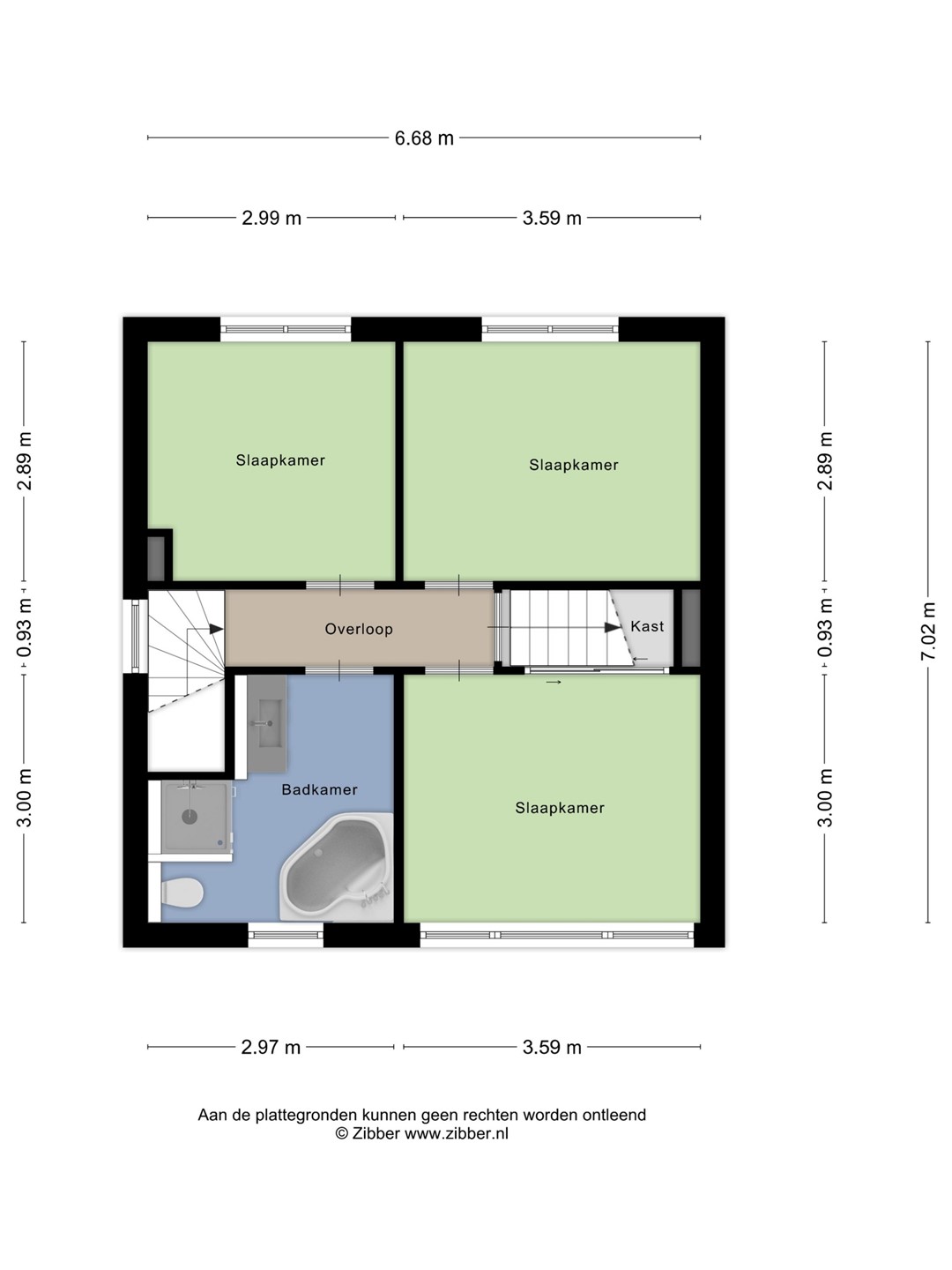
Op de verdieping bevinden zich de overloop, 3 slaapkamers en de badkamer. De overloop en de slaapkamers zijn voorzien van een doorlopende laminaatvloer. De slaapkamer zijn respectievelijk ca. 11, 10 en 8,5 m² groot. De moderne badkamer is voorzien van een ligbad, douche, wandcloset, een wastafel met wandmeubel en een designradiator.

Tweede verdieping

2e verdieping:
Middels een vaste trap is de tweede verdieping bereikbaar. Hier bevindt zich de 4e slaapkamer (ca. 16 m²) met een eigen wastafel voorzien van warm- en koudwater. Deze ruimte is afgewerkt met een laminaatvloer, een grote dakkapel, een airco en praktische bergkasten.

Overige verdiepingen

Kelder:
De kelder is voorzien van een tegelvloer en verdeeld in twee ruimtes van ca. 8 en ca. 12 m². In de eerste kelderruimte bevinden zich de witgoedaansluitingen. De tweede kelderruimte biedt tal van mogelijkheden voor bijvoorbeeld werk-, of hobbyruimte of mancave maar en kan worden gebruikt als provisie- en opslagruimte.

Tuin

Perceel:
De woning is gelegen op een fijn hoekperceel met aan de achterzijde de oprit met toegang tot de garage. Er is voldoende parkeergelegenheid aanwezig. De garage (ca. 17 m²) en de berging (ca. 17 m²) naast de woning bieden voldoende mogelijkheden voor opslag en voor hobby’s.
De tuin is geheel omheind, heeft een prima bezonning en is voorzien van een terras, twee overkappingen waarvan één afsluitbaar is met zeilen, gazon en beplanting. De tuin is achterom bereikbaar middels de een poort en via de garage.

Bijzonderheden

Algemeen:
Deze fijne hoekwoning is oorspronkelijk gebouwd in 1964 en is in de loop der jaren aan- en verbouwd. De woning is gelegen in een rustige en kindvriendelijke woonomgeving nabij een groenvoorziening en nabij de dagelijkse voorzieningen.
De woning is goed onderhouden en is voorzien van vloer-, spouwmuur- en dakisolatie, HR++ beglazing, rolluiken, airco’s, een HR combiketel (december 2023), 18 zonnepanelen en heeft energielabel A.
Het woonoppervlak bedraagt ca. 125 m², overige inpandige ruimte ca. 24 m², gebouw gebonden buitenruimte ca. 10 m², externe berging ca. 35 m², de inhoud bedraagt ca. 530 m³ en het perceeloppervlak 260 m².

Omgeving:
Herkenbosch maakt deel uit van de gemeente Roerdalen en heeft ruim 4000 inwoners. Het dorp is gelegen in een landelijke en groene woonomgeving langs rivier de Roer en Nationaal Park de Meinweg met haar vele wandel- en fietsroutes. Herkenbosch beschikt over meer dan voldoende voorzieningen zoals een basisschool, supermarkt, diverse winkels, een huisartsenpraktijk, apotheek, een tandartspraktijk, restaurants, cafés, een dorpshuis, diverse (sport)verenigingen, een golfbaan en tal van recreatiemogelijkheden. Herkenbosch ligt op circa 10 kilometer van de stad Roermond met zijn uitgebreide maasplassen, tal van winkels en terrasjes in de fraaie historische binnenstad en het Designer Outlet Center. Het Bourgondische Maastricht en het Zuid-Limburgse heuvelland maar ook Venlo, Eindhoven en grote Duitse steden als Düsseldorf, Keulen en Aken zijn eveneens goed bereikbaar.

Plattegronden

Brochure(s) en overige bijlagen

Sluiten

Recent bekeken