slide
DIVA Makelaars Landelijk werkzaam, lokaal gespecialiseerd!
DIVA staat voor ‘Ster’:
wij willen dan ook uitblinken in optimale service en kwaliteit
IMG_9220.JPEG
Onder bod

Onder bod: Elisabethstraat 8, 6351 LH Bocholtz

€ 1.200,- /mnd
Type object Woonhuis, eengezinswoning, tussenwoning
Perceeloppervlakte 164 m²
Woonoppervlakte 105 m²
Aanvaarding Per zondag 1 februari 2026
Status Onder bod

Notitie

Algemeen

Hélène TERRA Makelaardij biedt aan: TE HUUR Elisabethstraat 8 in Bocholtz

Zoek je een levensloopbestendige woning met een ruime slaapkamer en een moderne badkamer op de begane grond? Deze woning in de wijk Kerkeveld grenst aan een breed plantsoen en is in 2021 volledig gerenoveerd. De keuken, badkamer en beide toiletruimtes zijn recent geplaatst, op beide verdiepingen liggen grote plavuizen... Meer informatie
  • Kenmerken

    Alle kenmerken
    Type object Woonhuis, eengezinswoning, tussenwoning
    Bouwperiode 1990
    Status Onder bod
  • Locatie

Kenmerken

Overdracht
Referentienummer 277
Huurprijs € 1.200,- per maand (geïndexeerd)
Borg € 2.020,-
Servicekosten € 40,50 per maand
Status Onder bod
Aanvaarding Per zondag 1 februari 2026
Laatste wijziging Donderdag 4 december 2025
Bouw
Type object Woonhuis, eengezinswoning, tussenwoning
Soort bouw Bestaande bouw
Bouwperiode 1990
Dakbedekking Dakpannen
Type dak Zadeldak
Isolatievormen Dakisolatie, Dubbel glas, Muurisolatie, Spouwmuren, Vloerisolatie, Volledig geïsoleerd
Oppervlaktes en inhoud
Perceeloppervlakte 164 m²
Woonoppervlakte 105 m²
Inhoud 317 m³
Oppervlakte externe bergruimte 5 m²
Indeling
Aantal bouwlagen 2
Aantal kamers 4
Aantal badkamers 1
Locatie
Ligging Aan rustige weg, In woonwijk
Tuin
Type Achtertuin
Hoofdtuin Ja
Oriëntering Noord west
Heeft een achterom Ja
Staat Goed onderhouden
Tuin 2 - Type Voortuin
Energieverbruik
Energielabel A
CV ketel
CV ketel Bosch Comfort 4+
Warmtebron Gas
Bouwjaar 2024
Combiketel Ja
Eigendom Huur
Uitrusting
Warm water CV-ketel
Verwarmingssysteem Centrale verwarming
Badkamervoorzieningen Inloopdouche, Wasmachineaansluiting, Wastafel, Wastafelmeubel
Tuin aanwezig Ja
Heeft schuur/berging Ja
Kadastrale gegevens
Kadastrale aanduiding Simpelveld G 2345
Perceeloppervlakte 164 m²
Omvang Geheel perceel
Eigendomsituatie Eigen grond

Beschrijving

Hélène TERRA Makelaardij biedt aan: TE HUUR Elisabethstraat 8 in Bocholtz

Zoek je een levensloopbestendige woning met een ruime slaapkamer en een moderne badkamer op de begane grond? Deze woning in de wijk Kerkeveld grenst aan een breed plantsoen en is in 2021 volledig gerenoveerd. De keuken, badkamer en beide toiletruimtes zijn recent geplaatst, op beide verdiepingen liggen grote plavuizen en alle wanden plus plafonds zijn voorzien van spack spuitwerk. Ook de achtertuin is aangepakt; zo zijn er houten schuttingen geplaatst en is er een groot terras gemaakt.
De woning staat in de wijk Kerkeveld aan de westkant van Bocholtz. Het is maar 750 meter lopen naar het dorpscentrum met diverse winkels, horeca en een supermarkt. Aan de Schoolstraat stopt bus 43 richting Vaals, Kerkrade en Heerlen. In het naastgelegen Simpelveld zijn vele voorzieningen en het omringende Heuvellandschap nodigt uit voor een wandeling of fietstocht. De N281, N278 en A76 zorgen voor een goede verbinding met Gulpen, Vaals, Heerlen, Kerkrade en de Ring Parkstad.

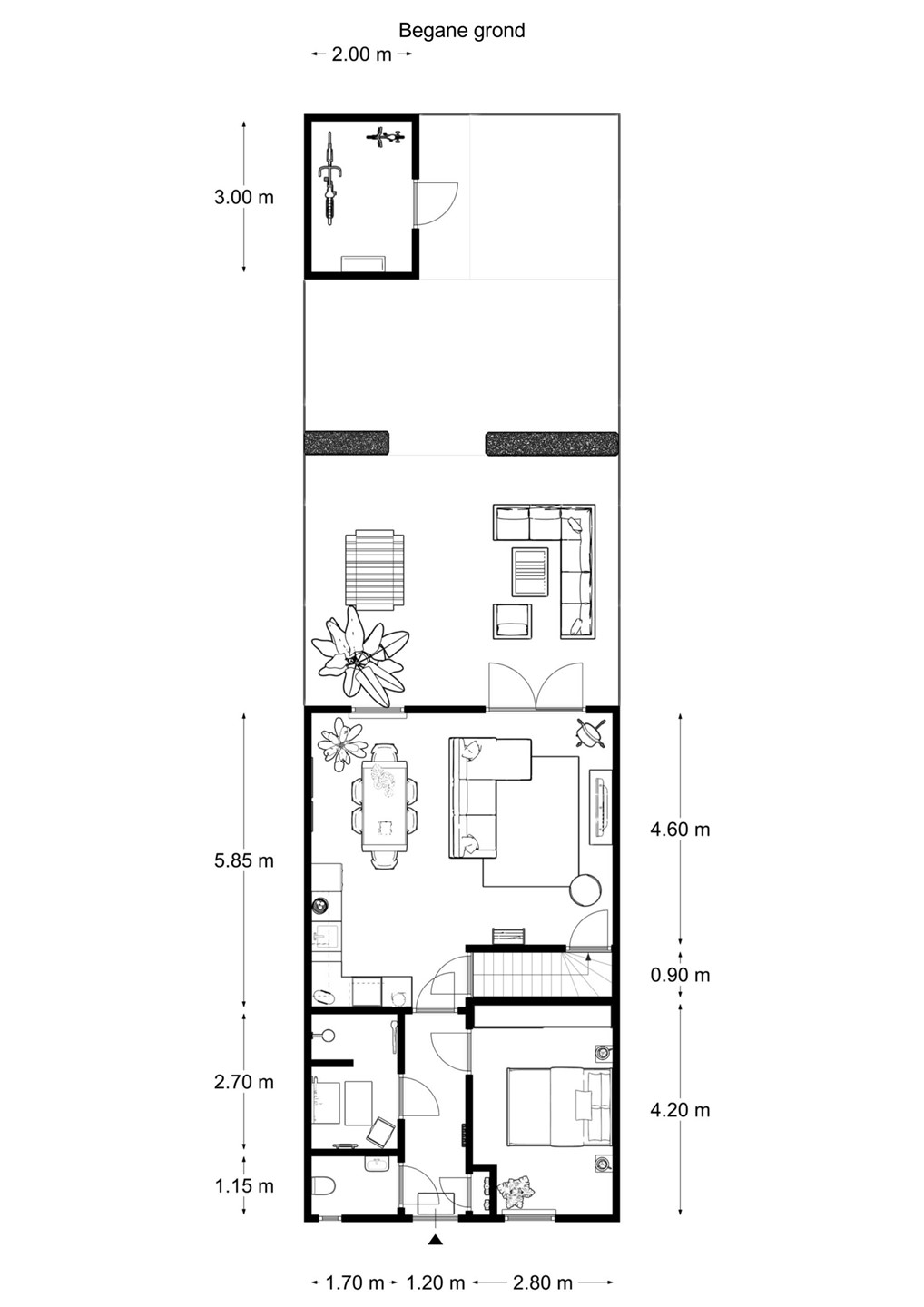
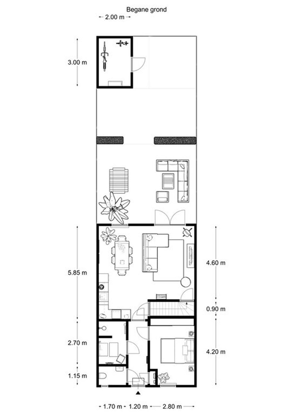
Indeling:
Begane grond:
Via het paadje in de voortuin kom je bij de voordeur van deze instapklare woning. In de hal zijn de deuren naar de meterkast, toiletruimte, slaapkamer, badkamer en de woonkamer met open keuken. Op de hele begane grond ligt een antraciet plavuizen vloer, en zowel de wanden als plafonds zijn recent strak afgewerkt met spack spuitwerk.
De ruime moderne toiletruimte heeft een wandcloset en een fonteintje. In de naastgelegen badkamer zijn een inloopdouche, wastafelmeubel, wandradiator en de aansluitingen voor de wasapparatuur. Aan de overzijde van de hal is de ruime tweepersoonskamer met genoeg plek voor een grote garderobekast.
De tuingerichte woonkamer met open keuken is een lichte leefruimte met openslaande tuindeuren, een berging onder de trap en een aparte deur naar de tuin. Je hoeft geen vloer te leggen en niet te schilderen; je kunt direct het verhuisbedrijf inschakelen. De keuken heeft een moderne hoekopstelling met een inductiekookplaat, afzuigkap, vaatwasser, combimagnetron en een koelkast.

Eerste verdieping:
De overloop is een grote ruimte die je deels kunt gebruiken als werk-, studeer- of hobbyruimte. Aan de voorzijde zijn een nieuwe extra toiletruimte gerealiseerd en een praktische berging in de schuinte van het dak. De toiletruimte is ingedeeld met een wandcloset en een wastafel met badmeubel.
Aansluitend is de tweede slaapkamer met een dakkapel aan de voorzijde en meer dan genoeg ruimte voor een tweepersoonsbed; ideaal als vrienden of familie blijven logeren. Op deze verdieping liggen dezelfde plavuizen als op de begane grond en zijn de wanden plus schuine dak recent voorzien van spack spuitwerk.

Exterieur:
Niet alleen de woning maar ook de voor- en achtertuin zijn in 2021 opnieuw aangelegd. De voortuin is voorzien van grind en in de achtertuin is een groot terras gemaakt. De ligging is op het noord-oosten en dankzij de lage bebouwing zit je hier een groot deel van de dag in de zon. De houten schuttingen zorgen voor privacy en de fiets kan in de berging. Via de poort kom je in de steeg van waaruit je de openbare weg kunt bereiken.

Bijzonderheden:
- De woning heeft dak-, spouwmuur- en begane grondvloer isolatie
- Houten kozijnen en ramen, voorzien van isolatieglas
- Verwarming en warm water via een HR-ketel
- Mechanische ventilatie in de keuken, badkamer en toiletruimte op de eerste verdieping
- Antracietkleurige plavuizen (60 x 60 cm) op de begane grond en eerste verdieping
- Uitgebreide meterkast met aardlekschakelaars en dag-/nachtstroom
- Energielabel A.

Afwerkingen:
- keukeninstallatie (2021) met inbouwapparatuur als 4-pits inductie kookplaat, afzuigkap, combi-oven/magnetron, koelkast, vaatwasser;
- badkamer (2021) en twee toiletruimtes (2021) (begane grond en eerste verdieping);
- wanden en plafonds zijn voorzien van spack spuitwerk (2021);
- tuinaanleg (2021) met beklinkerd terras (ca. 6 x 5 meter), grind en houten schuttingen.

Huurvoorwaarden:
• Doelgroep: 1 à 2 personen; leeftijd 40+
• Huurprijs: € 1.200, = per maand exclusief gas, water en elektra
• Huurtermijn: minimaal 24 maanden; daarna voor onbepaalde duur
• Borgsom: 2 maanden huur
• Huur c.v.-ketel: € 40,50 per maand
• Aanvaarding: vanaf 01-02-2026
• Overig: huisdieren niet toegestaan
• Bemiddelingscourtage huurder: geen bemiddelingscourtageverhuurmakelaar
• Huurovereenkomst: de huurovereenkomst wordt opgesteld conform het ROZ-model 2024: huurovereenkomst woonruimten

Deze woning is uitdrukkelijk niet bestemd voor woningdelers of studentenhuisvesting. De verhuurder behoudt zich het recht voor om huurkandidaten naar eigen inzicht te accepteren of af te wijzen, op basis van geschiktheid, financiële draagkracht en het totale huurprofiel. Aan bezichtigingen of het indienen van een aanvraag kunnen geen rechten worden ontleend.
Alle potentiële huurders worden uitgebreid gescreend op onder andere kredietwaardigheid en inkomstentoets. Als inkomenseis dien je minimaal drie (3,5) keer de maandhuur bruto te verdienen, waarbij eventueel partnerinkomen voor 50% wordt meegerekend.

Bijzonderheden

In 2021 is deze woning volledig gemoderniseerd.

Plattegronden

Brochure(s) en overige bijlagen

Sluiten

Recent bekeken