slide
DIVA Makelaars Landelijk werkzaam, lokaal gespecialiseerd!
DIVA staat voor ‘Ster’:
wij willen dan ook uitblinken in optimale service en kwaliteit
01..jpg 02..jpg 03..jpg 04..jpg 05..jpg 06..jpg 07..jpg 08..jpg 09..jpg 10..jpg 11..jpg 12..jpg 13..jpg 14..jpg 15..jpg 16..jpg 17.jpg 18.jpg 19.jpg 20..jpg 21..jpg 22..jpg 23..jpg 24..jpg 25..jpg 26..jpg 27..jpg 28..jpg 29..jpg 30..jpg 31..jpg 32..jpg 33..jpg 34..jpg 35..jpg 36..jpg
Onder bod

Onder bod: Prinsenstraat 11, 2411 TN Bodegraven

€ 425.000,- k.k.
Type object Woonhuis, eengezinswoning, hoekwoning
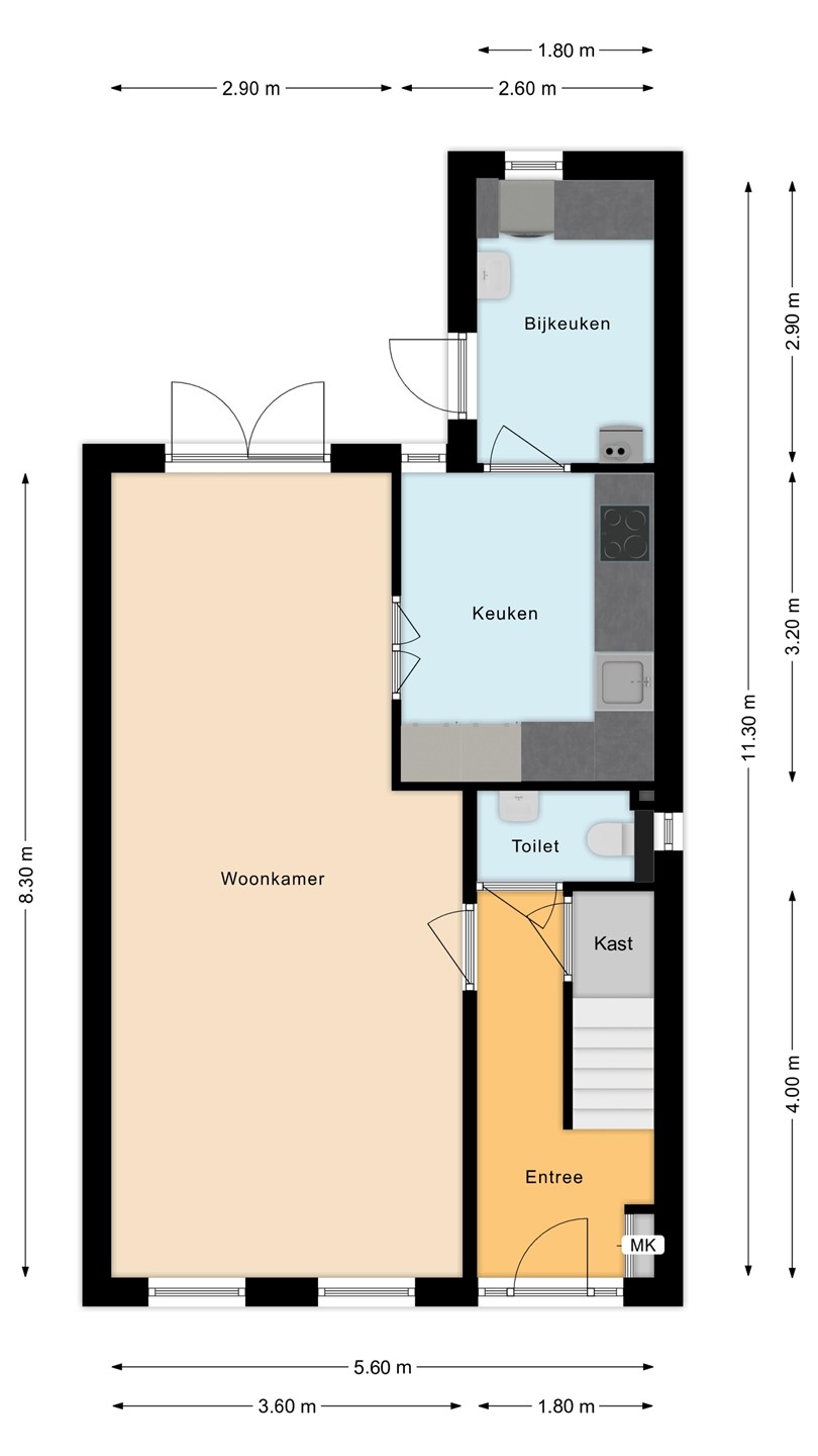
Perceeloppervlakte 154 m²
Woonoppervlakte 97 m²
Aanvaarding In overleg
Status Onder bod

Notitie

Algemeen

Karaktervolle jaren ’20-woning in Bodegraven met een perfecte mix van authentieke charme en modern comfort. De lichte woonkamer met visgraatvloer opent via openslaande deuren naar de diepe, zonnige achtertuin op het westen – ideaal voor lange zomeravonden.
De nieuwe keuken met luxe inbouwapparatuur is een echte blikvanger, aangevuld met een praktische bijkeuken en boven drie slaapkamers en een... Meer informatie
  • Kenmerken

    Alle kenmerken
    Type object Woonhuis, eengezinswoning, hoekwoning
    Bouwperiode 1927
    Status Onder bod
  • Locatie

Kenmerken

Overdracht
Referentienummer 00410
Vraagprijs € 425.000,- k.k.
Inrichting Ja
Inrichting Gestoffeerd
Status Onder bod
Aanvaarding In overleg
Laatste wijziging Dinsdag 16 december 2025
Bouw
Type object Woonhuis, eengezinswoning, hoekwoning
Soort bouw Bestaande bouw
Bouwperiode 1927
Dakbedekking Dakpannen
Type dak Zadeldak
Isolatievormen Dakisolatie, Dubbel glas, Muurisolatie
Oppervlaktes en inhoud
Perceeloppervlakte 154 m²
Woonoppervlakte 97 m²
Woonkameroppervlakte 27,57 m²
Keukenoppervlakte 8,32 m²
Inhoud 330 m³
Oppervlakte externe bergruimte 9 m²
Indeling
Aantal bouwlagen 2
Aantal kamers 4 (waarvan 3 slaapkamers)
Aantal badkamers 1 (en 1 apart toilet)
Locatie
Ligging Dichtbij openbaar vervoer, In woonwijk
Tuin
Type Achtertuin
Hoofdtuin Ja
Oriëntering West
Staat Prachtig aangelegd
Energieverbruik
Energielabel C
CV ketel
CV ketel Intergas
Warmtebron Gas
Bouwjaar 2022
Combiketel Ja
Eigendom Eigendom
Uitrusting
Warm water CV-ketel
Verwarmingssysteem Centrale verwarming, Vloerverwarming (gedeeltelijk)
Ventilatie methode Natuurlijke ventilatie
Keukenvoorzieningen Inbouwapparatuur
Badkamervoorzieningen Douche, Ligbad, Toilet, Wastafelmeubel
Glasvezelaansluiting aanwezig Ja
Tuin aanwezig Ja
Heeft schuur/berging Ja
Kadastrale gegevens
Kadastrale aanduiding Bodegraven C 7221
Perceeloppervlakte 154 m²
Omvang Geheel perceel
Eigendomsituatie Eigen grond

Beschrijving

Karaktervolle jaren ’20-woning in Bodegraven met een perfecte mix van authentieke charme en modern comfort. De lichte woonkamer met visgraatvloer opent via openslaande deuren naar de diepe, zonnige achtertuin op het westen – ideaal voor lange zomeravonden.
De nieuwe keuken met luxe inbouwapparatuur is een echte blikvanger, aangevuld met een praktische bijkeuken en boven drie slaapkamers en een moderne badkamer. Gelegen midden in het centrum, waar rust en levendigheid samenkomen.

Highlights van de woning:
• Bouwjaar 1927
• Woonoppervlakte: 97 m² | Perceel: 154 m²
• Energielabel C
• Sfeervolle, lichte woonkamer waar het daglicht rijk binnenvalt via de openslaande deuren naar de tuin, compleet met een elegante visgraat parketvloer
• Stijlvolle keuken uit 2019 met luxe inbouwapparatuur – een heerlijke plek voor elke kookliefhebber
• Praktische, ruime bijkeuken met strak ontworpen, handgemaakte kasten voor wasmachine en droger
• Modern en eigentijds toilet op de begane grond
• Drie fijne, rustige slaapkamers die uitnodigen tot ontspannen
• Royale, complete badkamer met vloerverwarming, ligbad én douche – een echte wellnessplek in huis
• Riante bergruimte, waaronder een grote vliering voor al je spullen
• Nieuwe Intergas CV-ketel (2022) voor comfortabel en efficiënt wonen
• Heerlijk diepe, zonnige achtertuin op het westen, strak aangelegd, achterom bereikbaar en ideaal om lange zomeravonden door te brengen
• Berging met elektra – perfect voor fietsen, gereedschap of hobbyruimte
• Gezellige en levendige woonomgeving, midden in het sfeervolle centrum van Bodegraven

De omgeving.
De woning ligt in het gezellige centrum van Bodegraven en is goed bereikbaar met de auto én met openbaar vervoer. De N11 en de A12 zijn binnen enkele autominuten bereikbaar. Het station van Bodegraven is om de hoek. Vanuit hier ben je met de trein in ca. 20 minuten in Leiden of in Utrecht. Voorzieningen als scholen en sportverenigingen bevinden zich allen in de directe omgeving.

www.prinsenstraat11.nl

Kijken?
Maak een afspraak om deze mooie woning in het echt te bewonderen. Dit kan door te reageren via de woning op Funda, we nemen dan contact met je op om een afspraak in te plannen. We sturen je dan ook meer informatie over deze woning toe, zodat jij je goed kan voorbereiden op de bezichtiging en gerichte vragen kunt stellen.

Deze informatie is door ons met de nodige zorgvuldigheid samengesteld. Er wordt echter geen enkele aansprakelijkheid aanvaard voor enige onvolledigheid, onjuistheid of anderszins, dan wel de gevolgen daarvan. Alle opgegeven maten en oppervlakten zijn indicatief.

Plattegronden

Brochure(s) en overige bijlagen

Sluiten

Recent bekeken