slide
DIVA Makelaars Landelijk werkzaam, lokaal gespecialiseerd!
DIVA staat voor ‘Ster’:
wij willen dan ook uitblinken in optimale service en kwaliteit
Prijsverlaging

Te koop: Eserstraat 23b, 7849 PG De Kiel

€ 449.500,- k.k.
Type object Woonhuis, eengezinswoning, twee onder een kap woning
Perceeloppervlakte 1.382 m²
Woonoppervlakte 129 m²
Aanvaarding In overleg
Status Prijsverlaging

Notitie

Algemeen

Eserstraat 23b De Kiel
Instapklare woning met mogelijkheden

In het bosrijke Drenthe, op een steenworp afstand van veel natuurschoon staat deze royale twee-onder-een-kapwoning met een vrijstaande stenen garage en berging/schuur op een kavel van 1.382 m² eigen grond.

De woning is oorspronkelijk in 1991 traditioneel gebouwd en vanaf 2011 nagenoeg volledig gemoderniseerd met nieuw sanitair... Meer informatie
  • Kenmerken

    Alle kenmerken
    Type object Woonhuis, eengezinswoning, twee onder een kap woning
    Bouwjaar 1991
    Status Prijsverlaging
  • Locatie

Kenmerken

Overdracht
Referentienummer 63098/9522246
Vraagprijs € 449.500,- k.k.
Status Prijsverlaging
Aanvaarding In overleg
Laatste wijziging Maandag 8 december 2025
Bouw
Type object Woonhuis, eengezinswoning, twee onder een kap woning
Soort bouw Bestaande bouw
Bouwjaar 1991
Type dak Samengesteld
Isolatievormen Dakisolatie, Dubbel glas, Muurisolatie, Vloerisolatie
Oppervlaktes en inhoud
Perceeloppervlakte 1.382 m²
Woonoppervlakte 129 m²
Inhoud 423 m³
Oppervlakte gebouwgebonden buitenruimte 3 m²
Tuinoppervlakte 1.100 m²
Indeling
Aantal bouwlagen 3
Aantal kamers 6 (waarvan 3 slaapkamers)
Locatie
Ligging Aan rustige weg, In bosrijke omgeving, In woonwijk
Tuin
Type Achtertuin
Hoofdtuin Ja
Oriëntering Noord west
Heeft een achterom Ja
Staat Normaal
Energieverbruik
Energielabel A
Uitrusting
Warm water CV-ketel
Badkamervoorzieningen Douche, Ligbad, Toilet, Wastafel, Wastafelmeubel
Parkeergelegenheid Vrijstaande stenen garage
Tuin aanwezig Ja
Heeft een garage Ja
Heeft schuur/berging Ja
Heeft ventilatie Ja

Beschrijving

Eserstraat 23b De Kiel
Instapklare woning met mogelijkheden

In het bosrijke Drenthe, op een steenworp afstand van veel natuurschoon staat deze royale twee-onder-een-kapwoning met een vrijstaande stenen garage en berging/schuur op een kavel van 1.382 m² eigen grond.

De woning is oorspronkelijk in 1991 traditioneel gebouwd en vanaf 2011 nagenoeg volledig gemoderniseerd met nieuw sanitair en een inbouwkeuken. De aangebrachte kunststof kozijnen, de 14 zonnepanelen en de aanwezige isolatie geven de woning een duurzaam energielabel A.

Vrij uitzicht naar achteren, met veel ruimte voor hobbyisten of liefhebbers van kleinvee en toch prettig wonen binnen de bebouwing van de woonwijk met de voorzieningen op korte afstand.

De indeling is als volgt.

Je parkeert je auto op je eigen oprit en bereikt de overdekte voordeur aan de zijkant van de woning. Zo stap je de hal binnen met de trapopgang, een (gasten)toilet en doorloop naar de woonkamer.

De L-vormige woonkamer is voorzien van een pvc-vloer en heeft een zithoek aan de straatzijde en een eethoek aan de achterzijde met openslaande deuren naar de tuin.

De hoekkeuken met composieten aanrechtblad is deels uit het zicht geplaatst. Uiteraard is de keuken diverse inbouwapparatuur zoals een inductiekookplaat met afzuigkap, een koelkast, een vaatwasser en combimagnetron-oven.

De aangrenzende volledig geïsoleerde bijkeuken biedt veel mogelijkheden. Naast de aansluitingen voor wasmachine en droger, is de ruimte groot genoeg om in de toekomst tot slaapkamer te verbouwen. Op dit moment is de bijkeuken praktisch ingericht door de volwaardige tweede keuken, zodat je naast een handwasje kunt doen ook extra ruimte hebt wanneer je een uitgebreid (kerst)diner aan het voorbereiden bent. Daarnaast is de bijkeuken zeker handig wanneer je met je hond hebt gewandeld of je van je sport thuiskomt. Laat je vuile kleding en laarzen achter en wandel (samen met je hond) schoon je huis in.

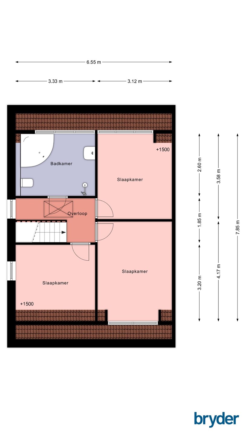
Eerste verdieping
Met de vaste trap bereik je de overloop. Op de verdieping zijn drie slaapkamers waarvan twee zijn voorzien van een dakkapel. De overloop is ook voorzien van een pvc-vloer.

De luxe badkamer voorzien van een dakkapel is compleet uitgevoerd met een whirlpool ligbad, een glazen douchecabine met regendouche en extra handdouche, een tweede toilet en een wastafel met meubel. Er is mechanische ventilatie aanwezig.

Tweede verdieping
Via een vlizotrap bereik je de bergzolder om je (kampeer)spullen en kerstboom op te bergen.

Van binnen naar buiten
Vanaf de ruime oprit loop je langs het vrijstaande bijgebouw van, jawel 14,5m x 6,5m. De ruimte is opgedeeld in een berging, een garage en grote hobbyruimte met een extra garagedeur. Of je nu graag aan auto’s of motoren klust, of de ruimte in gebruik wil nemen als werkplaats of atelier, mogelijkheden zijn er genoeg. Verder zijn hier een buitenkraan en een waterbron aanwezig.

De tuin is ingericht met een terras, bestrating en groen. Achterin is de tuin geschikt voor het houden van kleinvee als kippen, schapen en geitjes. De achterliggende paardenwei is niet meer te huur. Het is aan jou wat je met de paddock en het grasland wilt gaan doen.

Bijzonderheden:
- Bij de bouw is de woning volledig geïsoleerd en voorzien van dubbel glas
- De garage van twee elektrisch bedienbare sectionaaldeuren
- Meterkast is vernieuwd. Er is een krachtstroomgroep en een glasvezelkabel aanwezig
- Alle kozijnen zijn vervangen door kunststof, alleen de buitendeuren zijn nog van hout
- De dakkapel op de verdieping is vernieuwd
- Totaal 14 zonnepanelen aanwezig

Het dorp
De Kiel ontstond rond 1855 als een ‘vluchtheuvel’, een nederzetting van mensen die zich elders niet thuis voelden of waren verbannen. Hier, midden op de heide en ver van de streng controlerende dorpsgemeenschappen, leefden ze in volle vrijheid. Op dit punt kwamen ook zeven boermarken bij elkaar, waardoor het erg makkelijk was om van het ene gebied in het andere over te stappen. Deze unieke plaats is nu gemarkeerd met de zevenmarkensteen.

Ligging
De Kiel in Drenthe heeft beperkte voorzieningen in het dorp zelf; er zijn geen winkels of horeca, maar wel een dorpshuis voor lokale activiteiten en een vereniging voor dorpsbelangen. De plaats is wel een goede uitvalsbasis voor recreatie, met wandel- en fietsmogelijkheden in de omliggende natuur en bezienswaardigheden zoals Orvelte, het Boomkroonpad en het Hunebedcentrum in de buurt.

Schoonoord
Er is een busverbinding naar Emmen of Assen. Op twee kilometer afstand ligt het dorp Schoonoord met winkels, een bibliotheek, horeca, sportaccommodaties en zorgvoorzieningen.

Meer informatie over de woning en de (leef)omgeving kun je vinden op eserstraat23b.nl.

Ben je op zoek naar een woning met een heerlijke tuin en fijne leefomgeving? Laten we dan een afspraak maken. Fijn wonen begint met zwaandacht.

Proclaimer
Zwanenburg Makelaardij is verantwoordelijk voor de inhoud van deze informatie en doet er alles aan deze actueel en juist te houden. Je kunt ervan uitgaan dat de teksten, kenmerken en maatvoeringen met de grootste zorgvuldigheid zijn opgesteld en berekend. Kom je desondanks toch iets tegen dat niet correct of verouderd is, dan stellen wij je reactie bijzonder op prijs.

Plattegronden

Sluiten

Recent bekeken