slide
DIVA Makelaars Landelijk werkzaam, lokaal gespecialiseerd!
DIVA staat voor ‘Ster’:
wij willen dan ook uitblinken in optimale service en kwaliteit
F - -2.jpg F - -12.jpg F - -14.jpg replace (32).png F - -5.jpg F - -10.jpg F - -14.jpg F - -12.jpg F - -13.jpg F - -15.jpg F - -17.jpg F - -16.jpg F - -18.jpg F - -19.jpg F - -20.jpg F - -21.jpg F - -22.jpg F - -23.jpg F - -24.jpg F - -25.jpg F - -26.jpg F - -27.jpg F - -7.jpg F - -8.jpg F - -1.jpg
Verkocht

Verkocht: De Hoenderkampen 24, 4174 HE Hellouw

€ 385.000,- k.k.
Type object Woonhuis, eengezinswoning, tussenwoning
Perceeloppervlakte 103 m²
Woonoppervlakte 103 m²
Aanvaarding In overleg
Status Verkocht

Notitie

Algemeen

Deze waanzinnige eengezinswoning is gelegen in een jonge woonomgeving en staat te popelen om jou te verwelkomen! Je beschikt over een magnifiek en dynamisch woongedeelte, dat bestaat uit een keuken en een woonkamer met deur naar de veranda. Boven bevinden zich maar liefst vier slaapkamers en een comfortabele badkamer. Ook aan bergruimte ontbreekt het je niet in dit huis. Buiten is het genieten... Meer informatie
  • Kenmerken

    Alle kenmerken
    Type object Woonhuis, eengezinswoning, tussenwoning
    Bouwperiode 2009
    Status Verkocht
  • Locatie

Kenmerken

Overdracht
Referentienummer 05969
Vraagprijs € 385.000,- k.k.
Inrichting Niet gestoffeerd
Inrichting Niet gemeubileerd
Status Verkocht
Aanvaarding In overleg
Laatste wijziging Dinsdag 30 september 2025
Bouw
Type object Woonhuis, eengezinswoning, tussenwoning
Soort bouw Bestaande bouw
Bouwperiode 2009
Dakbedekking Dakpannen
Type dak Zadeldak
Keurmerken Energie prestatie advies
Isolatievormen Dakisolatie, Dubbel glas, Muurisolatie, Spouwmuren, Vloerisolatie
Oppervlaktes en inhoud
Perceeloppervlakte 103 m²
Woonoppervlakte 103 m²
Inhoud 376 m³
Oppervlakte externe bergruimte 8 m²
Oppervlakte gebouwgebonden buitenruimte 15 m²
Indeling
Aantal bouwlagen 3
Aantal kamers 5 (waarvan 4 slaapkamers)
Aantal badkamers 1 (en 1 apart toilet)
Locatie
Ligging Aan rustige weg, Dichtbij openbaar vervoer, In woonwijk, Nabij school, Nabij snelweg
Tuin
Type Achtertuin
Hoofdtuin Ja
Oriëntering West
Heeft een achterom Ja
Staat Prachtig aangelegd
Energieverbruik
Energielabel A
CV ketel
CV ketel Atag a A244c
Warmtebron Gas
Bouwjaar 2009
Combiketel Ja
Eigendom Eigendom
Uitrusting
Warm water CV-ketel
Verwarmingssysteem Centrale verwarming, Vloerverwarming (gedeeltelijk)
Ventilatie methode Mechanische ventilatie
Keukenvoorzieningen Inbouwapparatuur
Badkamervoorzieningen Ligbad, Wastafelmeubel
Glasvezelaansluiting aanwezig Ja
Tuin aanwezig Ja
Heeft schuur/berging Ja
Heeft een dakraam Ja
Heeft ventilatie Ja
Kadastrale gegevens
Kadastrale aanduiding HAAFTEN H 1013
Perceeloppervlakte 103 m²
Omvang Geheel perceel
Eigendomsituatie Eigen grond

Beschrijving

Deze waanzinnige eengezinswoning is gelegen in een jonge woonomgeving en staat te popelen om jou te verwelkomen! Je beschikt over een magnifiek en dynamisch woongedeelte, dat bestaat uit een keuken en een woonkamer met deur naar de veranda. Boven bevinden zich maar liefst vier slaapkamers en een comfortabele badkamer. Ook aan bergruimte ontbreekt het je niet in dit huis. Buiten is het genieten in de onderhoudsvriendelijke achtertuin, compleet met veranda en praktische berging. Door de ligging op de westzijde kun je hier de hele middag en avond van de zon genieten. Door de gunstige ligging nabij snelwegen A2 en A15 is Hellouw de ideale uitvalsbasis voor jouw dagelijkse avonturen.

Indeling

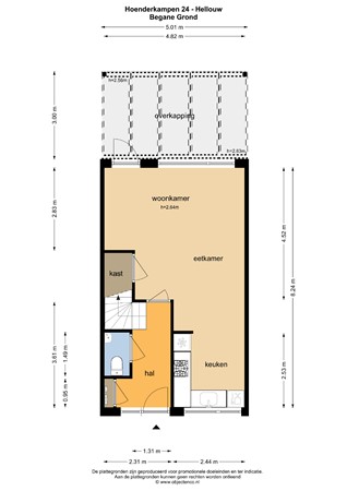
Betreed de woning via de overdekte entree en stap in de lichte ontvangsthal met zijn eigentijdse uitstraling. De vloerverwarming zorgt voor een aangenaam comfort. De pvc vloer is toegepast op de begane grond en eerste verdieping van het huis en heeft een tijdloze eikenlook. Op de wanden is vliesbehang aangebracht. In de hal vindt je de meterkast, de toiletruimte en de trapopgang naar de verdieping. De toiletruimte is uitgevoerd met een fontein en mechanische ventilatie.

Het is écht thuiskomen in de ruime woonkamer. Een sfeervol en licht leefvertrek, dat is is verdeeld in een zit- en een eetgedeelte. De royale raampartij en de openslaande deur zorgen voor een dynamische verbondenheid met de veranda en de achtertuin. De luxaflex en de kamerhoge gordijnen zijn inclusief. De plissé hordeur zorgt er bovendien voor dat je insectenvrij kunt ventileren. De trapkast is praktisch ingericht met wandschappen én een innovatieve scharnierende voorzetkast, waardoor je extra veel opbergruimte hebt.

De keuken staat in open verbinding met de woonkamer en is gelegen aan de voorzijde. De keukenopstelling is uitgevoerd met een spoelbak, "Quooker" kraan, gaskookplaat, afzuigschouw, heteluchtoven, koel-/vriescombinatie en een vaatwasmachine. De drie laatst genoemde apparaten zijn van het A-merk “Miele”. Sfeervol element is de koof met inbouwspots boven het kookgedeelte. De wandplanken zorgen ervoor dat je deze keuken kunt personaliseren met servies en leuke accessoires. De raampartij is uitgevoerd met luxaflex en zorgt voor prettig licht op je werkblad. Bovendien heb je een fijn uitzicht op het vriendelijke straatbeeld van de Hoenderkampen en kun je bezoekers zien naderen.

Eerste verdieping

Ontdek op de eerste verdieping de overloop, die uitnodigt tot verkenning. Aan deze overloop grenzen twee slaapvertrekken en een badkamer.

Treed binnen in de masterbedroom. Hier lagen voorheen twee slaapkamers, die zijn samengevoegd tot één weergaloos vertrek. De vaste schuifkastenwand heeft ruimte in overvloed om je garderobe op te bergen. Bovendien is er nog ruimte genoegd over om bijvoorbeeld een leuk zitje of een kantoorhoek te creëren.

De tweede slaapkamer is eveneens ruim van formaat en gelegen aan de voorzijde. De twee ramen bieden een leuk uitzicht op de straatzijde.

Ontspan en verfris jezelf in de comfortabele badkamer. Het massief eiken wastafelmeubel met bijpassende spiegel voegt een vleugje stijl toe aan je dagelijkse routine. Je kunt zowel baden als douchen in het ligbad. De radiator en de mechanische ventilatie maken de uitrusting van deze badkamer compleet.

Voor de slaapkamers en de badkamer geldt dat de luxaflex en de verduisterende rolgordijnen achterblijven.

Tweede verdieping

De vaste gestoffeerde trapopgang leidt naar de tweede verdieping, die in 2023 is getransformeerd naar een volwaardige slaapverdieping. Je vind er een voorzolder en de derde en vierde slaapkamer. Op de vloer ligt tapijt en de wanden zijn voorzien van vliesbehang en deels glad stucwerk.

Op de voorzolder vind je de wasruimte. Je wasmachine en droger kun je op werkhoogte plaatsen op het aanwezige plateau (met opbergruimte). Aan de andere zijde van de trapopgang vind je de CV-ketel en een inloop-bergkast.

De twee slaapkamers zijn vrijwel identiek aan elkaar. Beide kamers hebben een Velux-dakvenster met verduisteringsgordijn. De kamer aan de tuinzijde heeft als extra een rolhor.

Zowel de voorzolder als de twee slaapkamers beschikken over praktische bergruimten achter het knieschot.

Tuin

De moderne voortuin is in 2023 aangelegd en geeft het geheel een stijlvol aanzicht vanaf de straatzijde. De entree wordt overdekt door een luifel met verlichting. Er is openbare parkeergelegenheid voor de deur.

De heerlijke achtertuin heeft een ideale ligging op de westzijde. Zo kun je hier de hele middag en een groot deel van de avond van de zon genieten. De tuinaanleg bestaat uit sierbestrating en een vleugje kunstgras, wat maakt dat je hier kunt ontspannen en genieten zonder de stress van onderhoud. Graag benadrukken we ook de aanwezigheid van een aluminium veranda tegen de achtergevel. Je kunt je tuinset inclusief de kussens altijd buiten laten staan en hebt hier dus ten allen tijden een comfortabele overdekte zitplek. De berging achterin de tuin, met zijn zwart gebeitste potdekselwerk gevels, is voorzien van wandschappen, stopcontacten en verlichting. Zowel tegen de achtergevel van het huis als tegen de berging is een gevellamp aanwezig. Via de afsluitbare houten poort bereik je tenslotte via het verlichte burenpad de openbare weg.

Bijzonderheden

DE PLUSPUNTEN

-Gelegen in een jonge, geliefde woonomgeving
-Sfeervolle woonvertrekken
-Maar liefst vier slaapkamers
-Onderhoudsvriendelijke tuin op de zonnige westzijde
-Op loopafstand van de basisschool, speeltuin en sportvelden
-Hellouw is gunstig gelegen t.o.v. snelwegen A2 en A15

Plattegronden

Brochure(s) en overige bijlagen

Sluiten

Recent bekeken