slide
DIVA Makelaars Landelijk werkzaam, lokaal gespecialiseerd!
DIVA staat voor ‘Ster’:
wij willen dan ook uitblinken in optimale service en kwaliteit
Foto 1.jpg Foto 28.jpg Foto 3.jpg Foto 9.jpg Foto 14.jpg Foto 2.jpg Foto 4.jpg Foto 5.jpg Foto 6.jpg Foto 7.jpg Foto 8.jpg Foto 11.jpg Foto 9.jpg Foto 10.jpg Foto 23.jpg Foto 20.jpg Foto 15.jpg Foto 16.jpg Foto 22.jpg Foto 18.jpg Foto 19.jpg Foto 25.jpg Foto 24.jpg Foto 26.jpg Foto 27.jpg Foto 29.jpg Foto 30.jpg Foto 34.jpg Foto 32.jpg Foto 35.jpg Foto 37.jpg Foto 38.jpg
Nieuw in verkoop

Te koop: Ruimte voor het gezin — centrum op loopafstand, speeltuin om de hoek!

€ 450.000,- k.k.
Adres: Oranje Nassaulaan 53, 4141 CR Leerdam
Type object Woonhuis, eengezinswoning, tussenwoning
Perceeloppervlakte 135 m²
Woonoppervlakte 93 m²
Aanvaarding In overleg
Status Nieuw in verkoop

Notitie

Algemeen

Ruimte voor het gezin — centrum op loopafstand, speeltuin om de hoek!

Deze goed onderhouden tussenwoning aan de Oranje Nassaulaan biedt 93 m² woonoppervlakte, vier slaapkamers en een diepe achtertuin met overkapping die direct grenst aan een speeltuin. Een fijne gezinswoning in een centrale en kindvriendelijke omgeving, goed geïsoleerd, voorzien van 12 zonnepanelen en met energielabel A.
De... Meer informatie
  • Kenmerken

    Alle kenmerken
    Type object Woonhuis, eengezinswoning, tussenwoning
    Bouwperiode 1990
    Status Nieuw in verkoop
  • Locatie

Kenmerken

Overdracht
Referentienummer 07047
Vraagprijs € 450.000,- k.k.
Inrichting Niet gestoffeerd
Inrichting Niet gemeubileerd
Status Nieuw in verkoop
Aanvaarding In overleg
Bouw
Type object Woonhuis, eengezinswoning, tussenwoning
Soort bouw Bestaande bouw
Bouwperiode 1990
Dakbedekking Dakpannen
Type dak Zadeldak
Isolatievormen Dubbel glas, Volledig geïsoleerd
Oppervlaktes en inhoud
Perceeloppervlakte 135 m²
Woonoppervlakte 93 m²
Woonkameroppervlakte 25 m²
Keukenoppervlakte 7 m²
Inhoud 319 m³
Oppervlakte externe bergruimte 5 m²
Indeling
Aantal bouwlagen 3
Aantal kamers 5 (waarvan 4 slaapkamers)
Aantal badkamers 1 (en 1 apart toilet)
Tuin
Type Voortuin
Oriëntering Oosten
Staat Goed onderhouden
Tuin 2 - Type Achtertuin
Tuin 2 - Hoofdtuin Ja
Tuin 2 - Oriëntering West
Tuin 2 - Heeft een achterom Ja
Tuin 2 - Staat Goed onderhouden
Energieverbruik
Energielabel A
CV ketel
CV ketel Bosch
Warmtebron Gas
Bouwjaar 2011
Combiketel Ja
Eigendom Eigendom
Uitrusting
Warm water CV-ketel
Verwarmingssysteem Centrale verwarming, Pelletkachel
Keukenvoorzieningen Inbouwapparatuur
Badkamervoorzieningen Ligbad, Toilet, Wastafelmeubel
Heeft een rookkanaal Ja
Glasvezelaansluiting aanwezig Ja
Tuin aanwezig Ja
Heeft rolluiken Ja
Heeft schuur/berging Ja
Heeft een dakraam Ja
Heeft zonnepanelen Ja
Kadastrale gegevens
Kadastrale aanduiding Leerdam B 9618
Perceeloppervlakte 135 m²
Omvang Geheel perceel

Beschrijving

Ruimte voor het gezin — centrum op loopafstand, speeltuin om de hoek!

Deze goed onderhouden tussenwoning aan de Oranje Nassaulaan biedt 93 m² woonoppervlakte, vier slaapkamers en een diepe achtertuin met overkapping die direct grenst aan een speeltuin. Een fijne gezinswoning in een centrale en kindvriendelijke omgeving, goed geïsoleerd, voorzien van 12 zonnepanelen en met energielabel A.
De ligging spreekt voor zich. Het centrum van Leerdam met winkels, supermarkten, horeca en de weekmarkt is op loopafstand. Scholen en sportvoorzieningen zijn snel bereikbaar en het buitengebied rondom Leerdam vind je om de hoek. Voor een gezin met kinderen is dit een plek die op veel fronten klopt.

Wij adviseren je de brochure van deze woning te downloaden van onze website.
Hierin tref je uitgebreide informatie met extra foto's evenals plattegronden en kadastrale gegevens.

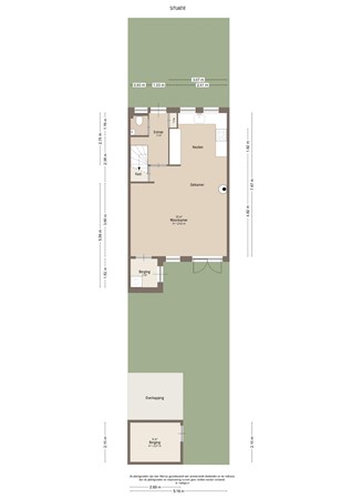
Indeling

Je stapt binnen via de entree, waar direct de toiletruimte aanwezig is. De hal heeft een slim nisje voor de garderobe. De keuken ligt aan de voorzijde en is praktisch ingedeeld, hier staat alles binnen handbereik. Daarnaast is hij compleet uitgevoerd. Er is een vaatwasser op hoogte, koelkast, inductiekookplaat, oven en een Quooker met kokend, gekoeld en bruisend water. Daarachter bevindt zich de ruime woon- en eetkamer van 25 m², waar de pelletkachel als middelpunt staat. Hij verwarmt de ruimte snel en is zuiniger in gebruik dan de cv alleen. De openslaande deuren aan de achterkant verbinden de woonkamer direct met het terras en de tuin. Een ideale ruimte is het ‘klompenhok’. Nu in gebruik als bergruimte en wasruimte. Deze achterom is perfect met kinderen en huisdieren, want hier schop je de laarzen uit.

Eerste verdieping

Op de eerste verdieping vind je drie slaapkamers en de badkamer. De grootste slaapkamer ligt aan de tuinzijde, rustig en goed van formaat. De tweede slaapkamer ligt aan de voorzijde en kijkt uit over de straat. De derde kamer is compact maar prima bruikbaar als kinderkamer of werkplek. Alle slaapkamers zijn voorzien van elektrisch bedienbare rolluiken. De badkamer is verzorgd uitgevoerd met een ligbad, wastafelmeubel en toilet.

Tweede verdieping

Via de vaste trap kom je op de overloop van de tweede verdieping, met aan weerszijden inpandige bergruimte onder de kap. De zolderkamer van 10 m² heeft een nokhoogte van 2,86 m en een dakraam die de ruimte prettig verlicht. Een stille en veelzijdige kamer, goed bruikbaar als logeer- of werkkamer of als eigen ruimte voor een tiener.

Tuin

De achtertuin is volledig verhard en daarmee makkelijk in onderhoud. Dat maakt de tuin echter niet minder prettig. De ruimte is goed van formaat en biedt genoeg plek om het buiten echt naar je zin te maken. Achter in de tuin staat een overkapping met een vaste zithoek: beschut, sfeervol en het hele jaar bruikbaar. De vrijstaande stenen berging is direct aansluitend gesitueerd en biedt ruimte voor fietsen, tuinspullen of opslag. Aan de achterzijde van de woning is ook een buitenkraan aanwezig. Stap je door de poort, dan ben je direct bij de speeltuin. Een dagelijkse bonus voor gezinnen met jonge kinderen.

Bijzonderheden

Voor technische kenmerken en bijzonderheden verwijzen wij je naar de brochure.

Leerdam is gelegen in de gemeente Vijfheerenlanden en staat bekend om de glasindustrie en kaasmakerij. Leerdam heeft ongeveer 20.000 inwoners en is gelegen langs de mooie rivier De Linge en omgeven door stadswallen. Leerdam heeft een rijke historie, die is terug te vinden in de Grote Kerk, het Hofje van mevrouw van Aerden en het Oude Raadhuis.
Alle voorzieningen om wonen in Leerdam aantrekkelijk te maken zijn aanwezig. Zo zijn er meerdere basisscholen, middelbare scholen, diverse winkels en supermarkten, cultuurverenigingen en sportverenigingen.
Het oude centrum van Leerdam is kenmerkend gelegen aan de haven, met de authentieke stadswallen met 'Muizentorentjes' nog volop in het zicht. Het centrum is levendig en iedere donderdag is er een grote versmarkt. In het centrum bevinden zich diverse winkels en galeries. De horeca in Leerdam is ook veelzijdig. Er zijn meerdere restaurants, voor de snelle hap en een lang diner kunt u hier goed terecht.

Interesse gewekt? Schakel meteen je eigen aankoopmakelaar in.
Jouw aankoopmakelaar komt op voor jouw belang en bespaart je tijd, geld en zorgen.

Plattegronden

Brochure(s) en overige bijlagen

Sluiten

Recent bekeken