slide
DIVA Makelaars Landelijk werkzaam, lokaal gespecialiseerd!
DIVA staat voor ‘Ster’:
wij willen dan ook uitblinken in optimale service en kwaliteit
Verkocht

Verkocht: Herendijk 178, 7833 JK Nieuw-Amsterdam

€ 525.000,- k.k.
Type object Woonhuis, eengezinswoning, vrijstaande woning
Perceeloppervlakte 975 m²
Woonoppervlakte 150 m²
Aanvaarding In overleg
Status Verkocht

Notitie

Algemeen

Herendijk 178 Nieuw-Amsterdam
Verrassend wonen nabij vaarwater en openbaar vervoer

Aan de lommerrijke Herendijk vind je deze vrijstaande woning met baden en slapen op de begane grond en een aangebouwde serre als verlengde leefruimte. De vrijstaande stenen garage is extra breed en voorzien van zowel een kanteldeur als een loopdeur naar de tuin.

De woning, gebouwd in 1988, is over de breed... Meer informatie
  • Kenmerken

    Alle kenmerken
    Type object Woonhuis, eengezinswoning, vrijstaande woning
    Bouwjaar 1988
    Status Verkocht
  • Locatie

Kenmerken

Overdracht
Referentienummer 63098/9440368
Vraagprijs € 525.000,- k.k.
Status Verkocht
Aanvaarding In overleg
Laatste wijziging Maandag 27 oktober 2025
Bouw
Type object Woonhuis, eengezinswoning, vrijstaande woning
Soort bouw Bestaande bouw
Bouwjaar 1988
Type dak Samengesteld
Isolatievormen Dakisolatie, Dubbel glas, Muurisolatie
Oppervlaktes en inhoud
Perceeloppervlakte 975 m²
Woonoppervlakte 150 m²
Inhoud 563 m³
Oppervlakte gebouwgebonden buitenruimte 27 m²
Indeling
Aantal bouwlagen 3
Aantal kamers 5 (waarvan 3 slaapkamers)
Locatie
Ligging Aan rustige weg, In centrum
Tuin
Type Tuin rondom
Hoofdtuin Ja
Heeft een achterom Ja
Staat Normaal
Energieverbruik
Energielabel C
Uitrusting
Warm water CV-ketel
Badkamervoorzieningen Badkamer 1 Douche
Badkamervoorzieningen Badkamer 2 Douche, Wastafel
Parkeergelegenheid Vrijstaande stenen garage
Tuin aanwezig Ja
Heeft een garage Ja
Heeft schuur/berging Ja
Heeft ventilatie Ja

Beschrijving

Herendijk 178 Nieuw-Amsterdam
Verrassend wonen nabij vaarwater en openbaar vervoer

Aan de lommerrijke Herendijk vind je deze vrijstaande woning met baden en slapen op de begane grond en een aangebouwde serre als verlengde leefruimte. De vrijstaande stenen garage is extra breed en voorzien van zowel een kanteldeur als een loopdeur naar de tuin.

De woning, gebouwd in 1988, is over de breedte van het perceel geplaatst en heeft aan twee zijden een oprit om meerdere auto’s op eigen terrein te parkeren wat erg praktisch kan zijn.

Vanaf 2021 is de woning volledig gemoderniseerd, is de tuin opnieuw aangelegd, is er een serre aangebouwd en is de woning extern geschilderd.

Je kunt nu genieten van comfortabele vloerverwarming op de begane grond en van extra leefruimte in de aangebouwde serre, voorzien van elektrisch bedienbare zonwering. Op het dak liggen 14 zonnepanelen waardoor je de woning prima elektrisch kunt verwarmen.

De schutting tussen de garage en de woning zorgt ervoor dat je kunt genieten in een beschutte, op het zuidoosten gelegen achtertuin. Er is rondom camerabeveiliging aanwezig.

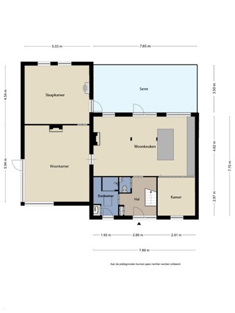
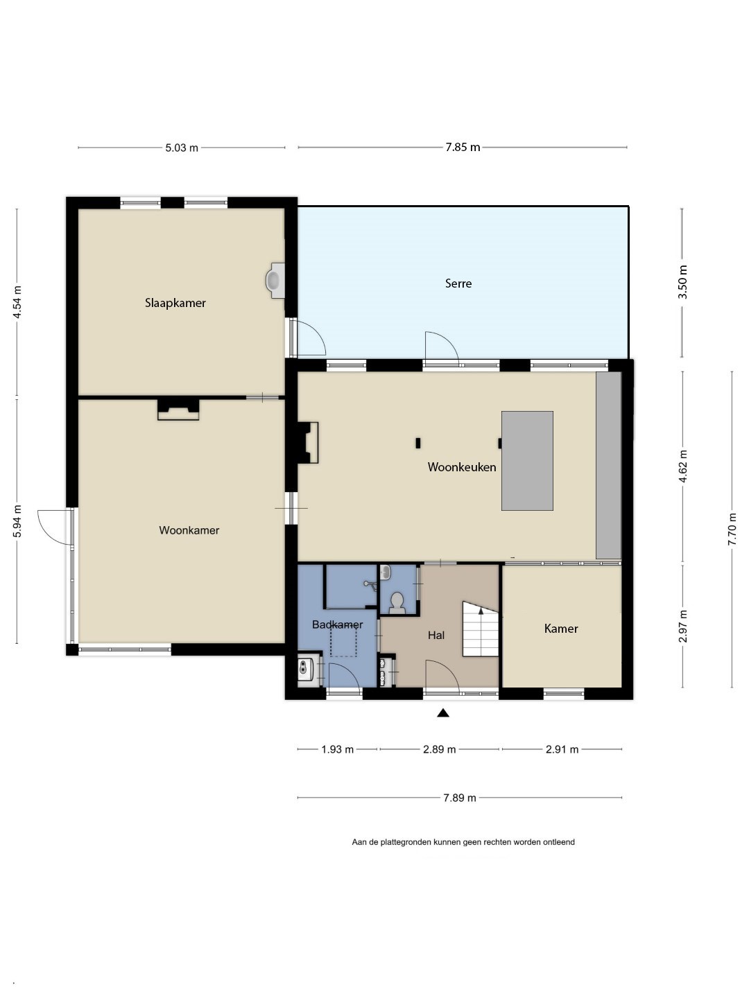
De indeling van de woning is als volgt.

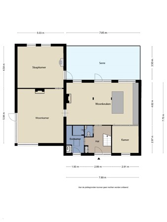
Begane grond
Via de voordeur stap je de entree binnen met de trapopgang, een apart toilet met fonteintje en de bijkeuken met de witgoedaansluiting, een cv-kast en een deur naar de straatzijde. Deze ruimte is nu ook in gebruik als badkamer en voorzien van een douchehoek en wastafel.

Vanuit de hal stap je de royale leefkeuken in met een doorloop naar de serre en de tuin. Hier is volop ruimte om te koken en te genieten met elkaar.

De keuken met kookeiland is compleet en voorzien van een inbouw inductiekookplaat met ingebouwde afzuigkap, een diepe wasbak met een kokendwaterkraan, een combimagnetron, een koelkast en een vriezer. We verwachten dat je hier graag verblijft.

Aan de straatzijde is een extra kamer met zicht de straat in. De ruimte is als kantoorruimte ingericht. Door de afsluitbare schuifdeur kun je hier ongestoord werken.

De begane grond is voorzien van een visgraatvloer met grotendeels vloerverwarming. Als je geen gas wilt verbruiken, kun je met de opbrengst van de 14 zonnepanelen de woning sneller verwarmen met de elektrische panelen. Je gebruikt dan alleen gas om te douchen.

De aangebouwde aluminium serre is een verlengde van je leefruimte. Je kunt kiezen of je plaatsneemt aan de grote eettafel bij de leefkeuken of in de serre die volledig afsluitbaar is met glazen schuifdeuren. De vertrekken zijn met een deur met elkaar verbonden.

Vanuit de serre stap je zo de tuin in. Het glazen dak zorgt ervoor dat je snel hier gaat zitten. En bij warmere dagen zorgt de elektrische zonwering voor schaduw in de serre, heerlijk.

Naast de leefkeuken bereik je de woonkamer. Deze kamer is royaal en voorzien van raampartijen tot aan de grond waardoor je ver de straat in kunt kijken. Je ervaart dit als een lichte kamer met verbinding naar de rest van de woning.
Vanuit de woonkamer bereik je de slaapkamer met een wastafelmeubel. Hier is voldoende ruimte voor een lits-jumeaux bed en een kastenwand.

Doordat deze kamer een eigen buitendeur heeft, kan de ruimte ook geschikt zijn als je op zoek bent naar een werkruimte en je graag privé gescheiden wilt houden van je werk.

De tuin is voorzien van gras, bestrating, diverse beplanting en houten betonschuttingen met de buren wat zorgt voor veel privacy. De garage en de berging is vanuit de tuin te bereiken.

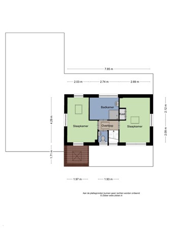
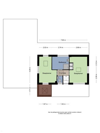
Eerste verdieping
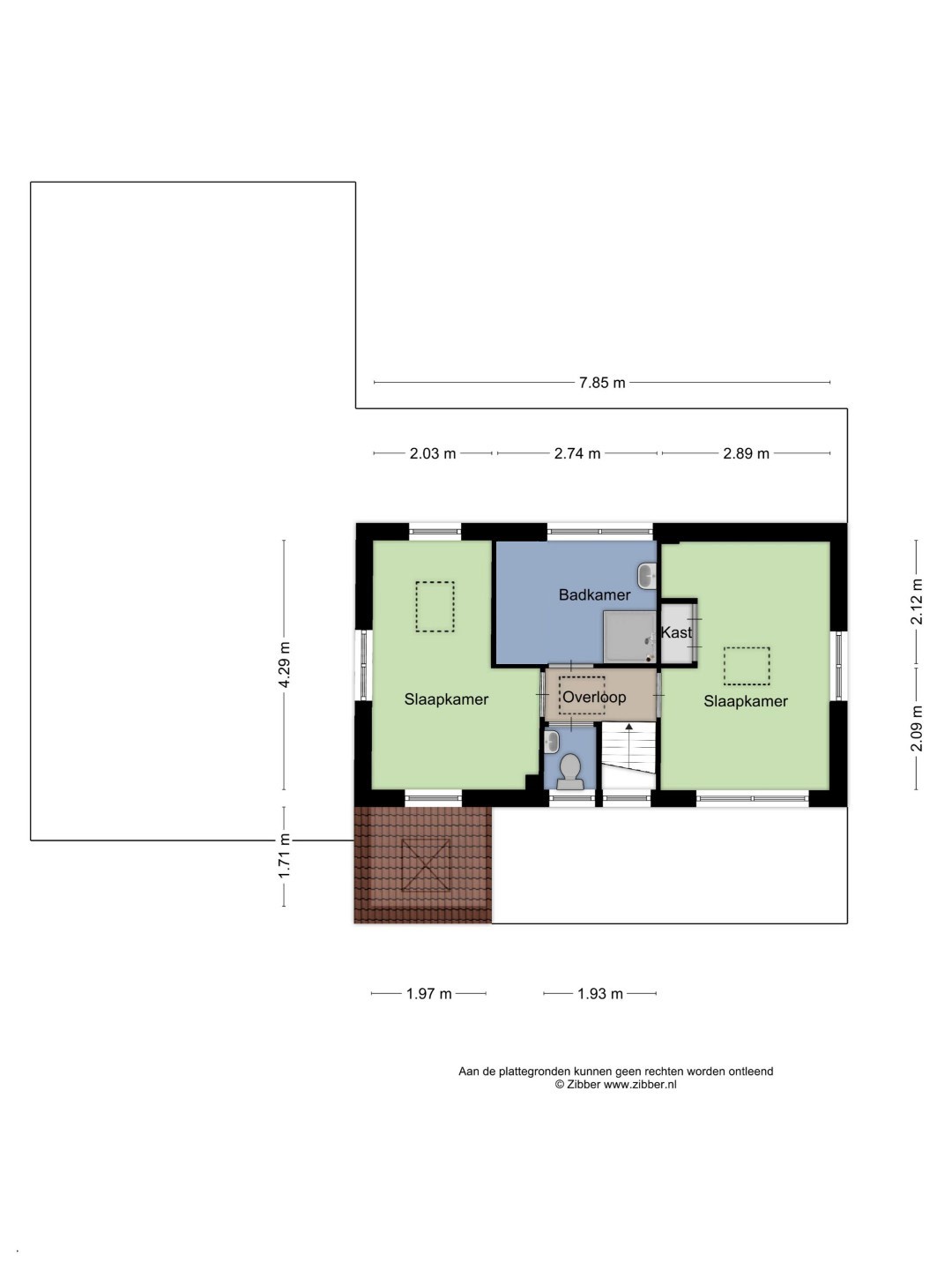
Vanuit de hal bereik je met de vaste trap de eerste verdieping. Hier zijn twee ruime slaapkamers te bereiken, een apart toilet met een fonteintje en de tweede gemoderniseerde badkamer met een douchehoek en een wastafelmeubel.

Bergruimte
Beneden bij de douche is een kleine bergruimte waar de omvormer van de zonnepanelen uit het zicht is geplaatst. Boven in de slaapkamer zit een luik met extra bergruimte.

Extern
In de tuin vind je naast de stenen garage een vrijstaande blokhut. Zo kun je de garage in gebruik nemen voor je auto en niet voor je tuingereedschap. In de blokhut is daarnaast nog voldoende ruimte voor je fietsen en de tuinkussens. In de overkapping is plek voor hout.

Bijzonderheden:
- Deze verrassende woning uit 1988 is in 2021 gemoderniseerd
- Gelegen op een royale kavel van 975 m² eigen grond
- Voorzien van grotendeels vloerverwarming, zonnepanelen en een serre
- In 2022 zijn de houten kozijnen extern geschilderd
- Naast de woning is een extra brede stenen garage gebouwd met een deur naar de tuin
- Achter de garage is een schuur geplaatst voor onder andere tuingereedschap en de fietsen

Algemeen:
- De woning kent een beschutte ligging aan de rand van de bebouwde kom van het dorp Nieuw-Amsterdam dat een uitstekend voorzieningenniveau kent.
- De ligging in Nieuw-Amsterdam (gemeente Emmen) is, door de ligging nabij A37 zeer centraal gelegen ten opzichte van Emmen, Coevorden, Hoogeveen en Duitsland.
- Door de aanwezigheid van een station is de bereikbaarheid per openbaar vervoer goed.
- Nieuw-Amsterdam kent naast een vernieuwd dorpscentrum met promenade uitstekende aanmeermogelijkheden voor de recreatievaart. Positief te noemen is dat je hier nog gratis kunt parkeren.
- Ook Emmen is op korte reisafstand bereikbaar met winkel- en horecagelegenheden, dierenpark Wildlands, het Atlas theater, Utopolis bioscoop en Treant ziekenhuis. Ook kun je hier terecht voor het voortgezet en hoger onderwijs in veel studierichtingen.
- In de omgeving heb je diverse fiets- en wandelroutes en bossen.

Meer informatie over deze woning en de (leef)omgeving kun je vinden op herendijk178.nl.
Oplevering in overleg.a

Spreekt deze woning je aan? Aarzel dan niet om een afspraak voor een bezichtiging te maken om deze verrassende woning en de omgeving te bezichtigen.

Proclaimer
Zwanenburg Makelaardij is verantwoordelijk voor de inhoud van deze informatie en doet er alles aan deze actueel en juist te houden. Je kunt ervan uitgaan dat de teksten, kenmerken en maatvoeringen met de grootste zorgvuldigheid zijn opgesteld en berekend. Kom je desondanks toch iets tegen dat niet correct of verouderd is, dan stellen wij je reactie bijzonder op prijs.

Plattegronden

Sluiten

Recent bekeken