slide
DIVA Makelaars Landelijk werkzaam, lokaal gespecialiseerd!
DIVA staat voor ‘Ster’:
wij willen dan ook uitblinken in optimale service en kwaliteit
FH (1).jpg FH (11).jpg FH (13).jpg FH (28).jpg FH (18).jpg FH (22).jpg Foto met quote presentatie woning.jpg FH (7).jpg FH (10).jpg FH (12).jpg FH (14).jpg FH (9).jpg FH (16).jpg FH (17).jpg FH (15).jpg FH (19).jpg FH (20).jpg FH (21).jpg FH (23).jpg FH (25).jpg FH (31).jpg FH (26).jpg FH (27).jpg FH (33).jpg FH (34).jpg FH (28).jpg FH (29).jpg FH (39).jpg FH (37).jpg FH (38).jpg FH (2).jpg FH (5).jpg FH (43).jpg
Verkocht onder voorbehoud

Verkocht onder voorbehoud: Naardermeer 193, 3068 KH Rotterdam

€ 350.000,- k.k.
Type object Woonhuis, eengezinswoning, tussenwoning
Perceeloppervlakte 125 m²
Woonoppervlakte 119 m²
Aanvaarding In overleg
Status Verkocht onder voorbehoud

Notitie

Algemeen

Wat een ruimte, wat een mogelijkheden! Deze uitgebouwde eengezinswoning is dé ideale kans voor iedereen die graag een huis helemaal naar eigen smaak wil maken.

YESS! DIT WIL JE NIET MISSEN – DE HIGHLIGHTS OP EEN RIJ:
1.Ideale kluswoning – maak er helemaal jouw eigen paleisje van;
2. Royale uitbouw aan de achterzijde – extra veel leefruimte!;
3. Badkamer met inloopdouche, toilet, wastafelm... Meer informatie
  • Kenmerken

    Alle kenmerken
    Type object Woonhuis, eengezinswoning, tussenwoning
    Bouwperiode 1985
    Status Verkocht onder voorbehoud
  • Locatie

Kenmerken

Overdracht
Referentienummer 00442
Vraagprijs € 350.000,- k.k.
Status Verkocht onder voorbehoud
Aanvaarding In overleg
Laatste wijziging Donderdag 1 januari 2026
Bouw
Type object Woonhuis, eengezinswoning, tussenwoning
Soort bouw Bestaande bouw
Bouwperiode 1985
Dakbedekking Dakpannen
Type dak Zadeldak
Isolatievormen Grotendeels dubbel glas
Oppervlaktes en inhoud
Perceeloppervlakte 125 m²
Woonoppervlakte 119 m²
Inhoud 409 m³
Oppervlakte externe bergruimte 8 m²
Indeling
Aantal bouwlagen 3
Aantal kamers 5 (waarvan 4 slaapkamers)
Aantal badkamers 1 (en 1 apart toilet)
Locatie
Ligging Aan rustige weg, Dichtbij openbaar vervoer, In woonwijk, Nabij school
Tuin
Type Achtertuin
Hoofdtuin Ja
Oriëntering Noord west
Heeft een achterom Ja
Staat Normaal
Tuin 2 - Type Voortuin
Tuin 2 - Oriëntering Zuidoost
Tuin 2 - Staat Normaal
Energieverbruik
Energielabel A
Uitrusting
Warm water Stadsverwarming
Verwarmingssysteem Stadsverwarming
Ventilatie methode Mechanische ventilatie
Keukenvoorzieningen Inbouwapparatuur
Badkamervoorzieningen Inloopdouche, Toilet, Wastafelmeubel
Tuin aanwezig Ja
Beschikt over een internetverbinding Ja
Heeft schuur/berging Ja
Heeft een dakraam Ja
Heeft een schuifpui Ja
Heeft ventilatie Ja
Kadastrale gegevens
Kadastrale aanduiding Rotterdam BA 1932
Perceeloppervlakte 125 m²
Omvang Deel perceel
Eigendomsituatie Erfpacht
Lasten Tijdelijk, met afkoopoptie, afgekocht tot 11-08-2034

Beschrijving

Wat een ruimte, wat een mogelijkheden! Deze uitgebouwde eengezinswoning is dé ideale kans voor iedereen die graag een huis helemaal naar eigen smaak wil maken.

YESS! DIT WIL JE NIET MISSEN – DE HIGHLIGHTS OP EEN RIJ:
1.Ideale kluswoning – maak er helemaal jouw eigen paleisje van;
2. Royale uitbouw aan de achterzijde – extra veel leefruimte!;
3. Badkamer met inloopdouche, toilet, wastafelmeubel en spiegel;
4. Keuken met opstelling aan twee zijden én diverse inbouwapparatuur;
5. Drie slaapkamers op de eerste verdieping;
6. Grote zolderslaapkamer dankzij de dakkapel;
7. Tuin op het noordwesten – genieten van de middag- en avondzon;
8. Toilet praktisch geplaatst in de uitbouw;
9. Stadsverwarming voor efficiënt en duurzaam verwarmen;
10. Erfpacht afgekocht t/m 12-08-2034 (einddatum 30-09-2083)
Krijg je ook dat YESS-gevoel bij het lezen van deze punten? Dan nodigen wij je heel graag uit voor een bezichtiging van deze leuke woning!

DE LIGGING:
Je woont hier in het geliefde Zevenkamp, een groene, rustige en bijzonder fijne wijk aan de oostkant van Rotterdam. Dit is zo’n plek waar je écht het beste van twee werelden ervaart: de ontspannen sfeer van een woonwijk én alle voorzieningen die je dagelijks nodig hebt binnen handbereik.
Op loop- en fietsafstand vind je diverse supermarkten, scholen, speeltuinen en sportclubs. Het bruisende winkelcentrum Hesseplaats ligt om de hoek voor je dagelijkse boodschappen, verswinkels en gezellige eetgelegenheden. Zin in wat meer winkelbeleving? Dan rijd of fiets je zo naar Shopping Center Alexandrium, waar je werkelijk alles vindt wat je zoekt. Natuurliefhebber? Dan zit je hier helemaal goed! Je wandelt zo naar recreatiegebied Zevenhuizerplas en het populaire Nesselande-strand, waar je in de zomer geniet van zon, water, strandtenten en gezelligheid. Ook het groene Prinses Irenepad en het nabijgelegen Rottemerengebied bieden volop mogelijkheden om te wandelen, fietsen, hardlopen of gewoon even te ontsnappen aan de drukte.

Bereikbaarheid is eveneens top. Met metrohalte Zevenkamp om de hoek reis je binnen no time naar Rotterdam Centrum, terwijl meerdere busverbindingen en uitvalswegen zoals de A20 en A16 ervoor zorgen dat je makkelijk de stad uit reist. Parkeren doe je hier bovendien gewoon in de wijk.

DE INDELING:

Begane grond
Via de gezellige voortuin gelegen op het zonnige zuidoosten stap je zo je nieuwe huis binnen. De tuin is netjes bestraat en biedt genoeg ruimte om lekker buiten te zitten.

Binnenkomend via de entree kom je in een ruime hal met plek voor jassen en schoenen. De woonkamer ligt aan de voorkant van de woning en voelt heerlijk licht en ruim aan. De praktische indeling maakt het eenvoudig om hier een fijn zit- en eetgedeelte te creëren.
In het midden van het huis bevindt zich de open keuken in een dubbele wandopstelling. Deze is voorzien van: een inductiekookplaat, koelkast, vriezer en voldoende kastruimte.

Via de aanbouw waar zich ook de toiletruimte met staand toilet en fonteintje bevindt loop je zo de achtertuin in. Deze verzorgde tuin ligt op het noordwesten, wat betekent dat je hier volop kunt genieten van de middag- en avondzon! Achterin de tuin staat een vrijstaande stenen berging voor tuingereedschap, fietsen of extra opslag. Ook is er een achterom naar het achterpad. Superhandig!

Eerste verdieping
Vanaf de overloop heb je toegang tot alle ruimtes én de trap naar de tweede verdieping. Op deze etage bevinden zich drie slaapkamers: twee aan de voorkant van het huis en één aan de achterkant.
De badkamer is volledig betegeld in een neutrale stijl en voorzien van een inloopdouche, wastafelmeubel met spiegel, tweede toilet en een handdoekradiator praktisch én comfortabel.

Tweede verdieping / zolder
Op de zolderverdieping vind je nog een royale slaapkamer met dakkapel – lekker veel licht en ruimte dus! Dankzij de praktische indeling en het extra vloeroppervlak is dit een ideale plek voor een masterbedroom, werkruimte of hobbykamer.

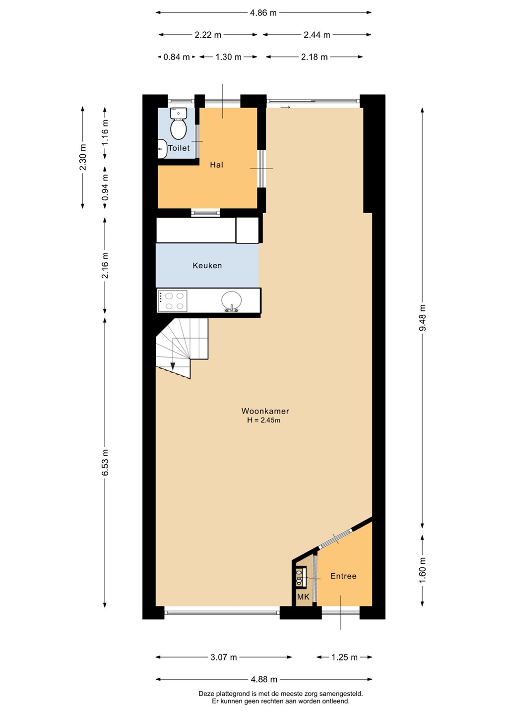
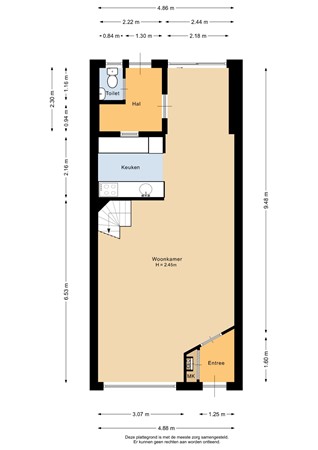
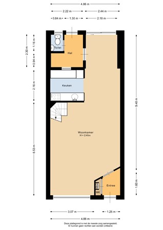
DE AFMETINGEN:
Voor de afmetingen en indeling, zie de plattegrond.

DE BIJZONDERHEDEN:
• Woonoppervlakte van ca. 119 m²;
• Bouwjaar 1985;
• Energielabel A;
• Uitgebouwde woonkamer
• Dakkapel op zolder
• Zowel een ruime voortuin als achtertuin
• Stadsverwarming
• Project notaris van toepassing;
• Oplevering: in overleg, voorkeur voor een snelle oplevering

De Meetinstructie is gebaseerd op de NEN2580. De Meetinstructie is bedoeld om een meer eenduidige manier van meten toe te passen voor het geven van een indicatie van de gebruiksoppervlakte. De Meetinstructie sluit verschillen in meetuitkomsten niet volledig uit, door bijvoorbeeld interpretatieverschillen, afrondingen of beperkingen bij het uitvoeren van de meting.

Alle verstrekte informatie moet beschouwd worden als een uitnodiging tot het doen van een bod of om in onderhandeling te treden. Er kunnen geen rechten worden ontleend aan deze woninginformatie.

Plattegronden

Sluiten

Recent bekeken