slide
DIVA Makelaars Landelijk werkzaam, lokaal gespecialiseerd!
DIVA staat voor ‘Ster’:
wij willen dan ook uitblinken in optimale service en kwaliteit
Verkocht

Verkocht: Slenerweg 83-22, 7848 AG Schoonoord

€ 95.000,- k.k.
Type object Woonhuis, bungalow, vrijstaande woning
Recreatie object
Perceeloppervlakte 438 m²
Woonoppervlakte 42 m²
Aanvaarding In overleg
Status Verkocht

Notitie

Algemeen

Bungalow ‘’Janke’’ op park Wico
Rust, ruimte en natuur in hartje Drenthe

Aan de rand van het gezellige dorp Schoonoord, midden in het bosrijke Sleenerzand, ligt bungalow ‘’Janke’’. Een heerlijke plek om te onthaasten, omringd door bossen, heide en stuifzand. Je kunt hier eindeloos wandelen, fietsen of mountainbiken. En op warme dagen is het goed toeven bij zwemplas de Kibbelkoele of het ope... Meer informatie
  • Kenmerken

    Alle kenmerken
    Type object Woonhuis, bungalow, vrijstaande woning
    Bouwjaar 1968
    Status Verkocht
  • Locatie

Kenmerken

Overdracht
Referentienummer 63098/9359302
Vraagprijs € 95.000,- k.k.
Status Verkocht
Aanvaarding In overleg
Laatste wijziging Donderdag 2 oktober 2025
Bouw
Type object Woonhuis, bungalow, vrijstaande woning
Soort bouw Bestaande bouw
Bouwjaar 1968
Type dak Platdak
Isolatievormen Dakisolatie
Oppervlaktes en inhoud
Perceeloppervlakte 438 m²
Woonoppervlakte 42 m²
Inhoud 148 m³
Oppervlakte gebouwgebonden buitenruimte 13 m²
Tuinoppervlakte 498 m²
Indeling
Aantal bouwlagen 1
Aantal kamers 3 (waarvan 2 slaapkamers)
Locatie
Ligging Aan bosrand, Beschutte ligging, In bosrijke omgeving
Tuin
Type Tuin rondom
Hoofdtuin Ja
Heeft een achterom Ja
Staat Normaal
Uitrusting
Warm water CV-ketel
Badkamervoorzieningen Douche, Toilet, Wastafel
Heeft kabel-tv Ja
Tuin aanwezig Ja
Heeft schuur/berging Ja

Beschrijving

Bungalow ‘’Janke’’ op park Wico
Rust, ruimte en natuur in hartje Drenthe

Aan de rand van het gezellige dorp Schoonoord, midden in het bosrijke Sleenerzand, ligt bungalow ‘’Janke’’. Een heerlijke plek om te onthaasten, omringd door bossen, heide en stuifzand. Je kunt hier eindeloos wandelen, fietsen of mountainbiken. En op warme dagen is het goed toeven bij zwemplas de Kibbelkoele of het openluchtzwembad Bosbad in Noord-Sleen.
Het bungalowpark is kleinschalig en rustig, met 68 vrijstaande huisjes op ruime kavels tussen het groen. De kavels vallen onder particuliere erfpacht.
Ook de omgeving is typisch Drents: uitgestrekte velden, karakteristieke dorpjes en vriendelijke mensen. In Schoonoord vind je alles wat je nodig hebt van supermarkt, een bakker tot een paar fijne eetgelegenheden.
Over de bungalow
Bungalow Janke is een gezellige, vrijstaande 4-persoons recreatiebungalow op een ruim perceel van 438 m2. De bungalow ligt beschut tussen de bomen, wat zorgt voor volop privacy en een heerlijk bosgevoel. Of je nu zelf van deze plek wilt genieten of (gedeeltelijk) wilt verhuren, het is allebei mogelijk.

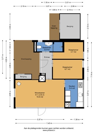
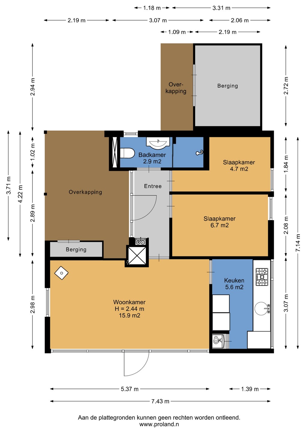
Indeling
Via de overkapping bij de voordeur kom je binnen in de hal, die toegang biedt tot de slaapkamers, de badkamer met toilet en de woonkamer.

De badkamer is in 2021 vernieuwd en voorzien van een douchehoek, een wastafel en een toilet. Daarnaast beschikt de badkamer over comfortabele elektrische vloerverwarming.

De woonkamer is licht en biedt een mooi uitzicht op de tuin. Vanuit de woonkamer stap je via de terrasdeur zo het terras op.

De keuken is praktisch ingericht en uitgerust met een spoelbak, een 5-pits gasstel, een combi-oven/magnetron en een koelkast.

In de tuin zijn meerdere gezellige zithoekjes aangelegd, zodat je op elk moment van de dag kunt genieten van het buitenleven, de rust en het groen om je heen.
Voor fietsen en tuingereedschap is er een aangebouwde houten schuur aanwezig.

Bijzonderheden:
• Perceel van 438m²
• Jaarlijkse erfpacht € 876,- (2025)
• Erfpacht loopt tot 1 oktober 2027
• Houten kozijnen met grotendeels dubbel glas (2017)
• Direct gelegen aan het bos

Bungalow Janke is een fijne, rustige plek in de natuur waar je elk seizoen kunt genieten van alles wat Drenthe te bieden heeft. Kom gerust kijken en ervaar het zelf!

Een hypotheek afsluiten op deze bungalow is niet mogelijk en je dient rekening te houden met 10,4% overdrachtsbelasting.

Meer informatie over de bungalow en de omgeving kun je vinden op slenerweg83-22.nl.

Oplevering in overleg.

Proclaimer
Zwanenburg Makelaardij is verantwoordelijk voor de inhoud van deze informatie en doet er alles aan deze actueel en juist te houden. Je kunt ervan uitgaan dat de teksten, kenmerken en maatvoeringen met de grootste zorgvuldigheid zijn opgesteld en berekend. Kom je desondanks toch iets tegen dat niet correct of verouderd is, dan stellen wij je reactie bijzonder op prijs.

Plattegronden

Brochure(s) en overige bijlagen

Sluiten

Recent bekeken