slide
DIVA Makelaars Landelijk werkzaam, lokaal gespecialiseerd!
DIVA staat voor ‘Ster’:
wij willen dan ook uitblinken in optimale service en kwaliteit
0-32.jpg 0-29.jpg 0-30.jpg 0-31.jpg 0-34.jpg 0-27.jpg 0-26.jpg 0-19.jpg collage 2.jpg 0-10.jpg 0-9.jpg 0-11.jpg 0-12.jpg 0-15.jpg 0-14.jpg 0-7.jpg 0-6.jpg 0-13.jpg 0-8.jpg 0-16.jpg 0-18.jpg 0-17.jpg 0-5.jpg collage.jpg 0-22.jpg 0-1.jpg 0-2.jpg 0-3.jpg 0-4.jpg collage 3.jpg 0-28.jpg
Nieuw in verkoop

Te koop: Veemarktplein 9, 8601 DA Sneek

€ 298.000,- k.k.
Type object Woonhuis, eengezinswoning, eind woning
Perceeloppervlakte 90 m²
Woonoppervlakte 81 m²
Aanvaarding In overleg
Status Nieuw in verkoop

Notitie

Algemeen

Op zoek naar een mooie eengezinswoning in het centrum van Sneek en op loopafstand van alle voorzieningen? Kom dan kijken bij deze in 2021 gerealiseerde woning. Deze nette en moderne woning is op een mooie locatie gelegen en alles op één niveau waardoor het voor meerdere doelgroepen geschikt is. De woning is modern ingericht met lichte woonkamer, complete keuken en moderne badkamer. Voor de deur... Meer informatie
  • Kenmerken

    Alle kenmerken
    Type object Woonhuis, eengezinswoning, eind woning
    Bouwperiode 2021
    Status Nieuw in verkoop
  • Locatie

Kenmerken

Overdracht
Referentienummer 00274
Vraagprijs € 298.000,- k.k.
Inrichting Niet gestoffeerd
Inrichting Niet gemeubileerd
Status Nieuw in verkoop
Aanvaarding In overleg
Laatste wijziging Donderdag 12 maart 2026
Bouw
Type object Woonhuis, eengezinswoning, eind woning
Soort bouw Bestaande bouw
Toegankelijkheid Senioren
Bouwperiode 2021
Dakbedekking Bitumen
Type dak Platdak
Isolatievormen Dakisolatie, HR-glas, Muurisolatie
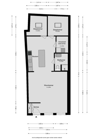
Oppervlaktes en inhoud
Perceeloppervlakte 90 m²
Woonoppervlakte 81 m²
Inhoud 342 m³
Indeling
Aantal bouwlagen 1
Aantal kamers 3 (waarvan 2 slaapkamers)
Aantal badkamers 1
Locatie
Ligging Dichtbij openbaar vervoer, In centrum, Nabij school
Energieverbruik
Energielabel A
CV ketel
CV ketel Nefit
Warmtebron Gas
Bouwjaar 2021
Combiketel Ja
Eigendom Eigendom
Uitrusting
Warm water CV-ketel
Verwarmingssysteem Centrale verwarming, Warmterecuperatiesysteem
Kadastrale gegevens
Kadastrale aanduiding Sneek A 6595
Perceeloppervlakte 90 m²
Omvang Geheel perceel
Eigendomsituatie Eigen grond

Beschrijving

Op zoek naar een mooie eengezinswoning in het centrum van Sneek en op loopafstand van alle voorzieningen? Kom dan kijken bij deze in 2021 gerealiseerde woning. Deze nette en moderne woning is op een mooie locatie gelegen en alles op één niveau waardoor het voor meerdere doelgroepen geschikt is. De woning is modern ingericht met lichte woonkamer, complete keuken en moderne badkamer. Voor de deur is er veel parkeergelegenheid.
Indeling:
Entree, hal met meterkast, garderobe en cv-ruimte, woonkamer, open keuken met inductie kookplaat, afzuigkap, koelkast, vrieskast, vaatwasser en oven, witgoedruimte met inloopkast, badkamer met inloopdouche, wastafel met meubel, toilet, sierradiator, twee slaapkamers.

Neem snel contact met ons op voor een bezichtiging van deze unieke woning.

Bijzonderheden

Aan de voorzijde wordt een stuk grond gehuurd van de gemeente voor € 70,00 per jaar.

Er is een WTW unit aanwezig.

Plattegronden

Sluiten

Recent bekeken