slide
Outstanding Agents. Outstanding Results. DIVA staat voor ‘Ster’: wij willen dan ook uitblinken in optimale service en kwaliteit

For rent: Markt 7, 4141 BG Leerdam

€3,000 /mo
Type of residence House, mansion, terraced house
Plot size 132 m²
Liveable area 232 m²
Acceptance By 01 February 2026

Note

General

Uniek woon-werkpand in het hart van Leerdam – beschikbaar per 1 februari

Midden in het centrum van Leerdam komt dit compleet gerenoveerde woon-winkelpand beschikbaar voor verhuur. Een karakteristiek rijksmonument met een opvallende gevel en een eigentijdse afwerking binnen. Ideaal voor ondernemers die wonen en werken willen combineren op een levendige en goed bereikbare locatie.
  • Features

    All characteristics
    Type of residence House, mansion, terraced house
    Construction period 1915
  • Location

Features

Offer
Reference number 07020
Asking price €3,000 per month (incl. service costs)
Deposit €3,000
Acceptance By 01 February 2026
Last updated 02 December 2025
Construction
Type of residence House, mansion, terraced house
Type of construction Existing estate
Construction period 1915
Surfaces and content
Plot size 132 m²
Floor Surface 232 m²
Content 840 m³
Layout
Number of floors 3
Number of rooms 4 (of which 2 bedrooms)
Number of bathrooms 2 (and 1 separate toilet)
Outdoors
Location City centre
Garden
Type Patio
Main garden Yes
Orientation East
Condition Normal
Features
Garden available Yes
Has an internet connection Yes
Has a skylight Yes
Cadastral informations
Cadastral designation

Description

Uniek woon-werkpand in het hart van Leerdam – beschikbaar per 1 februari

Midden in het centrum van Leerdam komt dit compleet gerenoveerde woon-winkelpand beschikbaar voor verhuur. Een karakteristiek rijksmonument met een opvallende gevel en een eigentijdse afwerking binnen. Ideaal voor ondernemers die wonen en werken willen combineren op een levendige en goed bereikbare locatie.

Layout

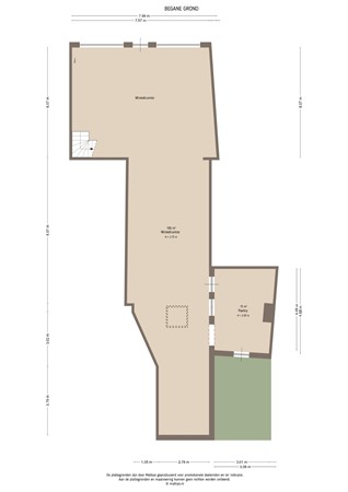
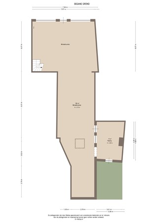
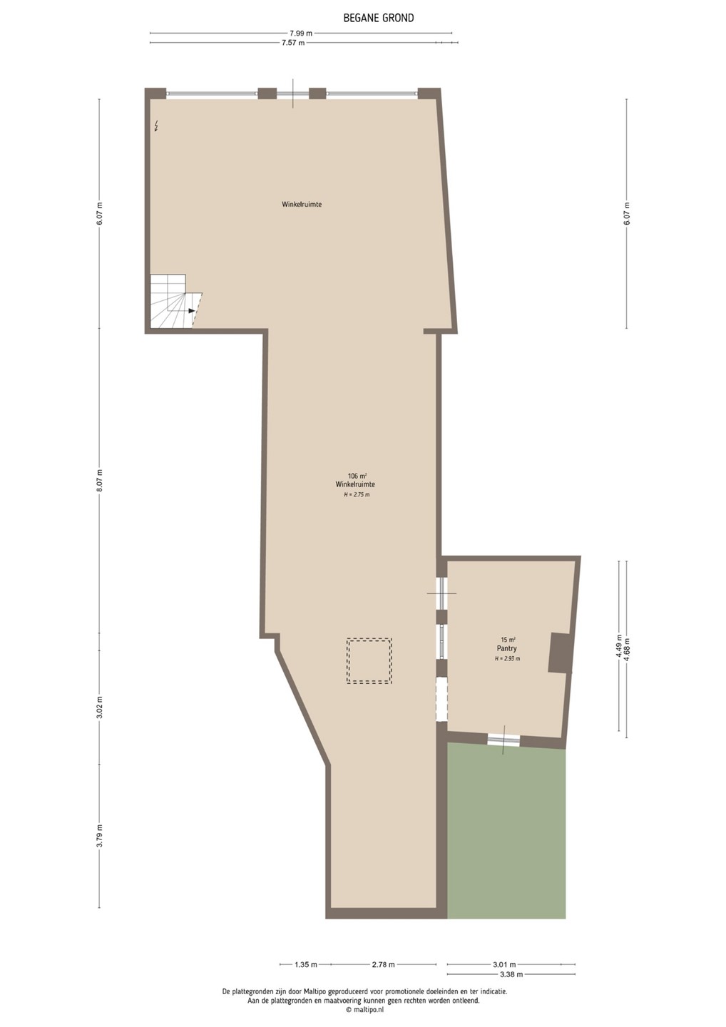
Begane grond – representatieve winkel- of kantoorruimte
De begane grond is ruim opgezet en volledig vernieuwd. De combinatie van hoge plafonds, zichtbare historische details en extra daglicht aan de achterzijde geeft het geheel een open en uitnodigende uitstraling. De ruimte beschikt over een moderne keuken, een nette toiletgroep en directe toegang tot de beschutte patiotuin – een prettige plek voor een koffiepauze of informeel overleg.

First floor

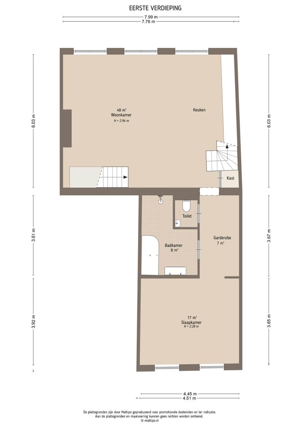
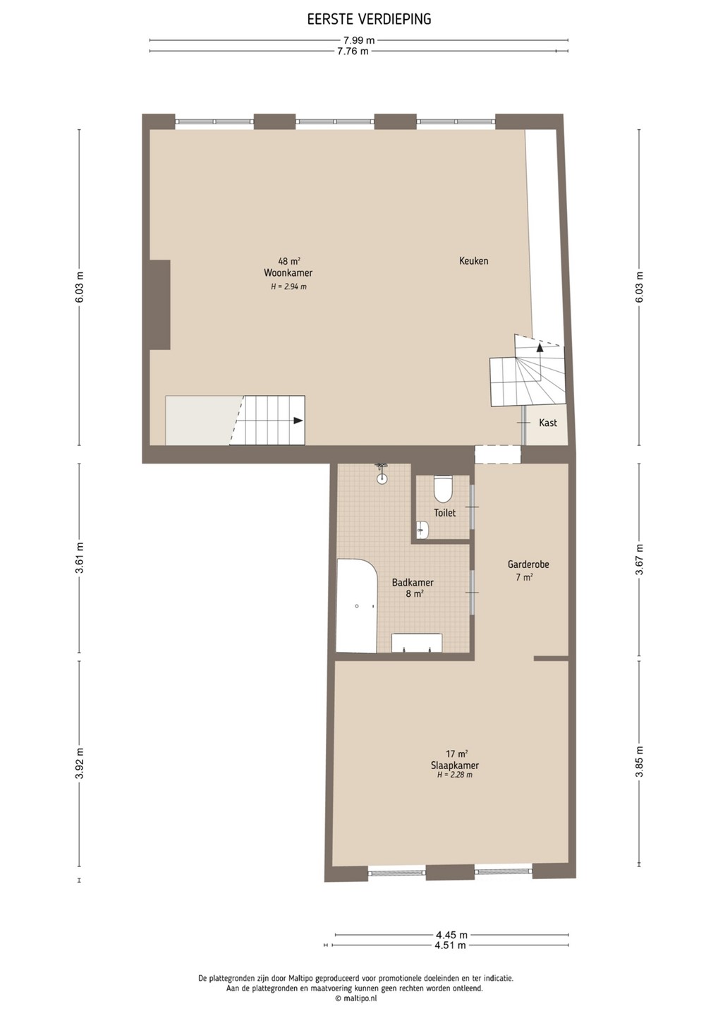
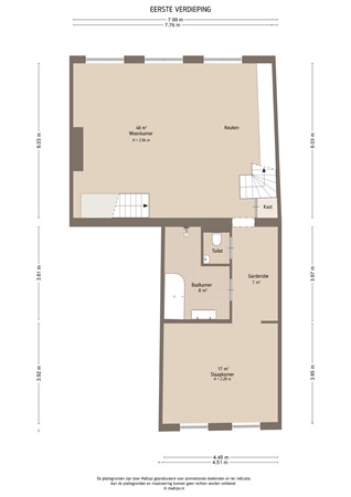
Eerste verdieping – modern wooncomfort met karakter
Via een afgesloten, inpandige trap kom je op de woonverdieping. Hier valt direct de hoogte en het licht op: drie grote ramen bieden uitzicht over de markt. De stijlvolle open keuken is voorzien van moderne inbouwapparatuur. De luxe badkamer beschikt over een inloopdouche, ligbad en wastafel, met daarnaast een separaat toilet. Aan de achterzijde bevindt zich een ruime slaapkamer met twee raampartijen.

Second floor

Tweede verdieping – extra ruimte en privacy
De bovenste verdieping biedt een royale tweede slaapkamer met dakramen en een dakkapel. Daarnaast is er een eigen tweede badkamer met inloopdouche, wastafel en toilet, evenals een aparte ruimte voor wasmachine en droger.

Other floors

Dit pand combineert monumentale charme met hedendaags comfort en biedt ondernemers de kans om wonen en werken te verenigen in het centrum van Leerdam.

Wil je meer weten of het pand bezichtigen? Neem gerust contact met ons op voor de mogelijkheden.

Details

Het pand aan Markt 7 ligt midden in het kernwinkelgebied en heeft de bestemming Centrum-1.

Dat betekent dat de begane grond gebruikt mag worden voor detailhandel, daghoreca of een kleinschalige maatschappelijke functie tot 200 m². Ook publiekgerichte dienstverlening of een kantoorfunctie kan hier mogelijk zijn wanneer dit past binnen de aanduidingen van het bestemmingsplan. Hierdoor is het een veelzijdige ruimte op een zichtlocatie in het centrum van Leerdam, geschikt voor uiteenlopende commerciële invullingen.

Op de eerste verdieping is in basis alleen wonen toegestaan.

Photos

Floor plans

ZonZone

Close

Recently viewed