slide
Outstanding Agents. Outstanding Results. DIVA staat voor ‘Ster’: wij willen dan ook uitblinken in optimale service en kwaliteit
Under option

Under option: Residentie Roerzicht type 2

€1,290 /mo
Address: Grootestraat 50, 6063 AL Vlodrop
Type of residence Apartment, gallery flat, apartment
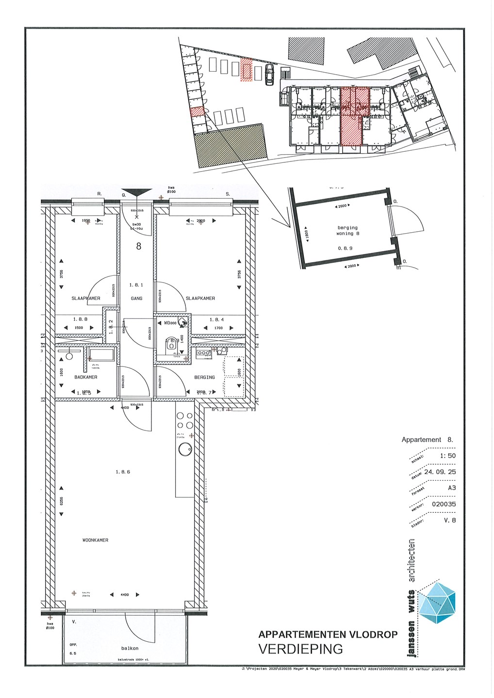
Liveable area 65 m²
Acceptance By 01 November 2025
Status Under option

Note

General

**Luxueus en zorgeloos wonen aan de Roer: Residentie Roerzicht**

Zoek je een modern appartement op een prachtige, rustige plek – maar dan wel met alles in de buurt? Dan mag je Residentie Roerzicht simpelweg niet missen. Gelegen op de hoek van de Grootestraat en de Boomgaardstraat, vind je deze nieuwbouwresidentie die helemaal inspeelt op jouw woonwensen. Hier wordt luxe leven verweven met co... More info
  • Features

    All characteristics
    Type of residence Apartment, gallery flat, apartment
    Construction period 2025
    Status Under option
  • Location

Features

Offer
Reference number 207
Asking price €1,290 per month
Deposit €2,580
Service costs €75 per month
Status Under option
Acceptance By 01 November 2025
Last updated 11 December 2025
Construction
Type of residence Apartment, gallery flat, apartment
Floor 1st floor
Type of construction New estate
Construction period 2025
Roof materials Bitumen, Tiles
Rooftype Composite
Isolations Cavity wall, Floor, Full, HR glazing, Insulated glazing, Roof, Wall
Surfaces and content
Floor Surface 65 m²
Content 180 m³
External surface area storage rooms 5 m²
External surface area 5 m²
Layout
Number of floors 1
Number of rooms 3 (of which 2 bedrooms)
Number of bathrooms 1 (and 1 separate toilet)
Energy consumption
Energy certificate A++++
Features
Number of parking spaces 1
Heating Floor heating, Heat pump
Ventilation method Balnced ventilation
Bathroom facilities Sink, Walkin shower, Washbasin furniture
Has a balcony Yes
Has an elevator Yes
Has solar panels Yes

Description

**Luxueus en zorgeloos wonen aan de Roer: Residentie Roerzicht**

Zoek je een modern appartement op een prachtige, rustige plek – maar dan wel met alles in de buurt? Dan mag je Residentie Roerzicht simpelweg niet missen. Gelegen op de hoek van de Grootestraat en de Boomgaardstraat, vind je deze nieuwbouwresidentie die helemaal inspeelt op jouw woonwensen. Hier wordt luxe leven verweven met comfort, duurzaamheid en uitzicht op adembenemende natuur.
De doelgroep voor Residentie Roerzicht is 55+.

**Luxe appartementen met schitterend uitzicht**

Zodra je binnenkomt, valt het direct op: de riante woonkamer baadt in het daglicht. Grote raampartijen zorgen niet alleen voor een excellente lichtinval, maar bieden je bovendien een ongekend uitzicht over het kabbelende water van rivier de Roer en het omringende groen. Heb je altijd al willen genieten van je eigen balkon met zo’n panorama? Dit is je kans!

Koken wordt leuker in de moderne keuken, die voorzien is van hoogwaardige apparatuur en slimme opbergruimte. De appartementen zijn voorzien van een volledig afgewerkte badkamer en toilet

De appartementen beschikken over twee slaapkamers. Genoeg ruimte dus om comfortabel te slapen én logees te ontvangen, óf een van de kamers als hobbyruimte of thuiskantoor in te richten. Zo maak je van dit nieuwe thuis jouw eigen plek.

De woonoppervlakten variëren van 65 tot 82 m² waardoor deze aantrekkelijk zijn voor een brede doelgroep. Daarnaast bieden de appartementen veel praktische extra’s. Natuurlijk beschikt iedere woning over een eigen parkeerplaats, zodat je altijd zonder gedoe je auto kwijt kunt. Ook aan opslag is gedacht; iedere bewoner heeft een eigen berging voor fietsenof seizoensspullen.

**Duurzaamheid en energiebewust wonen**

In Residentie Roerzicht komt toekomstbestendig wonen tot leven. Dankzij het duurzame ontwerp en een energielabel A+++ houd je de maandlasten laag. Dat betekent voor jou: jarenlang geen zorgen over stijgende energiekosten én genieten van ultiem comfort. Alles is hier piekfijn geïsoleerd, voorzien van vloerverwarming, eigen zonnepanelen en volledig gasloos.

**Rust en levendigheid hand in hand**

Van de 10 appartementen bevinden zich er 5 op de begane grond en 5 op de eerste verdieping. De bovenwoningen zijn eenvoudig bereikbaar met een lift. Wat maakt het wonen Residentie Roerzicht nu juist zo aantrekkelijk, zeker voor mensen die willen genieten van rust en natuur? Je woont hier heerlijk ongestoord, maar hoeft tegelijkertijd niets van de dagelijkse voorzieningen te missen. Winkels, supermarkt, zorgvoorzieningen, het ligt allemaal in de nabijheid. Bovendien biedt de omgeving volop mogelijkheden om te wandelen langs de Roer, te genieten van het natuurschoon of een gezellig kopje koffie te drinken in het dorpshart.

**Klaar voor een nieuwe stap?**

Maak een comfortabele én veilige keuze: kies voor Residentie Roerzicht. Luxe, duurzame appartementen, gebouwd voor de toekomst én helemaal klaar voor jouw wensen. Hier beleef je vrijheid, gemak en dagelijkse vreugde, tegen de achtergrond van stromend water en groene vergezichten.

Interesse gewekt? Neem gerust contact op voor meer informatie! We vertellen je graag alles over dit unieke project en horen graag hoe jouw ideale woondroom eruit ziet. Wie weet, geniet jij straks elke ochtend op het balkon van het mooiste uitzicht van Vlodrop…

Floor plans

ZonZone

Close

Recently viewed