slide
Outstanding Agents. Outstanding Results. DIVA staat voor ‘Ster’: wij willen dan ook uitblinken in optimale service en kwaliteit
Sold subject to conditions

Sold subject to conditions: Goudvink 2, 3752 NP Bunschoten-Spakenburg

€495,000
Type of residence House, single-family house, terraced house
Plot size 157 m²
Liveable area 130.2 m²
Acceptance By consultation
Status Sold subject to conditions

Note

General

Goudvink 2 is zo’n woning waar alles klopt zodra je binnenstapt. De ruimte is royaal, de afwerking verzorgd en het geheel voelt prettig en in balans. Met circa 130 m² woonoppervlakte biedt deze woning comfort op een manier die je elke dag opnieuw ervaart.

De begane grond is ruim opgezet en voorzien van vloerverwarming, wat direct zorgt voor een aangename sfeer. De keuken vormt een fijne, cen... More info
  • Features

    All characteristics
    Type of residence House, single-family house, terraced house
    Construction period 1981
    Status Sold subject to conditions
  • Location

Features

Offer
Reference number 07464
Asking price €495,000
Upholstered Not furnished
Furnishing Unfurnished
Status Sold subject to conditions
Acceptance By consultation
Last updated 29 January 2026
Construction
Type of residence House, single-family house, terraced house
Type of construction Existing estate
Construction period 1981
Roof materials Tiles
Rooftype Front gable
Isolations Full, Insulated glazing
Surfaces and content
Plot size 157 m²
Floor Surface 130.2 m²
Living area 48.47 m²
Kitchen area 7.59 m²
Content 512 m³
Surface area other inner rooms 5.8 m²
External surface area storage rooms 13.3 m²
Layout
Number of floors 3
Number of rooms 5 (of which 4 bedrooms)
Number of bathrooms 1 (and 1 separate toilet)
Garden
Type Back yard
Main garden Yes
Orientation East
Has a backyard entrance Yes
Condition Normal
Energy consumption
Energy certificate A
Boiler
Heating source Gas
Year of manufacture 2023
Combiboiler Yes
Boiler ownership Owned
Features
Water heating Central heating system
Heating Central heating, Partial Floor heating
Kitchen facilities Built-in equipment
Bathroom facilities Shower, Toilet, Washbasin furniture
Has AC Yes
Garden available Yes
Has a storage room Yes
Has a skylight Yes
Has solar panels Yes
Cadastral informations
Cadastral designation Bunschoten G 1302
Area 157 m²
Range Entire lot
Ownership Full ownership

Description

Goudvink 2 is zo’n woning waar alles klopt zodra je binnenstapt. De ruimte is royaal, de afwerking verzorgd en het geheel voelt prettig en in balans. Met circa 130 m² woonoppervlakte biedt deze woning comfort op een manier die je elke dag opnieuw ervaart.

De begane grond is ruim opgezet en voorzien van vloerverwarming, wat direct zorgt voor een aangename sfeer. De keuken vormt een fijne, centrale plek in huis en sluit naadloos aan op de leefruimte. Dankzij de Z-vormige indeling voelt het geheel ruim en logisch aan, met duidelijke zones die toch mooi in elkaar overlopen. Alles is goed doordacht en verzorgd, waardoor je hier moeiteloos je eigen thuis van maakt. Aansluitend bevindt zich de bijkeuken: compact in meters, maar groot in wooncomfort, met een praktische opstelling die het dagelijks leven net even makkelijker maakt.

Ook op de verdieping blijft het niveau hoog. De badkamer is netjes en compleet en sluit qua uitstraling goed aan bij de rest van de woning. De ruimtes zijn goed onderhouden en praktisch ingedeeld, waardoor het huis niet alleen ruim aanvoelt, maar ook prettig functioneert. Dit is een woning waar je zonder klussen direct kunt gaan wonen.

De achtertuin is diep, recent vernieuwd en vormt een fijne verlenging van het huis. Onder de veranda zit je beschut en comfortabel, een plek waar je al snel veel tijd zult doorbrengen. Of het nu gaat om lange zomeravonden met vrienden of een rustig moment voor jezelf, deze tuin biedt ruimte en ontspanning.

De ligging maakt het geheel compleet. Goudvink 2 ligt in een ruim opgezette en kindvriendelijke buurt met voldoende parkeergelegenheid. Schuin tegenover de woning bevindt zich een speeltuin en alle dagelijkse voorzieningen zijn dichtbij. Een fijne plek om te wonen, met ruimte en comfort in en om het huis.

Layout

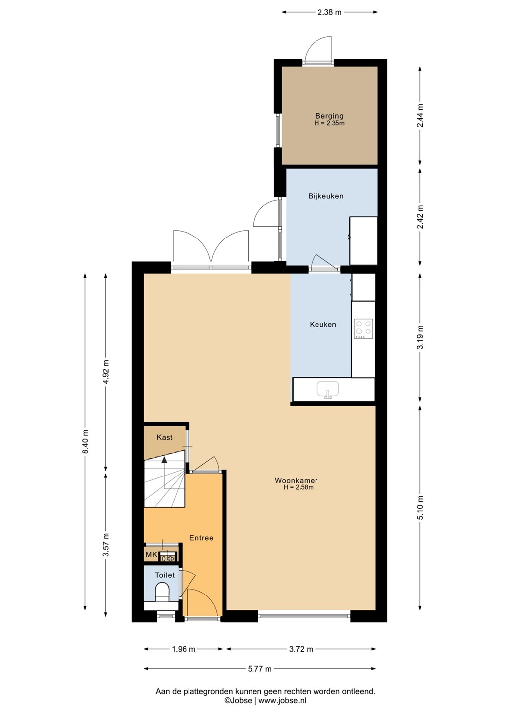
Via de entree komt u binnen in de hal met meterkast, toiletruimte en trapopgang. Vanuit de hal is de ruime en lichte woonkamer bereikbaar, met voldoende plaats voor een zit- en eethoek. Aan de achterzijde bevindt zich de keuken, die in open verbinding staat met de woonkamer en is voorzien van vaste kastruimte en inbouwapparatuur. Aansluitend ligt de praktische bijkeuken met extra bergruimte en toegang tot de achtergelegen berging. De berging is tevens van buitenaf bereikbaar en ideaal voor fietsen en opslag.

First floor

Via de overloop zijn drie slaapkamers bereikbaar, allen van goed formaat en voorzien van daglicht. Daarnaast bevindt zich op deze verdieping de badkamer, ingericht met douche, wastafel en toilet. De indeling is functioneel en biedt volop mogelijkheden voor slapen, werken of hobby’s.

Second floor

Via een vaste trap is de zolderverdieping bereikbaar. Deze open ruimte is ingericht als slaapkamer en beschikt over een ruime stahoogte. Dankzij de aanwezige dakramen komt er prettig daglicht binnen. De zolder biedt daarnaast praktische bergruimte onder de schuine dakvlakken en is uitstekend geschikt als extra slaapkamer, werk- of hobbyruimte.

Garden

De verzorgde achtertuin is gelegen op het noordoosten en is grotendeels bestraat, waardoor deze onderhoudsvriendelijk is ingericht. In de tuin bevindt zich een sfeervolle overkapping/veranda waar het goed toeven is, ook op koelere dagen. Door de beschutte ligging biedt de tuin veel privacy en is er ruimte voor zowel ontspanning als spelen.

Details

- 14 zonnepanelen

Floor plans

Brochure(s) and other documents

ZonZone

Close

Recently viewed