slide
Outstanding Agents. Outstanding Results. DIVA staat voor ‘Ster’: wij willen dan ook uitblinken in optimale service en kwaliteit
Sold subject to conditions

Sold subject to conditions: Prins Willem Alexanderstraat 15, 3751 DL Bunschoten-Spakenburg

€349,000
Type of residence Apartment, ground floor apartment, apartment
Liveable area 54 m²
Acceptance By consultation
Status Sold subject to conditions

Note

General

Dat gelijkvloers wonen zó dicht bij het centrum nog bestaat, bewijst deze woning. Een compacte en praktische plek waar alles zich op één niveau afspeelt en waar comfortabel wonen centraal staat.

Binnen voelt het overzichtelijk en prettig aan. De leefruimte biedt voldoende ruimte voor een fijne zithoek en een eettafel, waardoor het dagelijks gebruik hier logisch en comfortabel is. De woning v... More info
  • Features

    All characteristics
    Type of residence Apartment, ground floor apartment, apartment
    Construction period 1994
    Status Sold subject to conditions
  • Location

Features

Offer
Reference number 07458
Asking price €349,000
Service costs €46
Upholstered Not furnished
Furnishing Unfurnished
Status Sold subject to conditions
Acceptance By consultation
Last updated 20 April 2026
Construction
Type of residence Apartment, ground floor apartment, apartment
Floor 1st floor
Type of construction Existing estate
Construction period 1994
Isolations Insulated glazing
Surfaces and content
Floor Surface 54 m²
Living area 20.48 m²
Kitchen area 4.2 m²
Content 195 m³
Layout
Number of floors 1
Number of rooms 2 (of which 1 bedroom)
Number of bathrooms 1
Garden
Type Back yard
Main garden Yes
Orientation South
Has a backyard entrance Yes
Condition Neglected
Energy consumption
Energy certificate C
Boiler
Heating source Gas
Year of manufacture 2016
Boiler ownership Owned
Features
Water heating Central heating system
Heating Central heating
Bathroom facilities Shower, Sink, Toilet
Garden available Yes
Has an internet connection Yes
Has solar blinds Yes
Cadastral informations
Cadastral designation Bunschoten K 3858
Area 360 m²
Range Condominium
Ownership Full ownership
Index number A1

Description

Dat gelijkvloers wonen zó dicht bij het centrum nog bestaat, bewijst deze woning. Een compacte en praktische plek waar alles zich op één niveau afspeelt en waar comfortabel wonen centraal staat.

Binnen voelt het overzichtelijk en prettig aan. De leefruimte biedt voldoende ruimte voor een fijne zithoek en een eettafel, waardoor het dagelijks gebruik hier logisch en comfortabel is. De woning vormt een goede basis en laat ruimte om de inrichting naar eigen wens verder vorm te geven.

Wat deze woning extra prettig maakt, is de buitenruimte aan beide zijden. Aan de ene kant ligt een tuin op het zuiden, ideaal om van de zon te genieten, terwijl de tuin aan de noordzijde juist zorgt voor een koeler plekje op warme dagen. Zo is er op elk moment van de dag een fijne plek buiten te vinden.

De ligging maakt het geheel compleet. Het centrum van Spakenburg ligt op korte loopafstand, ideaal voor dagelijkse voorzieningen en een stukje gezelligheid. Gelijkvloers wonen met twee tuinen en het centrum om de hoek — een combinatie die je in deze prijsklasse niet vaak tegenkomt.

Layout

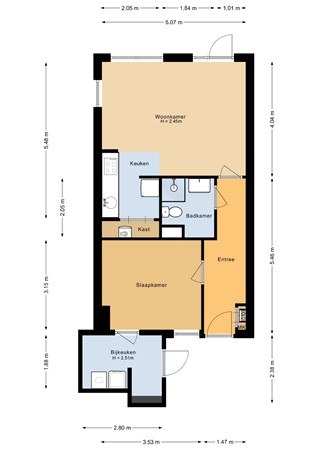
Via de entree kom je in de hal met meterkast en toegang tot de badkamer. Vanuit de hal bereik je de slaapkamer, die centraal in de woning ligt. Aangrenzend aan de slaapkamer bevindt zich een praktische bijkeuken met extra bergruimte en opstelplaats voor apparatuur. De badkamer is voorzien van toilet, wastafel en douche. De keuken ligt aan de woonkamer en staat in open verbinding met deze ruimte. De ruime en lichte woonkamer bevindt zich aan de achterzijde van de woning en biedt toegang tot buiten.

Garden

De achtertuin is compact van formaat, maar dankzij de gunstige ligging op het zuiden geniet je hier volop van de zon. Een fijne plek om buiten te zitten en te ontspannen. Door de ligging is de tuin licht en zonnig, ideaal voor een zitje of wat groen, met weinig onderhoud.

Floor plans

Brochure(s) and other documents

ZonZone

Close

Recently viewed