slide
Outstanding Agents. Outstanding Results. DIVA staat voor ‘Ster’: wij willen dan ook uitblinken in optimale service en kwaliteit
Sold subject to conditions

Sold subject to conditions: Dorus Rijkersstraat 1, 4671 AA Dinteloord

€379,000
Type of residence House, single-family house, corner house
Plot size 296 m²
Liveable area 119.5 m²
Acceptance By consultation
Status Sold subject to conditions

Note

General

Dit hoekhuis aan de Dorus Rijkersstraat combineert comfort, ruimte en een leuke ligging.
Met een eigen oprit, carport, berging en een brede tuin zit je hier meteen goed. Extra bijzonder is de ruimte achter de carport: nu ingericht als een gezellig kroegje, maar ook perfect te gebruiken als werkruimte, salon aan huis of hobbyruimte.

De Dorus Rijkersstraat is een bekende en prettige straat,... More info
  • Features

    All characteristics
    Type of residence House, single-family house, corner house
    Construction period 1972
    Status Sold subject to conditions
  • Location

Features

Offer
Reference number 06131
Asking price €379,000
Status Sold subject to conditions
Acceptance By consultation
Last updated 26 January 2026
Construction
Type of residence House, single-family house, corner house
Type of construction Existing estate
Construction period 1972
Roof materials Tiles
Rooftype Front gable
Isolations Cavity wall, Insulated glazing
Surfaces and content
Plot size 296 m²
Floor Surface 119.5 m²
Living area 42.81 m²
Kitchen area 7.6 m²
Content 467 m³
Surface area other inner rooms 12.3 m²
External surface area storage rooms 16.3 m²
External surface area 53.9 m²
Layout
Number of floors 3
Number of rooms 5 (of which 3 bedrooms)
Number of bathrooms 1
Garden
Type Back yard
Main garden Yes
Orientation North east
Has a backyard entrance Yes
Condition Well maintained
Energy consumption
Energy certificate D
Boiler
Type of boiler Remeha Tzerra
Heating source Gas
Year of manufacture 2017
Combiboiler Yes
Boiler ownership Owned
Features
Number of parking spaces 2
Number of covered parking spaces 1
Water heating Central heating system
Heating Central heating
Bathroom facilities Sink
Parking Carport
Has AC Yes
Has fibre optical cable Yes
Garden available Yes
Has a storage room Yes
Cadastral informations
Cadastral designation Dinteloord F 4783
Area 296 m²
Range Entire lot
Ownership Full ownership

Description

Dit hoekhuis aan de Dorus Rijkersstraat combineert comfort, ruimte en een leuke ligging.
Met een eigen oprit, carport, berging en een brede tuin zit je hier meteen goed. Extra bijzonder is de ruimte achter de carport: nu ingericht als een gezellig kroegje, maar ook perfect te gebruiken als werkruimte, salon aan huis of hobbyruimte.

De Dorus Rijkersstraat is een bekende en prettige straat, met het zwembad, de tennisbanen en de voormalige ijsbaan op loopafstand. Je woont hier aan de rand van het dorp, vlakbij de bushalte én op korte afstand van het dorpscentrum. Rustig wonen, met alles wat je nodig hebt dichtbij.

Layout

Je komt binnen in de hal, waar je toegang hebt tot de toiletruimte en de woonkamer. In de hal is ook de trap naar de eerste verdieping, een handige trapkast en de meterkast – alles netjes uit het zicht.

De woonkamer is licht en sfeervol, met een laminaatvloer en strak afgewerkte stucwanden en -plafond. Aan de achterzijde is het huis uitgebouwd, waardoor er volop ruimte is voor een grote, gezellige eettafel. Perfect voor lange diners, spelletjesavonden of gewoon een goede kop koffie in de ochtend.

De keuken is eenvoudig en functioneel ingericht met een rechte opstelling, voorzien van boven- en onderkastjes en losse apparatuur zoals een gasfornuis, oven, afzuigkap en vaatwasser. Een fijne basis die je eventueel helemaal naar eigen smaak kunt upgraden.

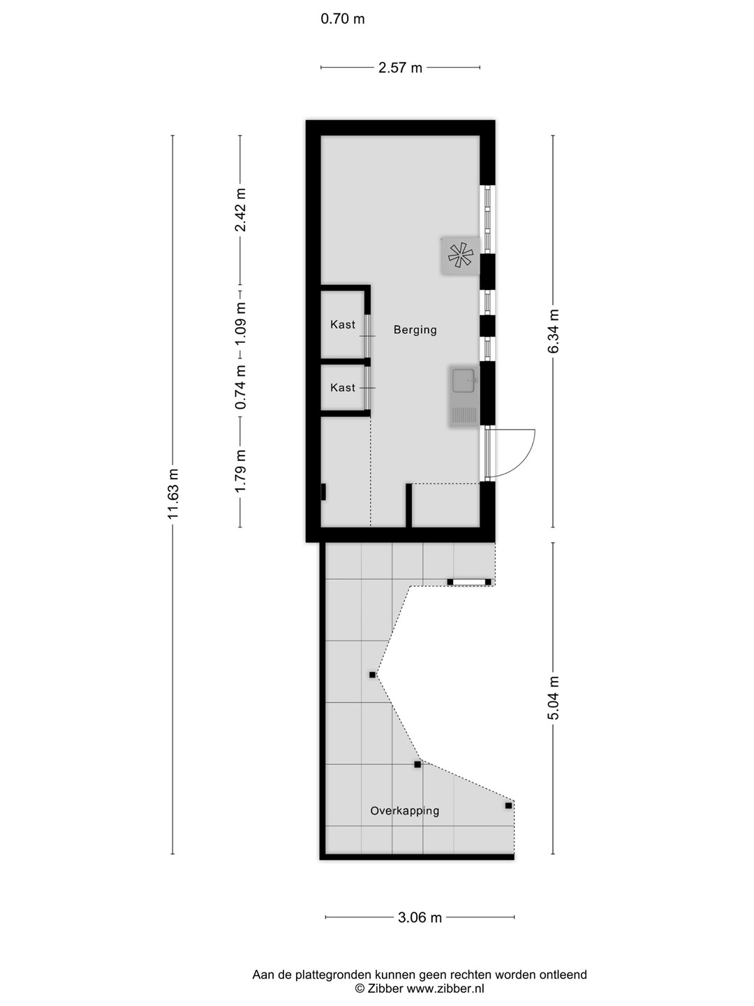
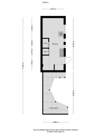
Aansluitend vind je de bijkeuken: een praktische ruimte met uitstortgootsteen en een deur naar de carport – ideaal voor extra opslag, de was of natte jassen na een regenbui.

First floor

Vanaf de overloop is er toegang tot 3 slaapkamers, de badkamer, een bergkast én de vaste trap naar de tweede verdieping.

De badkamer is compact en netjes, voorzien van een douche en een wastafelmeubel. Precies wat je nodig hebt om fris aan je dag te beginnen of juist ontspannen af te sluiten.

Aan de voorzijde is een fijne slaapkamer met vaste kasten.
Aan de achterzijde zijn nog twee slaapkamers: de masterbedroom met vaste kasten welke stoere houten deuren hebben. Deze kamer is voorzien van airconditioning (ja, ook tijdens warme zomers slaap je hier heerlijk koel).

De andere slaapkamer aan de achterzijde heeft directe toegang tot het balkon – een perfecte plek voor een kop koffie in de ochtend of even frisse lucht tussendoor.

Second floor

De tweede verdieping is een open ruimte met een voorzolder, voorzien van een wasmachineaansluiting en de cv-ketel (Remeha, 2017). Een praktische basis die je helemaal kunt invullen zoals jij dat wilt.

Of je hier nu een extra slaapkamer, een hobbyruimte, thuiskantoor of gewoon een royale bergzolder van maakt: deze verdieping past zich moeiteloos aan jouw leven aan. Extra fijn voor iedereen die nét wat meer ruimte zoekt.

Garden

Het huis heeft een leuke, brede tuin, netjes aangelegd met sierbestrating en meerdere terrassen. Een heerlijke plek voor lange zomeravonden, borrels met vrienden of gewoon relaxed buiten zitten na een drukke dag.
Achterin de tuin staat een praktische schuur, ideaal voor het opbergen van tuingereedschap, fietsen of andere spullen die je liever uit het zicht houdt.

En dan de verrassing: via de tuin heb je toegang tot je eigen kroegje. Een gezellige barruimte waar je zonder moeite de tijd (en het klokje) vergeet.

Floor plans

Brochure(s) and other documents

Virtual tour

ZonZone

Close

Recently viewed