slide
Outstanding Agents. Outstanding Results. DIVA staat voor ‘Ster’: wij willen dan ook uitblinken in optimale service en kwaliteit
Sold subject to conditions

Sold subject to conditions: Dorpsstraat 57, 3171 EE Poortugaal

€365,000
Type of residence House, single-family house, end house
Plot size 68 m²
Liveable area 94 m²
Acceptance By consultation
Status Sold subject to conditions

Note

General

STARTERS OPGELET! CHARMANT EN MODERN AFGEWERKTE WONING MET DAKTERRAS IN HET CENTRUM VAN POORTUGAAL!

YESS! WAT EEN PLUSPUNTEN HEEFT DEZE WONING:
1. Ideale starterswoning
2. Goed onderhouden woning
3. Moderne afwerking
4. Charmante jaren ’30 bouw
5. Drie slaapkamers
6. Ruime woonkamer met open keuken
7. Zonnig dakterras
8. Gelegen in het centrum van Poortugaal
9. Energielabel D
1... More info
  • Features

    All characteristics
    Type of residence House, single-family house, end house
    Construction period 1930
    Status Sold subject to conditions
  • Location

Features

Offer
Reference number 00434
Asking price €365,000
Upholstered Yes
Upholstered Upholstered
Status Sold subject to conditions
Acceptance By consultation
Last updated 20 January 2026
Construction
Type of residence House, single-family house, end house
Type of construction Existing estate
Construction period 1930
Roof materials Bitumen, Tiles
Rooftype Composite
Isolations HR glazing, Insulated glazing
Surfaces and content
Plot size 68 m²
Floor Surface 94 m²
Content 326 m³
External surface area 9 m²
Layout
Number of floors 2
Number of rooms 4 (of which 3 bedrooms)
Number of bathrooms 1 (and 1 separate toilet)
Outdoors
Location Near highway, Near public transport, Near school
Energy consumption
Energy certificate D
Boiler
Type of boiler Intergas
Heating source Gas
Year of manufacture 2012
Combiboiler Yes
Boiler ownership Owned
Features
Water heating Central heating system
Heating Central heating
Kitchen facilities Built-in equipment
Bathroom facilities Toilet, Walkin shower, Washbasin furniture
Has AC Yes
Cadastral informations
Cadastral designation Poortugaal A 2407
Area 68 m²
Range Entire lot
Ownership Full ownership

Description

STARTERS OPGELET! CHARMANT EN MODERN AFGEWERKTE WONING MET DAKTERRAS IN HET CENTRUM VAN POORTUGAAL!

YESS! WAT EEN PLUSPUNTEN HEEFT DEZE WONING:
1. Ideale starterswoning
2. Goed onderhouden woning
3. Moderne afwerking
4. Charmante jaren ’30 bouw
5. Drie slaapkamers
6. Ruime woonkamer met open keuken
7. Zonnig dakterras
8. Gelegen in het centrum van Poortugaal
9. Energielabel D
10. Nabij alle voorzieningen

Krijg je hier ook het YESS-gevoel van? Dan nodigen wij je heel graag uit voor een bezichtiging van deze leuke woning!

DE OMGEVING:
Aan de Dorpsstraat 57 woon je midden in het kloppend hart van Poortugaal. Hier vind je die fijne, dorpse gezelligheid waar iedereen zich direct thuis voelt. Denk aan charmante straatjes, lokale winkels en dagelijkse voorzieningen die je zo te voet bereikt. Alles straalt rust, karakter en gemoedelijkheid uit, precies wat Poortugaal zo geliefd maakt.

Op een paar minuten lopen sta je in het groene buitengebied met prachtige polders, wandelpaden en kronkelende dijkjes. Een ideale plek om te ontspannen: heerlijk fietsen, wandelen of gewoon genieten van de natuur. Het kan allemaal!

Poortugaal heeft daarnaast diverse sportverenigingen, scholen en knusse horecagelegenheden. En wil je wat meer stads dynamiek? Dankzij de centrale ligging en het nabijgelegen metrostation ben je in no-time in Rotterdam. Ook met de auto rijd je via de Groene Kruisweg of de A15 makkelijk alle kanten op.

Kortom: Dorpsstraat 57 biedt het beste van dorps wonen met de voordelen van de stad altijd binnen handbereik. Een plek om verliefd op te worden!

DE INDELING:
Begane grond:
Middels de entree kom je in een ruime hal. De hal is voorzien van de meterkast, toiletruimte, trapopgang naar de 1e verdieping en geeft toegang tot de woonkamer met open keuken. De toiletruimte is volledig betegeld en is voorzien van een duoblok en een fonteintje.

De woonkamer is heerlijk licht en ruim van opzet en is eenvoudig in te delen in een woon- en eetgedeelte. De sierhaard zorgt voor een warm en stijlvol middelpunt, terwijl de airconditioning elk seizoen voor optimaal comfort zorgt. Dankzij de open keuken vloeien wonen en koken naadloos in elkaar over, perfect voor gezellige avonden met familie en vrienden.

De moderne U-vormige keuken combineert stijl en functionaliteit in één. De hoogglans witte kasten met strak zwart werkblad geven de ruimte een luxe en eigentijdse uitstraling, terwijl de diverse inbouwapparatuur zorgt voor optimaal kookgemak. De keuken is v.v. een 5-pits gasfornuis met oven, RVS afzuigkap, vaatwasser en close-in boiler. Het barretje vormt de ideale plek voor een snelle koffie, een borrel of gezellig contact met gasten tijdens het koken.

1e verdieping:
Vanaf de overloop is er toegang tot alle vertrekken en is v.v. een bergkast.

Op deze verdieping zijn er drie slaapkamers aanwezig. De master bedroom is v.v. een vaste kastenwand en airconditioning. De tweede slaapkamer beschikt over een vaste kastenwand en de derde slaapkamer geeft toegang tot de vliering.

De volledig betegelde en modern afgewerkte badkamer straalt rust en luxe uit, met een fijne inloopdouche. Het strakke, dubbele wastafelmeubel biedt volop opbergruimte en wordt perfect aangevuld door de eigentijdse spiegel. Een frisse, comfortabele ruimte waar elke dag begint én eindigt in stijl. In de badkamer bevindt zich ook een bergkast v.v. de opstelplaats van de C.V.-ketel en het biedt toegang tot het dakterras.

Geniet van het ultieme buitenleven op dit heerlijke dakterras! Hier start je de dag met een kop koffie in de zon en sluit je ’s avonds af met een drankje onder de sterren. Een unieke, sfeervolle plek die elk seizoen iets bijzonders biedt.

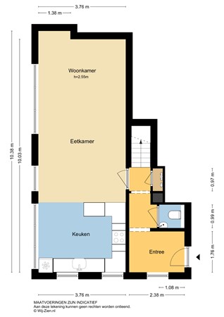
DE AFMETINGEN:
Voor de afmetingen en indeling, zie de plattegrond.

DE BIJZONDERHEDEN:
- Woonoppervlakte van ca. 94 m²;
- Perceeloppervlakte 68 m²
- Bouwjaar ca. 1930;
- Energielabel D;
- Houten kozijnen v.v. dubbele en HR++ beglazing;
- Verwarming en warm water middels C.V-ketel (merk: Intergas, bouwjaar: 2012);
- Airconditioning aanwezig;
- Eigen grond;
- Oplevering in overleg.

Vraagprijs €365.000,- k.k.

De Meetinstructie is gebaseerd op de NEN2580. De Meetinstructie is bedoeld om een meer eenduidige manier van meten toe te passen voor het geven van een indicatie van de gebruiksoppervlakte. De Meetinstructie sluit verschillen in meetuitkomsten niet volledig uit, door bijvoorbeeld interpretatieverschillen, afrondingen of beperkingen bij het uitvoeren van de meting.

Alle verstrekte informatie moet beschouwd worden als een uitnodiging tot het doen van een bod of om in onderhandeling te treden. Er kunnen geen rechten worden ontleend aan deze woninginformatie.

WIL JE EEN AFSPRAAK MAKEN OM DEZE WONING TE BEZICHTIGEN? JE MAG ONS BELLEN, MAILEN , APPEN OF LAAT EEN REACTIE ACHTER VIA DEZE SITE!

Floor plans

ZonZone

Close

Recently viewed