slide
Outstanding Agents. Outstanding Results. DIVA staat voor ‘Ster’: wij willen dan ook uitblinken in optimale service en kwaliteit
Sold subject to conditions

Sold subject to conditions: Makelaar Leyenburg www.thuisinleyenburg.nl

€260,000
Address: Nieuwediepstraat 109, 2547 TH The Hague
Type of residence Apartment, flat with shared staircase, apartment
Liveable area 70.2 m²
Acceptance By consultation
Status Sold subject to conditions

Note

General

FIRST-TIME BUYERS AND COUPLES, TAKE NOTE!
BRIGHT 3/4-ROOM CORNER APARTMENT ON THE 2ND FLOOR WITH TWO BEDROOMS, SUNROOM BALCONY, AND SEPARATE BIKE STORAGE — LOCATED ON A QUIET STREET NEAR SHOPS AND PUBLIC TRANSPORT.
This charming 3/4-room apartment on the second floor offers plenty of possibilities! Thanks to its favorable corner position, it’s exceptionally bright and airy throughout. An idea... More info
  • Features

    All characteristics
    Type of residence Apartment, flat with shared staircase, apartment
    Construction period 1958
    Status Sold subject to conditions
  • Location

Features

Offer
Reference number DIVA09404
Asking price €260,000
Service costs €110
Status Sold subject to conditions
Acceptance By consultation
Last updated 25 December 2025
Construction
Type of residence Apartment, flat with shared staircase, apartment
Floor 3rd floor
Type of construction Existing estate
Construction period 1958
Roof materials Bitumen
Rooftype Flat
Certifications Energy performance advice
Isolations Largely insulated glazing
Surfaces and content
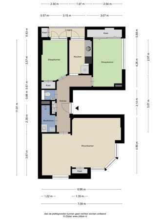
Floor Surface 70.2 m²
Content 234 m³
Surface area other inner rooms 0.5 m²
External surface area storage rooms 6.4 m²
External surface area 2.6 m²
Balcony 2.61 m²
Layout
Number of floors 1
Number of rooms 4 (of which 3 bedrooms)
Number of bathrooms 1 (and 1 separate toilet)
Outdoors
Location Near highway, Near public transport, Near school, Near shopping center, On a quiet street, Residential area, Unobstructed view
Energy consumption
Energy certificate F
Boiler
Type of boiler Remeha Avanta
Heating source Gas
Year of manufacture 2008
Combiboiler Yes
Boiler ownership Owned
Features
Water heating Central heating system
Heating Central heating
Ventilation method Mechanical ventilation, Natural ventilation
Bathroom facilities Shower, Sink, Washbasin furniture
Has a balcony Yes
Has cable TV Yes
Has a phone line Yes
Has an internet connection Yes
Has a storage room Yes
Has ventilation Yes
Association of owners
Registered at Chamber of Commerce Yes
Annual meeting Yes
Periodic contribution Yes
Reserve fund Yes
Long term maintenance plan Yes
Maintenance forecast Yes
Home insurance Yes
Cadastral informations
Cadastral designation Loosduinen N 3392
Range Condominium
Ownership Full ownership

Description

FIRST-TIME BUYERS AND COUPLES, TAKE NOTE!
BRIGHT 3/4-ROOM CORNER APARTMENT ON THE 2ND FLOOR WITH TWO BEDROOMS, SUNROOM BALCONY, AND SEPARATE BIKE STORAGE — LOCATED ON A QUIET STREET NEAR SHOPS AND PUBLIC TRANSPORT.
This charming 3/4-room apartment on the second floor offers plenty of possibilities! Thanks to its favorable corner position, it’s exceptionally bright and airy throughout. An ideal home for young couples or first-time buyers looking for a warm and comfortable place to truly call home.

TWO BEDROOMS AND A WELL-DESIGNED KITCHEN
This bright apartment features two comfortable bedrooms and a practical, well-designed kitchen. The kitchen is efficiently laid out and equipped with various built-in appliances, including an oven with a 4-burner gas cooktop above it, as well as ample space for a refrigerator and freezer. From the kitchen, you have direct access to the sunroom balcony of 2.60m², fully enclosed with double-glazed plastic window frames allowing you to enjoy the view of the city gardens comfortably all year round.

WELCOME TO LEYENBURG
This lovely apartment is situated in the popular Leyenburg district, known for its green surroundings, excellent amenities, and great accessibility. For your daily groceries, you’ll find plenty of shops at Monnickendamplein just minutes away. With excellent public transport connections and nearby access to major roads, Leyenburg offers a truly central location.

LOOKING AHEAD
Are you looking for a pleasant apartment with two bedrooms and a convenient location? Then this is definitely worth a viewing! Schedule an appointment today. The real estate agent will be delighted to show you around. You can also contact our office for more information.

Key Features
• Built in 1958;
• Freehold, own property;
• Living area: 70.20 m²;
• Two bedrooms;
• Energy label F, valid until 11-08-2031;
• Sunroom balcony of 2.60 m²;
• Storage accessible from the street side, 6.40 m²;
• Windows: partly wooden with single glazing, partly wooden with double glazing, and partly plastic with double glazing;
• Electrical system: 8 circuits, 2 residual-current devices, and 1 main switch;
• Central heating boiler: Remeha, year 2008;
• Active Homeowners’ Association (VvE) – 4/65th share, monthly contribution €110; reserve fund as of 01-01-2025: €67,000,-;
• Excellent location near public transport, shops, and both medical and cosmetic facilities;
• Parking: Free during the day; paid parking from Monday to Sunday, 18:00–24:00 – first resident’s permit €97.05 per year;

Sales Conditions
• Bidding takes place via divamakelaars.nl/eerlijkbieden
• The property is offered for sale with an attractive minimum asking price
• Quick delivery possible
• Buyer’s choice of notary, provided located in The Hague
• Due to the age and condition of the property, an age clause will be included

THINKING OF SELLING YOUR CURRENT HOME?
If you’re enthusiastic about this property but haven’t sold your own home yet, contact our office for a free valuation. We’ll schedule an appointment right away, giving you a clear picture of your options in no time.

CAN I AFFORD THIS?
As an extra service, we offer a free and non-binding mortgage calculation with one of our independent mortgage advisors. Appointments can usually be arranged the same day, and if desired, we can also handle the entire mortgage application process for you.

We have compiled this information with the utmost care, as you would expect from us. However, in rare cases, details may not be fully accurate or complete. For that reason, as the selling agent, we cannot accept liability for any inaccuracies or omissions. No rights can be derived from the information provided. This listing is intended as an invitation to schedule a viewing and submit an offer subject to approval.

Measurement Instruction Disclaimer
The measurement guidelines are based on the BBMI (Branche Brede Meetinstructie). The instruction aims to provide a uniform way of measuring to give an indicative usable area. However, differences in measurement outcomes may occur due to interpretation differences, rounding, or measurement limitations.

Floor plans

Brochure(s) and other documents

Virtual tour

ZonZone

Close

Recently viewed