slide
DIVA Makelaars Landelijk werkzaam, lokaal gespecialiseerd!
DIVA staat voor ‘Ster’:
wij willen dan ook uitblinken in optimale service en kwaliteit
1.jpg 2.jpg 3.jpg 4.jpg 5.jpg 6.jpg 7.jpg 8.jpg 9.jpg 10.jpg 11.jpg 12.jpg 13.jpg 14.jpg 15.jpg 16.jpg 17.jpg 18.jpg 19.jpg 20.jpg 21.jpg 22.jpg 23.jpg 24.jpg 25.jpg
Verkocht

Verkocht: Sluisstraat 90, 5462 CB Veghel

€ 375.000,- k.k.
Type object Appartement, galerijflat
Woonoppervlakte 86 m²
Aanvaarding In overleg
Status Verkocht

Notitie

Algemeen

Ben jij op zoek naar een fijn appartement aan de rand van het bruisende centrum van Veghel? Dan is Sluisstraat 90 precies wat je zoekt!

Op een aantrekkelijke locatie, aan de rand van het centrum, bevindt zich dit speelse en moderne 3-kamerappartement. Dit gezellige appartement is een uitstekende plek om je eigen stek te creëren. Het appartement is gelegen op de 2e en 3e verdieping en maakt... Meer informatie
  • Kenmerken

    Alle kenmerken
    Type object Appartement, galerijflat
    Bouwperiode 2006
    Status Verkocht
  • Locatie

Kenmerken

Overdracht
Referentienummer 00030
Vraagprijs € 375.000,- k.k.
Servicekosten € 205,-
Elektra € 41,50
Gas € 97,77
Water € 15,-
Status Verkocht
Aanvaarding In overleg
Laatste wijziging Woensdag 15 oktober 2025
Bouw
Type object Appartement, galerijflat
Woonlaag 3e woonlaag
Soort bouw Bestaande bouw
Toegankelijkheid Senioren
Bouwperiode 2006
Dakbedekking Dakpannen
Type dak Zadeldak
Isolatievormen Dakisolatie, Dubbel glas, HR-glas, Muurisolatie, Volledig geïsoleerd
Oppervlaktes en inhoud
Woonoppervlakte 86 m²
Woonkameroppervlakte 20,5 m²
Keukenoppervlakte 34,13 m²
Inhoud 308 m³
Oppervlakte externe bergruimte 4,4 m²
Oppervlakte gebouwgebonden buitenruimte 13 m²
Indeling
Aantal bouwlagen 2
Aantal kamers 2 (waarvan 1 slaapkamer)
Aantal badkamers 1 (en 1 apart toilet)
Locatie
Ligging Dichtbij openbaar vervoer, In centrum, Nabij school, Nabij snelweg, Vrij uitzicht
Energieverbruik
Energielabel A
CV ketel
CV ketel Intergas
Warmtebron Gas
Bouwjaar 2006
Combiketel Ja
Eigendom Eigendom
Uitrusting
Aantal parkeerplaatsen 1
Warm water CV-ketel
Verwarmingssysteem Centrale verwarming
Ventilatie methode Natuurlijke ventilatie
Badkamervoorzieningen Douche, Dubbele wastafel, Ligbad, Wasmachineaansluiting, Wastafelmeubel
Glasvezelaansluiting aanwezig Ja
Heeft schuur/berging Ja
Heeft een dakraam Ja
Heeft zonwering Ja
Vereniging van Eigenaren
Ingeschreven bij de KvK Ja
Jaarlijkse vergadering Ja
Periodieke bijdrage Ja
Reservefonds Ja
Meer jaren onderhoudsplan Ja
Onderhoudsverwachting Ja
Opstal verzekering Ja
Kadastrale gegevens
Kadastrale aanduiding Veghel H 1797
Omvang Appartementsrecht of complex
Eigendomsituatie Zie akte
Kadastrale aanduiding Meierijstad H 1797
Omvang Appartementsrecht of complex
Eigendomsituatie Zie akte
Kadastrale aanduiding Veghel H 1797
Omvang Appartementsrecht of complex
Eigendomsituatie Zie akte

Beschrijving

Ben jij op zoek naar een fijn appartement aan de rand van het bruisende centrum van Veghel? Dan is Sluisstraat 90 precies wat je zoekt!

Op een aantrekkelijke locatie, aan de rand van het centrum, bevindt zich dit speelse en moderne 3-kamerappartement. Dit gezellige appartement is een uitstekende plek om je eigen stek te creëren. Het appartement is gelegen op de 2e en 3e verdieping en maakt onderdeel uit van de Rembrandtboulevard – een moderne woonwijk die in 2006 is ontwikkeld met oog voor kwaliteit, comfort en bereikbaarheid. Dit appartement is uitermate geschikt voor zowel starters als ouderen die comfortabel en gelijkvloers willen wonen. Dankzij de modernisering in 2022 voldoet het aan de hedendaagse woonwensen: instapklaar, onderhoudsarm en praktisch ingedeeld. Voor ouderen is de aanwezigheid van een lift, het gelijkvloerse woonprogramma en de goede bereikbaarheid een groot pluspunt. Starters vinden hier een moderne, sfeervolle woning op een toplocatie dicht bij het centrum.

Indeling

Via de gezamenlijke entree, voorzien van een bellentableau, brievenbussen en zowel een trap als een lift, bereik je op de eerste verdieping het appartement. Zowel een trap als een lift, maakt dit appartement ideaal voor jong én oud!

Via de galerij aan de achterzijde van het complex is het appartement te bereiken. Vanuit de entree/hal zijn de meterkast, toiletruimte, berging met c.v.-opstelling, een slaapkamer met aangrenzende badkamer en de lichte woonkamer met open keuken bereikbaar.
De slaapkamer aan de achterzijde is ca. 12 m² groot en heeft directe toegang tot de badkamer met bad/douche-combinatie, wastafel en wasmachineaansluiting. Net als de hal en woonkamer is deze kamer afgewerkt met een laminaatvloer in lichte tint.

Eerste verdieping

De woonkamer (ca. 30 m²) aan de voorzijde is heerlijk licht en biedt via de vide een speelse verbinding met de bovenverdieping. De open keuken is uitgerust met een gaskookplaat, afzuigkap, vaatwasser en hetelucht-oven.

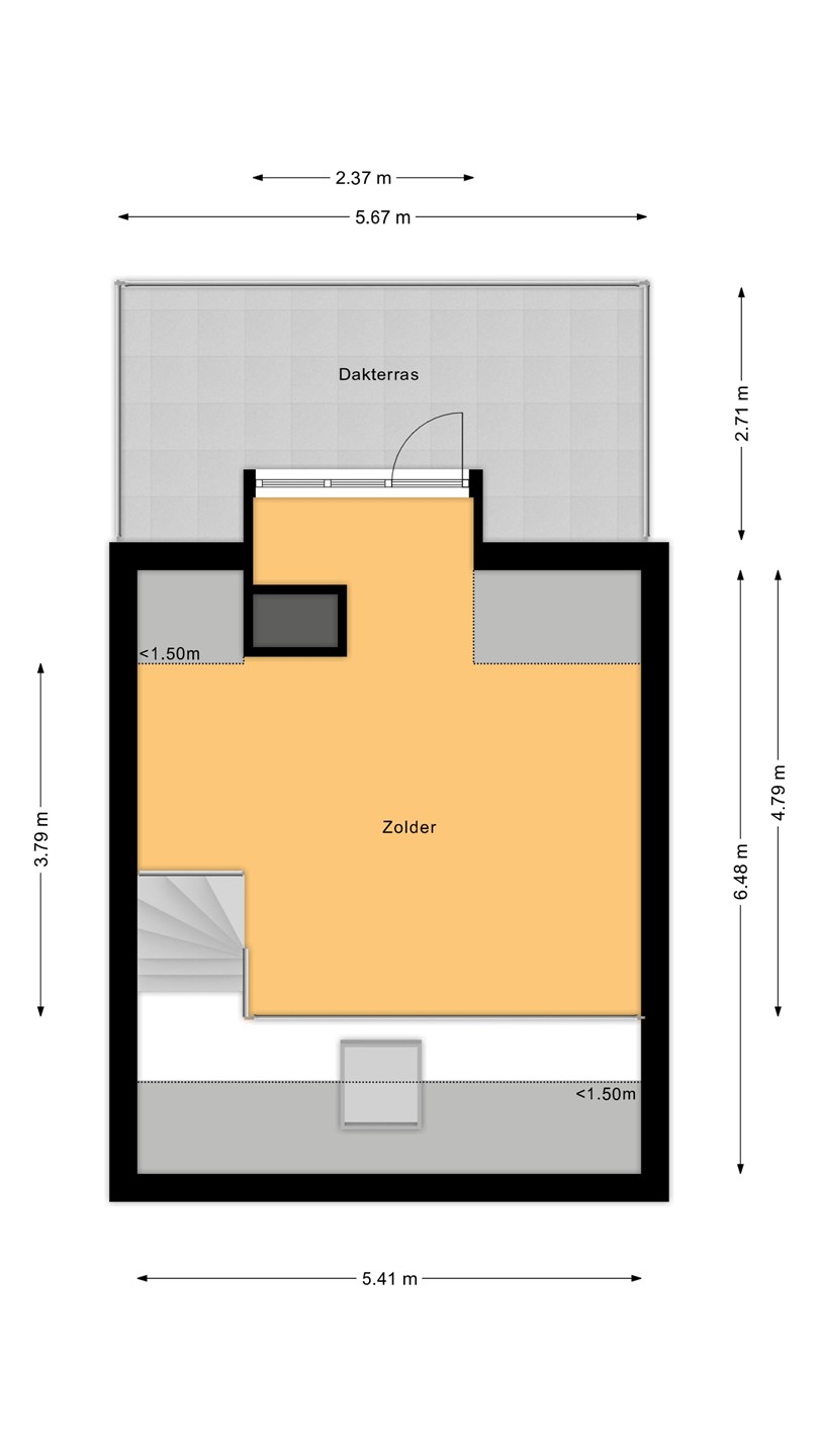
Een vaste trap in de woonkamer leidt naar de entresol, een multifunctionele ruimte van ca. 25 m². Ideaal als extra slaapkamer, werkplek of zitkamer. Vanuit hier is tevens het ruime dakterras van ca. 13 m² toegankelijk – een heerlijke plek om buiten te genieten.

Balkon

Het appartement beschikt over een heerlijk balkon waar je in alle rust kunt ontspannen. Gelegen op een gunstige ligging ten opzichte van de zon is het hier volop genieten – of je nu 's ochtends rustig een kop koffie drinkt of 's avonds tot laat buiten zit met een goed glas wijn. Het balkon is ruim genoeg voor een zitje of kleine loungeset, waardoor je er echt een verlengstuk van je woonkamer van kunt maken.

Bijzonderheden

* Bouwjaar: 2006 – dus volledig geïsoleerd en energiezuinig

* Vide zorgt voor extra licht en ruimtegevoel

* Eigen parkeerplaats + berging

* Ruim balkon aan de achterzijde met vrij uitzicht

* Uitstekende bereikbaarheid en ligging op loopafstand van het centrum

* In 2022 gemoderniseerd en stijlvol afgewerkt

Plattegronden

Sluiten

Recent bekeken