slide
Outstanding Agents. Outstanding Results. DIVA staat voor ‘Ster’: wij willen dan ook uitblinken in optimale service en kwaliteit
Sold

Sold: Da Costastraat 18A, 3751 GC Bunschoten-Spakenburg

€470,000
Type of residence Apartment, upstairs apartment, apartment
Plot size 163 m²
Liveable area 125.3 m²
Acceptance By consultation
Status Sold

Note

General

Royaal wonen verdeeld over meerdere woonlagen, met ruimte, comfort en flexibiliteit als uitgangspunt. Deze woning beslaat drie woonlagen en biedt een verrassend ruime en prettige leefomgeving die zich onderscheidt door zijn indeling en mogelijkheden.

De nieuwe keuken vormt het centrale punt van de woning en sluit mooi aan op de leefruimte. Dankzij de vloerverwarming is het hier het hele jaar... More info
  • Features

    All characteristics
    Type of residence Apartment, upstairs apartment, apartment
    Construction period 1970
    Status Sold
  • Location

Features

Offer
Reference number 07473
Asking price €470,000
Service costs €1
Upholstered Not furnished
Furnishing Unfurnished
Status Sold
Acceptance By consultation
Last updated 28 March 2026
Construction
Type of residence Apartment, upstairs apartment, apartment
Floor 2nd floor
Type of construction Existing estate
Construction period 1970
Roof materials Tiles
Rooftype Front gable
Isolations Cavity wall, Insulated glazing, Roof
Surfaces and content
Plot size 163 m²
Floor Surface 125.3 m²
Living area 19.71 m²
Kitchen area 14.88 m²
Content 379 m³
External surface area storage rooms 5.2 m²
External surface area 17.1 m²
Balcony 16.66 m²
Layout
Number of floors 4
Number of rooms 6 (of which 5 bedrooms)
Number of bathrooms 1 (and 1 separate toilet)
Energy consumption
Energy certificate B
Boiler
Heating source Gas
Combiboiler Yes
Boiler ownership Owned
Features
Number of parking spaces 1
Water heating Central heating system
Heating Central heating, Partial Floor heating
Bathroom facilities Shower, Sink, Toilet
Has a balcony Yes
Has an internet connection Yes
Has a storage room Yes
Has a skylight Yes
Cadastral informations
Cadastral designation Bunschoten K 2274
Range Condominium
Ownership Full ownership
Index number A1

Description

Royaal wonen verdeeld over meerdere woonlagen, met ruimte, comfort en flexibiliteit als uitgangspunt. Deze woning beslaat drie woonlagen en biedt een verrassend ruime en prettige leefomgeving die zich onderscheidt door zijn indeling en mogelijkheden.

De nieuwe keuken vormt het centrale punt van de woning en sluit mooi aan op de leefruimte. Dankzij de vloerverwarming is het hier het hele jaar door aangenaam wonen. Met maar liefst vijf slaapkamers is er volop ruimte voor een groot gezin, werken aan huis of het combineren van wonen en hobby’s. Elke woonlaag heeft zijn eigen karakter, wat zorgt voor een fijne balans tussen samen leven en privacy.

Het dakterras biedt een heerlijke buitenplek waar je in alle rust kunt genieten van zon en ruimte. Daarnaast beschikt de woning over een eigen berging en een parkeerplek, waardoor ook praktisch gezien aan alles is gedacht.

First floor

Via de overloop bereikt u het separate toilet en de garderobekast. De verdieping beschikt over een ruime, lichte woonkamer met grote raampartijen en directe toegang tot het zonnige balkon. Via een trap vanaf het terras bereikt u de tuin, met aansluitend een pad naar de berging. Aangrenzend aan de woonkamer bevindt zich de open keuken, die praktisch is ingericht en in open verbinding staat met het leefgedeelte. De goede maatvoering en prettige lichtinval zorgen hier voor een aangename woonverdieping met een fijne balans tussen wonen en koken.

Second floor

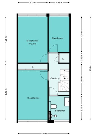
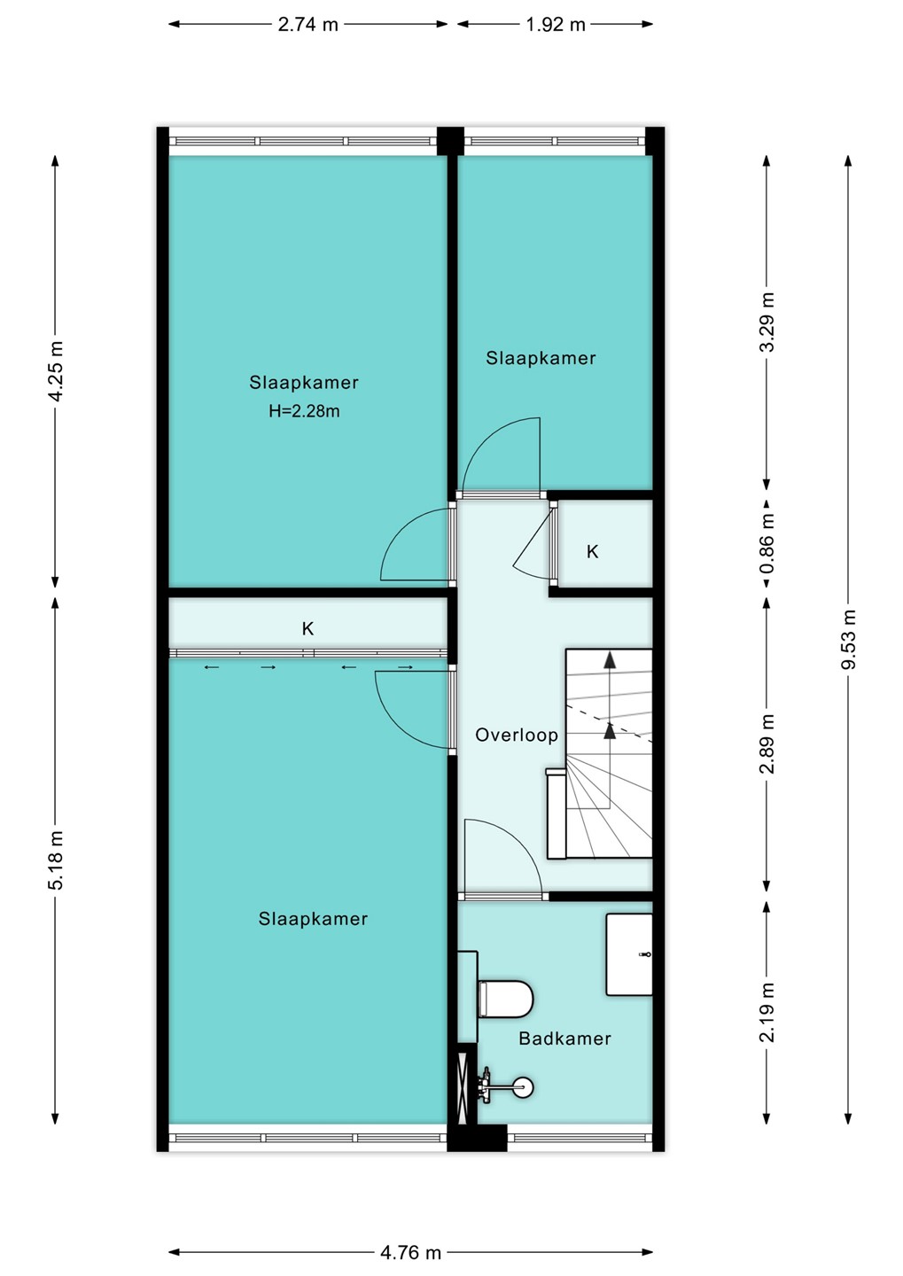
Via de overloop zijn alle vertrekken op deze verdieping bereikbaar. De verdieping beschikt over drie slaapkamers van verschillende afmetingen, waardoor deze ruimte zich uitstekend leent voor een gezin, thuiswerken of logees. De badkamer is praktisch ingericht en voorzien van douche, wastafel en toilet. Daarnaast is er bergruimte aanwezig, ideaal voor extra opslag. Dankzij de rechte gevels zijn de kamers efficiënt in te delen en is er sprake van een prettige lichtinval.

Other floors

Via de overloop bereikt u op deze verdieping twee volwaardige slaapkamers, beide met een prettige lichtinval dankzij de dakramen. De kamers zijn goed van formaat en multifunctioneel inzetbaar, bijvoorbeeld als slaap-, werk- of hobbyruimte. De praktische indeling en extra bergruimte achter de knieschotten maken deze verdieping bijzonder functioneel.

Balcony

Het ruime balkon is gelegen op het westen en vormt een heerlijke plek om tot in de avond van de zon te genieten. Vanuit de woonkamer heeft u direct toegang tot dit buitenverblijf

Floor plans

Brochure(s) and other documents

ZonZone

Close

Recently viewed