slide
Outstanding Agents. Outstanding Results. DIVA staat voor ‘Ster’: wij willen dan ook uitblinken in optimale service en kwaliteit
New for sale

For sale: Kolkplein 4, 3751 EE Bunschoten-Spakenburg

€1,150,000
Type of residence Retail space
Plot size 305 m²
Total floor area 248 m²
In units from 248 m²
Acceptance By consultation
Status New for sale

Note

General

Zichtlocatie met potentie – Kolkplein 4, Spakenburg

Een pand dat iedereen kent: WR Bike Shop aan het Kolkplein. En dat is niet voor niets. Dankzij de prominente ligging op deze zichtlocatie valt dit pand simpelweg niet te missen. Of je nu voorbijrijdt, wandelt of even parkeert voor een snelle boodschap, je blik wordt getrokken naar dit breed opgezette winkelpand.

Met een totaaloppervlakte... More info
  • Features

    All characteristics
    Type of residence Retail space
    Construction period 1920
    Status New for sale
  • Location

Features

Offer
Reference number 07439
Asking price €1,150,000
Upholstered Not furnished
Furnishing Unfurnished
Status New for sale
Acceptance By consultation
Construction
Type of residence Retail space
Type of construction Existing estate
Construction period 1920
Surfaces and content
Plot size 305 m²
Floor area 248 m²
In units from 248 m²
Sales area 228 m²
Layout
Number of floors 2
Outdoors
Local amenities Bank at 1000 meters to 1500 meters, Cashmachine at 1000 meters to 1500 meters, Recreation at 1500 meters to 2000 meters, Restaurant at 1000 meters to 1500 meters, Shop within 500 meters, Supermarket at 500 meters to 1000 meters
Accessibility Busstop within 500 meters, Busjunction at 5000 meters or more, Metrostop at 5000 meters or more, Metrojunction at 5000 meters or more, Railway station at 5000 meters or more, Trainstop at 5000 meters or more, Highway exit at 4000 meters to 5000 meters, Tramstop at 5000 meters or more, Tramjunction at 5000 meters or more
Energy consumption
Energy certificate A+
Features
Has a showroom Yes
Cadastral informations
Cadastral designation Bunschoten K 4451
Area 610 m²
Range Condominium
Ownership Full ownership
Cadastral designation Bunschoten K 4451
Area 610 m²
Range Condominium
Ownership Full ownership

Description

Zichtlocatie met potentie – Kolkplein 4, Spakenburg

Een pand dat iedereen kent: WR Bike Shop aan het Kolkplein. En dat is niet voor niets. Dankzij de prominente ligging op deze zichtlocatie valt dit pand simpelweg niet te missen. Of je nu voorbijrijdt, wandelt of even parkeert voor een snelle boodschap, je blik wordt getrokken naar dit breed opgezette winkelpand.

Met een totaaloppervlakte van 316 m², waarvan 248 m² bedrijfsruimte, biedt dit pand volop mogelijkheden. De huidige indeling, al jarenlang de thuisbasis van een succesvolle fietsenzaak, laat goed zien hoeveel ruimte en flexibiliteit er is. Denk aan een woonwinkel, showroom, kantoor met ontvangstfunctie of een publieksgerichte dienstverlening – alles kan. De open opzet, het daglicht en de centrale ligging maken het een uitnodigende plek voor elk concept.

In 2017 is het pand grondig uitgebouwd en gerenoveerd. Alles is aangepakt: van vloeren en wanden tot installaties en glas. Het resultaat is een frisse, eigentijdse uitstraling én een energielabel A+ – klaar voor de toekomst.

Boven de winkel bevinden zich twee zelfstandige appartementen, beide verhuurd. Een solide basis voor een mooie huurinkomst en daarmee ook een interessant beleggingsobject. Of je nu zelf wilt ondernemen of zoekt naar een pand met goed rendement: hier kan het allebei.

Kolkplein 4 ligt precies goed: zichtbaar, bereikbaar en herkenbaar. Midden in Spakenburg, maar net buiten de drukte van het centrum. Parkeren kan eenvoudig in de directe omgeving en klanten weten je moeiteloos te vinden.

Benieuwd naar de mogelijkheden?
Bel gerust voor meer informatie of een bezichtiging – dan laten we je graag alles zien.

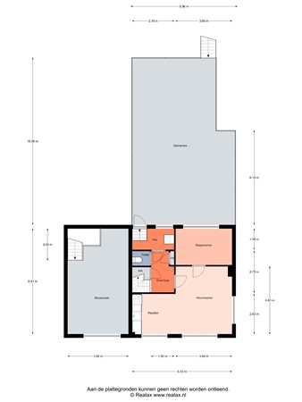
Layout

Bij binnenkomst via de voorzijde betreed je de winkelruimte van circa 10,79 meter breed en 15,39 meter diep. Deze royale ruimte is voorzien van grote raampartijen die zorgen voor veel daglicht en een uitstekende zichtbaarheid vanaf de straat. De winkelruimte biedt talloze mogelijkheden voor detailhandel, showroom of dienstverlening. In deze ruimte bevinden zich tevens de meterkast (MK) en een toiletruimte (WC) met fonteintje, gelegen nabij de trapopgang.

Aan de rechterzijde van de winkelruimte bevindt zich het kantoor (circa 2,37 x 4,49 m), dat direct vanuit de winkelruimte toegankelijk is. Dit kantoor is ideaal voor administratieve werkzaamheden of klantontvangst en biedt, dankzij de afgescheiden ligging, rust en privacy ten opzichte van de overige bedrijfsruimten.

Achter de winkelruimte bevinden zich twee aaneengeschakelde werkplaatsen, beide praktisch van opzet en geschikt voor onder meer opslag, productie of assemblage.

First floor

De showroom op de eerste verdieping is bereikbaar via een vaste trap vanuit de winkelruimte op de begane grond. Deze ruimte heeft een oppervlakte van circa 4,00 x 6,90 meter en is dankzij de grote ramen aan de voorzijde heerlijk licht.

De showroom is ideaal voor presentatie en expositie en vormt een uitstekende aanvulling op de commerciële ruimte beneden. De open indeling maakt de ruimte flexibel inzetbaar en eenvoudig aan te passen aan verschillende doeleinden, zoals een galerie, productpresentatie of ontvangstruimte.

De ruimte beschikt over een strakke afwerking en een prettige hoogte, wat bijdraagt aan een ruimtelijk gevoel. Via de interne trap is er een directe verbinding met de winkel, wat de samenhang tussen de begane grond en verdieping versterkt — ideaal voor bedrijven die winkel en showroom willen combineren.

Floor plans

Brochure(s) and other documents

ZonZone

Close

Recently viewed