slide
Outstanding Agents. Outstanding Results. DIVA staat voor ‘Ster’: wij willen dan ook uitblinken in optimale service en kwaliteit
Sold subject to conditions

Sold subject to conditions: Sterreschans 112, 2342 BN Oegstgeest

€1,395,000
Type of residence House, mansion, semi-detached house
Plot size 353 m²
Liveable area 177 m²
Acceptance By consultation
Status Sold subject to conditions

Note

General

Even wegdromen.... dat mag, want degene die deze prachtige half vrijstaande villa koopt, heeft één van de ‘kroonjuwelen’ van Oegstgeest aan de Rijn in handen. Dankzij de oude Oegstgeester architectuur, geïnspireerd op villa's rond het Wilhelminapark, straalt de woning (gebouwd in 2020) charme uit.

Kosten noch moeite zijn gespaard om de luxe woonbeleving op een hoog niveau te brengen. Modern... More info
  • Features

    All characteristics
    Type of residence House, mansion, semi-detached house
    Construction period 2020
    Status Sold subject to conditions
  • Location

Features

Offer
Reference number 00885
Asking price €1,395,000
Status Sold subject to conditions
Acceptance By consultation
Last updated 26 January 2026
Construction
Type of residence House, mansion, semi-detached house
Type of construction Existing estate
Construction period 2020
Roof materials Tiles
Rooftype Composite
Isolations Full, Roof, Triple glazing
Surfaces and content
Plot size 353 m²
Floor Surface 177 m²
Content 685 m³
Surface area other inner rooms 16 m²
External surface area 45 m²
Layout
Number of floors 3
Number of rooms 5 (of which 4 bedrooms)
Number of bathrooms 1 (and 2 separate toilets)
Outdoors
Location Near public transport, Near school, On a quiet street, On waterway, Residential area
Garden
Type Back yard
Main garden Yes
Orientation North west
Has a backyard entrance Yes
Condition Beautifully landscaped
Garden 2 - Type Front yard
Garden 2 - Condition Normal
Garden 3 - Type Side yard
Garden 3 - Condition Normal
Energy consumption
Energy certificate A
Features
Number of parking spaces 2
Heating Floor heating, Heat pump, Heat recovery system
Kitchen facilities Built-in equipment, Cooking island
Bathroom facilities Bath, Sink, Underfloorheating, Walkin shower, Washbasin furniture
Parking Attached stone
Has a balcony Yes
Garden available Yes
Has a garage Yes
Has solar panels Yes
Cadastral informations
Cadastral designation Oegstgeest B 5182
Area 353 m²
Range Entire lot
Ownership Full ownership

Description

Even wegdromen.... dat mag, want degene die deze prachtige half vrijstaande villa koopt, heeft één van de ‘kroonjuwelen’ van Oegstgeest aan de Rijn in handen. Dankzij de oude Oegstgeester architectuur, geïnspireerd op villa's rond het Wilhelminapark, straalt de woning (gebouwd in 2020) charme uit.

Kosten noch moeite zijn gespaard om de luxe woonbeleving op een hoog niveau te brengen. Modern, ruim, licht, energiezuinig, achtertuin op het noordwesten aan vaarwater met eigen aanlegsteiger met botenlift op een ruim perceel van 353 m². Deze fraaie woning heeft parkeergelegenheid (2 plaatsen) op eigen terrein, een garage, 4 ruime (slaap)kamers, een moderne badkamer, open keuken met kookeiland, 23 zonnepanelen en vloerverwarming op de begane grond en eerste verdieping.

Gelegen in een rustige straat in het hart van Nieuw-Rhijngeest in deze kindvriendelijke en nieuwe woonwijk van Oegstgeest (aan de Rijn). Nabij de woning is op loopafstand basisschool Het Dok met kinderopvang, park Landskroon, een winkelplein met o.a. een supermarkt, bakker, snackbar, kapper en drogisterij, maar ook het centrum van Oegstgeest, Leiden en de stranden en duinen van Katwijk, Noordwijk en Wassenaar zijn dichtbij. Dankzij de ideale ligging vlakbij de A44 ben je snel op weg naar Den Haag of Schiphol/Amsterdam.

Layout

Bij binnenkomst aan de zijkant van de woning komt u in de hal met aan de linkerzijde de meterkast en een kast voor de warmtepomp en aan de rechterzijde een modern toilet met fonteintje. De riante woonkamer heeft een handige trapkast en aan de voorzijde een sfeervolle erker met veel glas en aan de achterzijde is er de open keuken. Deze luxe keuken heeft een kookeiland en is van alle gemakken voorzien (o.a. koel-/vriescombinatie, inductie kookplaat, oven, wijnkoelkast en vaatwasser).

Ook zijn er aan de achterzijde openslaande deuren naar de tuin en een deur om van binnenuit naar de garage te gaan. De garage heeft aan de voorzijde openslaande deuren en aan de achterzijde is ook een deur. Verder is er een handige kastenwand met daarin verwerkt de aansluiting voor de wasmachine en droger.

De gehele begane grond heeft vloerverwarming en de woonkamer is voorzien van fraaie houten vloerdelen.

First floor

Overloop met aparte modern toilet. Verder zijn er op deze verdieping drie goed formaat (slaap)kamers. Eén van de slaapkamers aan de voorzijde heeft nog een gezellig balkon. De luxe, moderne badkamer is fraai afgewerkt en heeft een ruime inloopdouche, een vrijstaand bad en een wastafel met meubel. Deze gehele verdieping is voorzien van houten vloerdelen en vloerverwarming.

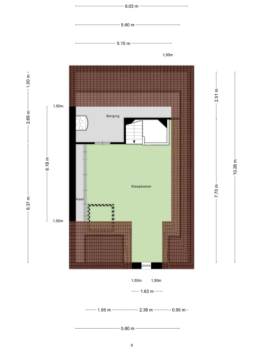
Second floor

De huidige bewoners hebben hier nu één grote open slaapkamer van gemaakt met een stijlvolle kastenwand. Verder is er een zeer ruime berging/technische ruimte waar een tweede aansluiting voor de wasmachine zit. Ook deze verdieping heeft weer houten vloerdelen.

Garden

Aan de voorzijde is een knusse voortuin waar u gedurende dag heerlijk kunt genieten van het zonnetje. Aan de zijkant is er ruimte om twee auto’s te parkeren en dan is er ook nog genoeg plek voor (bak-)fietsen. Langs het huis gaat u via een poort naar de achtertuin.

De diepe en fleurige achtertuin heeft -aan het huis vast- over de gehele breedte een sfeervolle overkapping met buitenhaard. Achter in de tuin is ook een flink terras met eigen aanlegsteiger met botenlift. Vanaf hier vaart u heerlijk de Oude Rijn op... en verder. Het centrum van Leiden, de Kagerplassen of via het Oegstgeesterkanaal verder tot aan de Noordzeekust. Je raakt nooit uitgekeken onderweg met wisselende vergezichten en leuke restaurantjes die je 'pad' kruisen.

Details

- Gebruiksoppervlakte wonen 177 m²
- Overige inpandige ruimte 16 m²
- Gebouw gebonden buitenruimte 45 m²
- Externe bergruimte 0 m²
- Inhoud woning 685 m³
- Perceel 353 m²
- Bouwjaar 2020
- Moderne en hoogwaardige afwerking
- Volledig geïsoleerd
- 23 zonnepanelen
- Energielabel A
- Twee parkeerplaatsen op eigen terrein
- Diepe achtertuin (ca 25 m) met aanlegsteiger (inclusief botenlift) aan vaarwater
- Oplevering in overleg

Floor plans

ZonZone

Close

Recently viewed