slide
Outstanding Agents. Outstanding Results. DIVA staat voor ‘Ster’: wij willen dan ook uitblinken in optimale service en kwaliteit
Sold

Sold: Bonkenburg 16, 1911 CJ Uitgeest

€525,000
Type of residence House, single-family house, detached house
Plot size 245 m²
Liveable area 118.3 m²
Acceptance By consultation
Status Sold

Note

General

Vrijstaande woning met karakter, praktijkruimte én parkeergelegenheid – midden in het sfeervolle oude dorp van Uitgeest!

Wonen én werken combineren op een toplocatie? Dat kan aan Bonkenburg 16! Deze charmante vrijstaande woning ligt in het geliefde oude dorpshart van Uitgeest, op loopafstand van winkels, scholen, horeca en openbaar vervoer. Met zijn verrassende indeling, authentieke details... More info
  • Features

    All characteristics
    Type of residence House, single-family house, detached house
    Construction period 1910
    Status Sold
  • Location

Features

Offer
Asking price €525,000
Status Sold
Acceptance By consultation
Last updated 19 November 2025
Construction
Type of residence House, single-family house, detached house
Type of construction Existing estate
Construction period 1910
Roof materials Tiles
Rooftype Front gable
Isolations Largely insulated glazing
Surfaces and content
Plot size 245 m²
Floor Surface 118.3 m²
Living area 28.9 m²
Kitchen area 16.52 m²
Content 512 m³
Surface area other inner rooms 9.2 m²
Layout
Number of floors 2
Number of rooms 4 (of which 3 bedrooms)
Number of bathrooms 2
Garden
Type Back yard
Orientation East
Condition Beautifully landscaped
Energy consumption
Energy certificate E
Boiler
Type of boiler Remeha
Heating source Gas
Year of manufacture 2001
Combiboiler Yes
Boiler ownership Owned
Features
Water heating Central heating system
Heating Central heating
Ventilation method Mechanical ventilation, Natural ventilation
Bathroom facilities Bathroom 1 Shower, Sink, Toilet
Bathroom facilities Bathroom 2 Bath, Shower
Has AC Yes
Garden available Yes
Has a storage room Yes
Has ventilation Yes
Cadastral informations
Cadastral designation Uitgeest B 8743
Area 245 m²

Description

Vrijstaande woning met karakter, praktijkruimte én parkeergelegenheid – midden in het sfeervolle oude dorp van Uitgeest!

Wonen én werken combineren op een toplocatie? Dat kan aan Bonkenburg 16! Deze charmante vrijstaande woning ligt in het geliefde oude dorpshart van Uitgeest, op loopafstand van winkels, scholen, horeca en openbaar vervoer. Met zijn verrassende indeling, authentieke details én multifunctionele praktijkruimte aan huis is dit een unieke kans voor wie op zoek is naar karakter, comfort en flexibiliteit.

Indeling
Je komt binnen via de entree met in de hal de toegang naar het toilet en deur naar de gezellige woonkamer. Aan de voorzijde is een sfeervol zitgedeelte met erker en houtkachel – perfect voor knusse avonden. De mooie houten vloer zorgt voor een warme uitstraling. Via openslaande deuren bereik je de ruime, moderne woonkeuken, voorzien van diverse inbouwapparatuur en volop werkruimte.
Op de begane grond bevindt zich verder een nette badkamer met douche, toilet en wastafel, evenals een royale (slaap)kamer met airconditioning en openslaande deuren naar de tuin. Ideaal als master bedroom op de begane grond, of als werkkamer met uitzicht op het groen.
Een absolute meerwaarde is de multifunctionele ruimte die uitstekend geschikt is als praktijkruimte of kantoor aan huis. Dankzij de lichtkoepels komt hier veel daglicht binnen, wat zorgt voor een fijne werkomgeving. De multifunctionele ruimte heeft een eigen opgang op het erf.

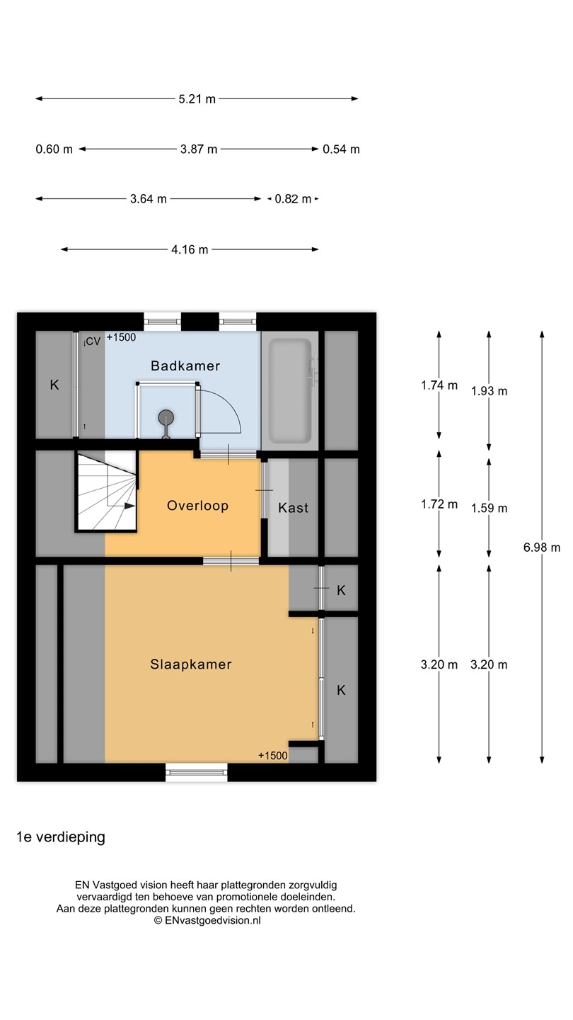
Eerste verdieping
Via een vaste trap bereik je de verdieping, waar zich een zeer ruime slaapkamer met bergruimte bevindt en met aangrenzende eigen badkamer. Deze is uitgerust met vloerverwarming, een douche en ligbad ( whirlpool )– een heerlijke privéverdieping voor jezelf of gasten. Middels de badkamer is toegang tot het dakterras.

Buitenruimte
De woning beschikt over een brede voortuin met parkeergelegenheid op eigen terrein – een zeldzaamheid in het oude dorp! De achtertuin is verzorgd aangelegd, ligt op het Oosten en biedt een fijne overkapping. Hier geniet je in alle rust van een kop koffie in de zon of een ontspannen avond buiten. In de aangebouwde berging is de wasmachineaansluiting.

Locatie
Bonkenburg 16 ligt in een gezellige straat in het oude centrum van Uitgeest. Een dorp met een rijke geschiedenis, gezellige dorpskern en uitstekende verbindingen. Station Uitgeest ligt op korte afstand en biedt snelle verbindingen richting Alkmaar, Haarlem en Amsterdam. Ook het Uitgeestermeer en diverse natuurgebieden liggen om de hoek – perfect voor watersporters en wandelaars.

Bijzonderheden:
• Vrijstaande woning in het oude dorp van Uitgeest
• Praktijk-/kantoorruimte aanwezig
• Twee slaapkamers maar de mogelijkheid om van de praktijkruimte een derde slaapkamer te realiseren
• Tuin op het oosten met overkapping
• Parkeergelegenheid op eigen terrein
• Inhoud ca. 512 m³
• Energielabel E

Op zoek naar een karaktervolle woning met de mogelijkheid om werk en privé te combineren? Deze woning biedt het allemaal. Maak snel een afspraak voor een bezichtiging!

Floor plans

ZonZone

Close

Recently viewed