slide
Outstanding Agents. Outstanding Results. DIVA staat voor ‘Ster’: wij willen dan ook uitblinken in optimale service en kwaliteit
Under offer

Under offer: Postjesweg 138B, 1061 AX Amsterdam

€2,325 /mo
Type of residence Apartment, gallery flat, apartment
Liveable area 50 m²
Acceptance Immediately
Status Under offer

Note

General

Neat two-room apartment (living room plus bedroom) totaling 50m² in a modern complex.

The apartment is rented furnished and is immediately available. Minimum rental period is one year.

The apartment has bright finishes. It features an open-plan kitchen with various appliances, including an oven, ceramic hob, and dishwasher. There's also a built-in refrigerator and ample cupboard space. Th... More info
  • Features

    All characteristics
    Type of residence Apartment, gallery flat, apartment
    Construction period 2009
    Status Under offer
  • Location

Features

Offer
Reference number 05423
Asking price €2,325 per month (furnished, upholstered)
Deposit €4,500
Service costs €75 per month
Furnishing Yes
Furnishing Furnished
Status Under offer
Acceptance Immediately
Last updated 28 November 2025
Construction
Type of residence Apartment, gallery flat, apartment
Floor 4th floor
Type of construction Existing estate
Accessibility People with disabilities, Seniors
Construction period 2009
Certifications Energy performance advice
Isolations Cavity wall, Cracking seal, Floor, Full, HR glazing, Insulated glazing, Wall
Surfaces and content
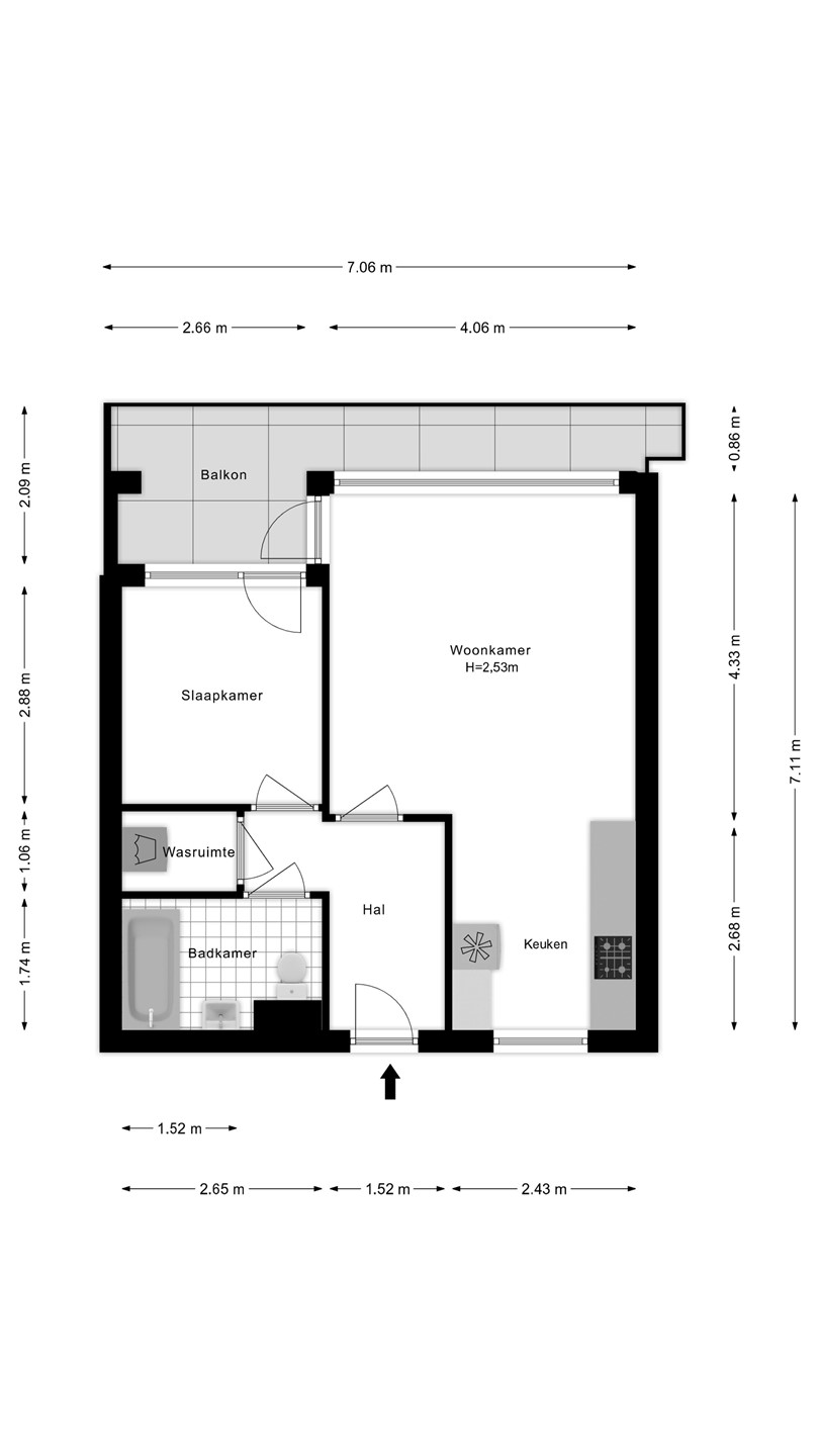
Floor Surface 50 m²
Content 160 m³
Balcony 5.1 m²
Layout
Number of floors 1
Number of rooms 2 (of which 1 bedroom)
Number of bathrooms 1
Outdoors
Location Near highway, Near public transport, Near school, Residential area
Energy consumption
Energy certificate A+
Features
Number of parking spaces 1
Water heating District heating
Heating District heating
Ventilation method Mechanical ventilation
Bathroom facilities Bath, Double sink, Shower, Sink, Toilet, Washbasin furniture
Parking Parking lot
Has a balcony Yes
Has an elevator Yes
Has fibre optical cable Yes
Has ventilation Yes
Association of owners
Registered at Chamber of Commerce Yes
Annual meeting Yes
Periodic contribution Yes
Long term maintenance plan Yes
Home insurance Yes
Cadastral informations
Cadastral designation

Description

Neat two-room apartment (living room plus bedroom) totaling 50m² in a modern complex.

The apartment is rented furnished and is immediately available. Minimum rental period is one year.

The apartment has bright finishes. It features an open-plan kitchen with various appliances, including an oven, ceramic hob, and dishwasher. There's also a built-in refrigerator and ample cupboard space. The balcony is accessible from both the living room and the bedroom, offering unobstructed views of the surrounding area.

Upon entering the complex, you'll be welcomed by a spacious reception hall with a high ceiling. The elevator takes you to the fourth floor. A small gallery at the rear provides access to the apartment.

Entrance to the apartment: an L-shaped hall with various cupboards. The living room is adjacent to the kitchen. The living room provides access to the south-facing balcony, guaranteeing sunshine!

The bathroom is also accessible from the hall. It is spacious and features a wall-hung toilet, a beautiful double vanity, a designer radiator, and a bathtub.

The house is fully furnished and ready to move into.

SPECIAL FEATURES:

+ Living area approximately 50 m².
+ Rental price excluding gas, water, and electricity.
+ Service costs €75 per month.
+ 1 living room (including open-plan kitchen) and 1 bedroom.
+ Spacious bathroom with bathtub.
+ 5 m² south-facing terrace.
+ Well-maintained complex.
+ Elevator access.
+ A+ energy label.
+ Private parking space on a gated property.
+ Shared covered bicycle shed.
+ Fully furnished.

Floor plans

ZonZone

Close

Recently viewed