slide
Outstanding Agents. Outstanding Results. DIVA staat voor ‘Ster’: wij willen dan ook uitblinken in optimale service en kwaliteit
Sold

Sold: Sweelinckplantsoen 38, 1323 MT Almere

€425,000
Type of residence House, single-family house, terraced house
Plot size 127 m²
Liveable area 110 m²
Acceptance By consultation
Status Sold

Note

General

Deze ruime tussenwoning van 110 m2 met 4 slaapkamers wordt aangeboden middels een bieden vanaf prijs.

Ontdek de levendige Muziekwijk, een populaire en kindvriendelijke buurt in Almere-Stad. Deze verrassend ruime woning gelegen aan een autoluwe straat met uitsluitend bestemmingsverkeer biedt alles wat je nodig hebt voor comfortabel wonen. De gewilde Muziekwijk staat bekend om haar centrale li... More info
  • Features

    All characteristics
    Type of residence House, single-family house, terraced house
    Construction period 1990
    Status Sold
  • Location

Features

Offer
Reference number 60
Asking price €425,000
Status Sold
Acceptance By consultation
Last updated 28 October 2025
Construction
Type of residence House, single-family house, terraced house
Type of construction Existing estate
Construction period 1990
Roof materials Tiles
Rooftype Front gable
Isolations Insulated glazing
Surfaces and content
Plot size 127 m²
Floor Surface 110 m²
Content 386 m³
External surface area storage rooms 6 m²
Layout
Number of floors 3
Number of rooms 5 (of which 4 bedrooms)
Number of bathrooms 1 (and 1 separate toilet)
Garden
Type Front yard
Orientation North west
Condition Normal
Garden 2 - Type Back yard
Garden 2 - Main garden Yes
Garden 2 - Orientation South east
Garden 2 - Has a backyard entrance Yes
Garden 2 - Condition Beautifully landscaped
Energy consumption
Energy certificate A
Features
Water heating District heating
Heating District heating
Ventilation method Mechanical ventilation
Kitchen facilities Built-in equipment
Bathroom facilities Shower, Sink, Toilet, Washbasin furniture
Has fibre optical cable Yes
Garden available Yes
Has a storage room Yes
Has a skylight Yes
Has ventilation Yes
Cadastral informations
Cadastral designation Almere K 2893
Area 127 m²
Range Entire lot
Ownership Full ownership

Description

Deze ruime tussenwoning van 110 m2 met 4 slaapkamers wordt aangeboden middels een bieden vanaf prijs.

Ontdek de levendige Muziekwijk, een populaire en kindvriendelijke buurt in Almere-Stad. Deze verrassend ruime woning gelegen aan een autoluwe straat met uitsluitend bestemmingsverkeer biedt alles wat je nodig hebt voor comfortabel wonen. De gewilde Muziekwijk staat bekend om haar centrale ligging, groene uitstraling en kindvriendelijke opzet. Alle dagelijkse voorzieningen bevinden zich op loopafstand, waaronder het NS-station met winkelcentrum, supermarkt en gezondheidscentrum. Voor kinderen is er volop speelgelegenheid: direct in de straat bevindt zich een speeltuin en ook scholen, sportfaciliteiten en het Beatrixpark liggen in de directe nabijheid. Met het stadshart van Almere op slechts 10 minuten fietsen en uitstekende verbindingen naar Amsterdam, Lelystad en Utrecht, is dit een perfecte locatie voor gezinnen en forenzen.

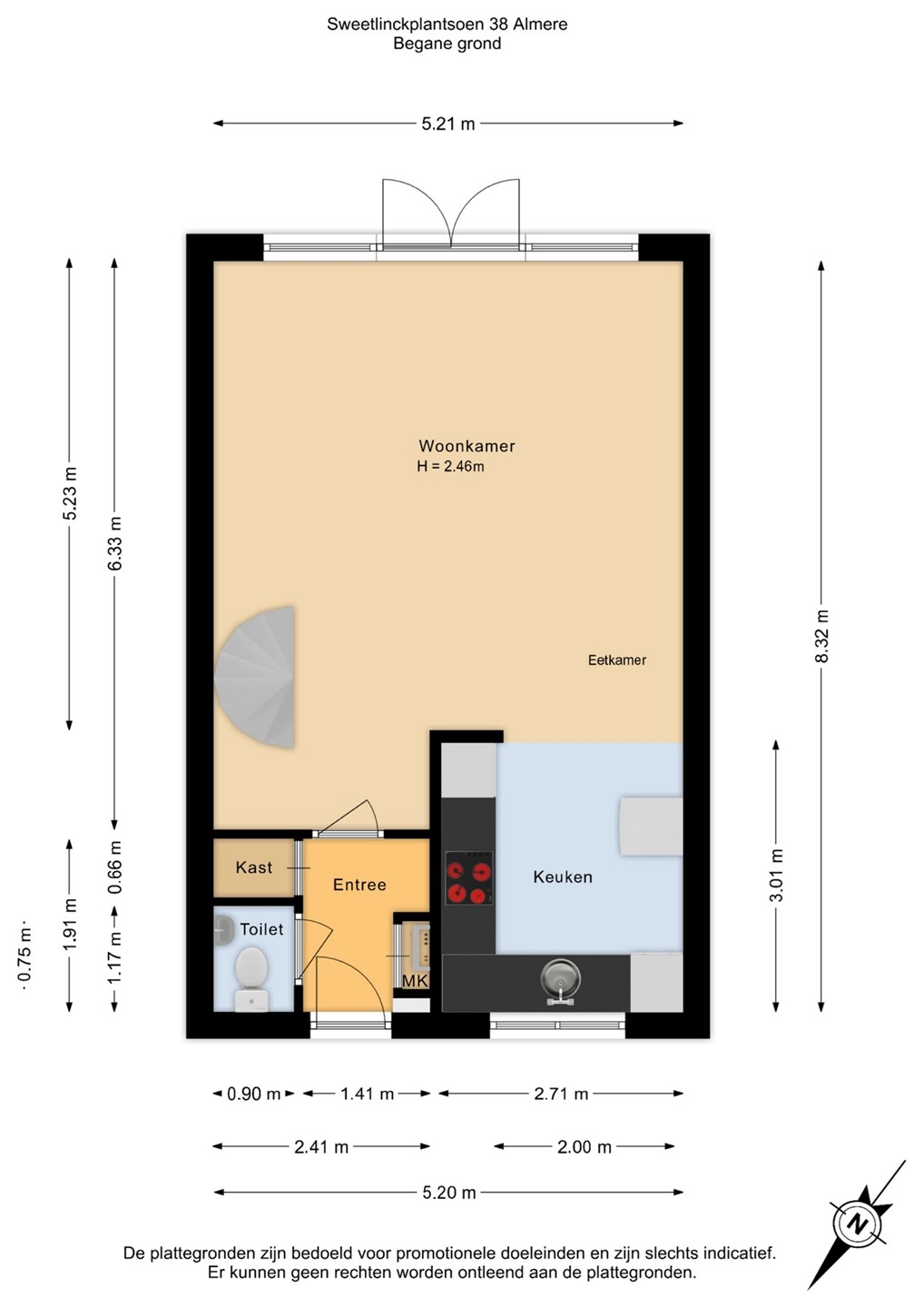
Begane grond:
Via de verzorgd aangelegde voortuin bereik je de woning. In de hal vind je de meterkast, een toilet, handige bergkast en de toegang tot de woonkamer. De tuingerichte woonkamer is gelegen aan de achterzijde en biedt een mooi uitzicht op de achtertuin. Dankzij de grote raampartijen en openslaande deuren is de ruimte heerlijk licht en verbonden met buiten. Aan de voorzijde bevindt zich de keuken in praktische hoekopstelling, voorzien van veel werk- en bergruimte en uitgerust met diverse inbouwapparatuur, waaronder een keramische kookplaat, afzuigkap, oven, magnetron en vaatwasser; de koelkast staat los opgesteld. De begane grond is geheel afgewerkt met een warme houten vloer, wat bijdraagt aan de sfeervolle uitstraling.

Eerste verdieping:
Via de wenteltrap bereik je de eerste verdieping. Vanaf de overloop heb je toegang tot drie slaapkamers en de badkamer. De slaapkamers zijn van verschillend formaat, voldoende ruim en goed in te delen. De badkamer is opvallend ruim en volledig betegeld. Verder is deze voorzien van een douchecabine, zwevend toilet en wastafel met handige kastencombinatie.

Tweede verdieping:
Via de vaste trap bereik je de tweede verdieping. Op de overloop vind je de wasmachineaansluiting en extra bergruimte achter de knieschotten. Daarnaast bevindt zich hier de vierde slaapkamer. Deze kamer is ideaal als werk-, hobby- of logeerkamer. Met zowel een praktische bergvliering als bergruimte achter de schotten is deze verdieping verrassend functioneel én veelzijdig.

Tuin:
De voortuin (noordwest) is verzorgd aangelegd en geeft de woning een nette uitstraling. De ruime achtertuin ligt gunstig op het zuidoosten en is ingericht met een combinatie van bestrating en groene plantenborders. Achterin de tuin staat een houten berging en via de achterom is de tuin praktisch bereikbaar. Dankzij de zonnige ligging is dit een heerlijke plek om te ontspannen en te genieten van de warme dagen.

Interesse? Neem snel contact op voor een bezichtiging en ervaar zelf het wooncomfort van deze woning!

Algemeen:
- 110m2 woonoppervlakte
- Centrale ligging nabij scholen, openbaar vervoer, station en centrum Muziekwijk
- Perfecte woning voor starters en jonge gezinnen
- Energielabel A
- 4 slaapkamers
- Mogelijkheid om gemeubileerd aan te kopen
- Aanvaarding in overleg

Disclaimer: Alhoewel zorgvuldig samengesteld, kunnen er aan deze tekst geen rechten worden ontleend. Wij staan dan ook niet in voor de juistheid en volledigheid van de getoonde gegevens. De woning is ingemeten volgens de normen vastgelegd in de NEN 2580. Toch kunnen er altijd verschillen ontstaan tussen de opgegeven maten en de werkelijkheid. Indien de maten voor u belangrijk zijn nodigen wij u van harte uit de maten op voorhand op juistheid te controleren. Het meetrapport is beschikbaar en ter inzage.

ZonZone

Close

Recently viewed