slide
Outstanding Agents. Outstanding Results. DIVA staat voor ‘Ster’: wij willen dan ook uitblinken in optimale service en kwaliteit
New for sale

For sale: Polderplein 3, 2731 ER Benthuizen

€439,000
Type of residence House, single-family house, terraced house
Plot size 139 m²
Liveable area 100.1 m²
Acceptance By consultation
Status New for sale

Note

General

English below.

Wat een ruimte heeft deze fijne eengezinswoning!

De ligging is vlakbij de karakteristieke dorpskern met diverse winkels op loopafstand en nabij de polders van het Groen Hart, het rustige Bentwoud, de golfbaan en diverse uitvalswegen naar Zoetermeer, Leiden, Alphen aan de Rijn en Utrecht.

De woning beschikt over een heerlijke tuin aan zowel de voor- als achterzijde én een... More info
  • Features

    All characteristics
    Type of residence House, single-family house, terraced house
    Construction period 1970
    Status New for sale
  • Location

Features

Offer
Reference number 00775
Asking price €439,000
Status New for sale
Acceptance By consultation
Construction
Type of residence House, single-family house, terraced house
Type of construction Existing estate
Construction period 1970
Roof materials Tiles
Rooftype Front gable
Isolations Insulated glazing
Surfaces and content
Plot size 139 m²
Floor Surface 100.1 m²
Content 334 m³
External surface area storage rooms 30.6 m²
Layout
Number of floors 3
Number of rooms 5 (of which 4 bedrooms)
Number of bathrooms 1 (and 1 separate toilet)
Outdoors
Location On a quiet street, Residential area
Garden
Type Back yard
Condition Normal
Garden 2 - Type Front yard
Garden 2 - Condition Normal
Energy consumption
Energy certificate A
Boiler
Type of boiler Nefit Topline
Heating source Gas
Year of manufacture 2015
Combiboiler Yes
Boiler ownership Owned
Features
Water heating Central heating system, Electric boiler
Heating Air conditioning, Central heating
Bathroom facilities Toilet
Has AC Yes
Garden available Yes
Has a storage room Yes
Has sliding doors Yes
Has solar panels Yes
Cadastral informations
Cadastral designation Benthuizen B 2148
Area 139 m²
Range Entire lot
Ownership Full ownership

Description

English below.

Wat een ruimte heeft deze fijne eengezinswoning!

De ligging is vlakbij de karakteristieke dorpskern met diverse winkels op loopafstand en nabij de polders van het Groen Hart, het rustige Bentwoud, de golfbaan en diverse uitvalswegen naar Zoetermeer, Leiden, Alphen aan de Rijn en Utrecht.

De woning beschikt over een heerlijke tuin aan zowel de voor- als achterzijde én een enorme schuur waar je naar hartenlust kunt hobbyen, klussen of extra spullen kunt opbergen.

De voortuin is extra ruim doordat er een groot stuk snippergrond bij hoort. Dit betekent dat jij het onderhoud verzorgt, terwijl de grond eigendom blijft van de gemeente. Zo geniet je van een prachtig, groen uitzicht op jouw eigen met zorg aangelegde tuin.

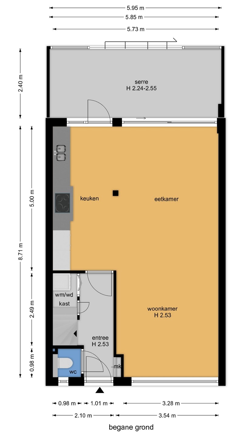
Voor de exacte indeling en indicatieve maatvoering verwijzen wij je graag naar de plattegronden achter de fotoreportage.

Indeling:

Begane grond:
Via de ruime voortuin bereik je de entree van de woning. In de hal bevinden zich het toilet en een praktische kast met de opstelling voor de wasmachine en droger.

Vanuit de hal kom je in de ruime en lichte doorzonwoonkamer met aangebouwde serre. De vloer van de woonkamer is geïsoleerd (voorzijde houten vloer, serre op beton) en afgewerkt met een fraaie parketvloer. Daarnaast is de woonkamer voorzien van airconditioning, wat zorgt voor extra comfort.

De later aangebouwde serre is bereikbaar via een schuifpui en zorgt voor veel extra licht in de woonkamer. Hier ligt een tegelvloer en heb je een mooie verbinding met de tuin.

De sfeervolle achtertuin beschikt over maar liefst twee ruime schuren, ideaal voor opslag, hobby’s of kluswerk.

De landelijke open keuken is uitgerust met diverse inbouwapparatuur, waaronder een oven (2023), inductiekookplaat (2023), afzuigkap en koelkast.

Eerste etage:

Via de overloop bereik je de kamers op deze verdieping.

Aan de achterzijde bevindt zich een kleinere slaapkamer met houten vloer.
De slaapkamer aan de voorzijde geeft tevens toegang tot de ruime master bedroom welke aan de achterzijde ligt. Deze kamer beschikt over een groot terras, een vaste kastenwand en airconditioning. Beide kamers zijn voorzien van een nette laminaatvloer.

Verder is er een eenvoudige badkamer met douche en toilet.

Tweede etage:

Op de tweede verdieping vind je een kamer en een overloop met over de volledige breedte een dakkapel aan de achterzijde, wat zorgt voor veel extra ruimte en licht.

Op de overloop bevinden zich een wastafel en de opstelling voor de CV-ketel.
Deze gehele verdieping is voorzien van een houten vloer.

Bijzonderheden:

- Bouwjaar 1970
- Eigen grond
- Energielabel A
- Vloer begane grond geïsoleerd
- Dak geïsoleerd
- 2 airco's aanwezig ( 1 in de woonkamer en 1 in de slaapkamer
- Voortuin met diverse fruitbomen heeft groot stuk snippergrond welke door de huidige bewoner keurig onderhouden wordt.
- 13 zonnepanelen aanwezig ( eigendom )
- Wasmachine/ droger opstelling in aparte kast in de hal begane grond
- Vernieuwde elektra en gasleiding
- Hard houten kozijnen ( voorzijde geschilderd in 2025, achterzijde 2024 )
- Waterpomp in de hal om de kruipruimte droog te houden
- Nefit Topline ketel 2015 eigendom
- Warm water boiler in de keuken
- Koper dient de objectinformatie met aanvullende clausules te aanvaarden
- Oplevering in overleg

De vermelde informatie is van algemene aard en is niet meer dan een uitnodiging om de woning te bezichtigen of om in onderhandeling te treden. Hoewel deze tekst en plattegrond met zorg zijn samengesteld zijn wij niet aansprakelijk voor eventuele onjuistheden. De toegepaste Meetinstructie sluit verschillen in meetuitkomsten niet volledig uit, door bijvoorbeeld interpretatieverschillen, afrondingen of beperkingen bij het uitvoeren van de meting. Aan de inhoud van deze informatie kunnen geen rechten worden ontleend.
De foto's en plattegronden zijn eigendom van De Huizenbemiddelaar Den Haag/ Verkoop

English.

What a spacious family home this lovely is!

It is located close to the characteristic village center with various shops within walking distance, and near the polders of the Groen Hart, the peaceful Bentwoud, the golf course, and various arterial roads to Zoetermeer, Leiden, Alphen aan de Rijn, and Utrecht.

The house features a delightful garden at both the front and rear, as well as a huge shed where you can indulge in hobbies, DIY projects, or store extra items to your heart's content.

The front garden is extra spacious because it includes a large piece of shared land. This means you take care of the maintenance, while the land remains the property of the municipality. This allows you to enjoy a beautiful, green view of your own carefully landscaped garden.

For the exact layout and indicative dimensions, we kindly refer you to the floor plans behind the photo report.

Layout:

Ground floor:
You reach the entrance to the house via the spacious front garden. The hall contains the toilet and a practical cupboard with space for the washing machine and dryer. From the hallway, you enter the spacious and bright living room with an attached conservatory. The living room floor is insulated (wooden floor at the front, concrete in the conservatory) and finished with beautiful parquet flooring. Additionally, the living room is equipped with air conditioning, ensuring extra comfort.

The conservatory, added later, is accessible via sliding doors and provides plenty of extra light in the living room. It features a tiled floor and offers a lovely connection to the garden.

The charming backyard features no fewer than two spacious sheds, ideal for storage, hobbies, or DIY projects.

The country-style open kitchen is equipped with various built-in appliances, including an oven (2023), induction hob (2023), extractor hood, and refrigerator.

First floor:

The rooms on this floor are accessed via the landing.

At the rear, there is a smaller bedroom with wooden flooring.
The bedroom at the front also provides access to the spacious master bedroom, which is located at the rear. This room features a large terrace, a built-in wardrobe, and air conditioning. Both rooms feature neat laminate flooring.

Furthermore, there is a simple bathroom with a shower and toilet.

Second floor:

On the second floor, you will find a room and a landing with a dormer window spanning the full width at the rear, providing plenty of extra space and light.

A washbasin and the setup for the central heating boiler are located on the landing.
This entire floor features wooden flooring. Particulars:

- Year of construction 1970
- Freehold
- Energy label A
- Ground floor insulated
- Roof insulated
- 2 air conditioners present (1 in the living room and 1 in the bedroom)
- Front garden with various fruit trees features a large area of ​​chippings which is neatly maintained by the current resident.
- 13 solar panels present (owned)
- Washing machine/dryer setup in a separate cupboard in the ground floor hallway
- Renewed electrical and gas wiring
- Hardwood window frames (front painted in 2025, rear 2024)
- Water pump in the hallway to keep the crawl space dry
- Nefit Topline boiler 2015 owned
- Hot water boiler in the kitchen
- The buyer is required to accept the property information with additional clauses
- Completion in consultation

The information provided is of a general nature and is merely an invitation to view the property or to enter into negotiations. Although this text and floor plan have been compiled with care, we are not liable for any inaccuracies. The The applied Measurement Instructions do not completely rule out differences in measurement results, for example due to differences in interpretation, rounding, or limitations in carrying out the measurement. No rights can be derived from the content of this information.

The photos and floor plans are the property of De Huizenbemiddelaar Den Haag/ Verkoop

ZonZone

Close

Recently viewed