slide
Outstanding Agents. Outstanding Results. DIVA staat voor ‘Ster’: wij willen dan ook uitblinken in optimale service en kwaliteit
New for sale

For sale: Schacht 18, 6641 PW Beuningen

€389,000
Type of residence House, single-family house, terraced house
Plot size 135 m²
Liveable area 103 m²
Acceptance By consultation
Status New for sale

Note

General

Bent u op zoek naar een betaalbare en moderne gezinswoning op een fijne locatie in Beuningen? Deze goed onderhouden tussenwoning met veel daglicht en vrij uitzicht aan de voorzijde is centraal gelegen dichtbij allerlei voorzieningen.

De woning verkeert in uitstekende staat, beschikt over 4 slaapkamers, energielabel A en kunststof kozijnen met HR++ beglazing.
De huidige eigenaars vertellen... More info
  • Features

    All characteristics
    Type of residence House, single-family house, terraced house
    Construction period 1985
    Status New for sale
  • Location

Features

Offer
Reference number 05604
Asking price €389,000
Status New for sale
Acceptance By consultation
Construction
Type of residence House, single-family house, terraced house
Type of construction Existing estate
Construction period 1985
Roof materials Tiles
Rooftype Front gable
Isolations Full
Surfaces and content
Plot size 135 m²
Floor Surface 103 m²
Kitchen area 6.42 m²
Content 344 m³
External surface area storage rooms 11 m²
External surface area 1 m²
Layout
Number of floors 3
Number of rooms 5 (of which 4 bedrooms)
Number of bathrooms 1 (and 1 separate toilet)
Garden
Type Back yard
Main garden Yes
Orientation North west
Has a backyard entrance Yes
Condition Beautifully landscaped
Energy consumption
Energy certificate A
Boiler
Type of boiler Nefit
Heating source Gas
Year of manufacture 2015
Combiboiler Yes
Boiler ownership Owned
Features
Water heating Central heating system
Heating Central heating, Partial Floor heating
Ventilation method Mechanical ventilation
Kitchen facilities Built-in equipment
Bathroom facilities Sink, Toilet, Walkin shower, Washbasin furniture
Has AC Yes
Has fibre optical cable Yes
Garden available Yes
Has a storage room Yes
Has solar panels Yes
Has ventilation Yes
Cadastral informations
Cadastral designation Beuningen K 969
Area 135 m²
Range Entire lot
Ownership Full ownership

Description

Bent u op zoek naar een betaalbare en moderne gezinswoning op een fijne locatie in Beuningen? Deze goed onderhouden tussenwoning met veel daglicht en vrij uitzicht aan de voorzijde is centraal gelegen dichtbij allerlei voorzieningen.

De woning verkeert in uitstekende staat, beschikt over 4 slaapkamers, energielabel A en kunststof kozijnen met HR++ beglazing.
De huidige eigenaars vertellen u waarom het voor hen hier altijd zo prettig wonen is geweest:

Wij hebben hier altijd met ontzettend veel plezier gewoond, in een fijne, rustige en sociale buurt waar buren elkaar kennen en een praatje maken. Voor de deur ligt een speeltuin waar kinderen veilig kunnen spelen en doordat er alleen bestemmingsverkeer is, is het heerlijk rustig in de straat. Het Heuvepark ligt om de hoek evenals dierenpark ‘De Hosterd’. Scholen en het centrum liggen op loopafstand, wat wij altijd erg prettig hebben gevonden met opgroeiende kinderen. Aan de voor- en achterzijde genieten we van een vrij uitzicht, wat zorgt voor veel gevoel van ruimte en privacy. Het is een plek waar we ons vanaf de eerste dag thuis hebben gevoeld.
We hebben het huis in de loop der jaren met veel plezier stapje voor stapje verbeterd en gunnen de nieuwe bewoners net zoveel woonplezier als wij al die jaren gehad hebben.

Een heerlijk familiehuis dus, zoals dat ook voor de huidige bewoners altijd geweest is!

Nieuwsgierig geworden? Maak dan snel een afspraak voor een vrijblijvende bezichtiging. U bent van harte welkom.

Layout

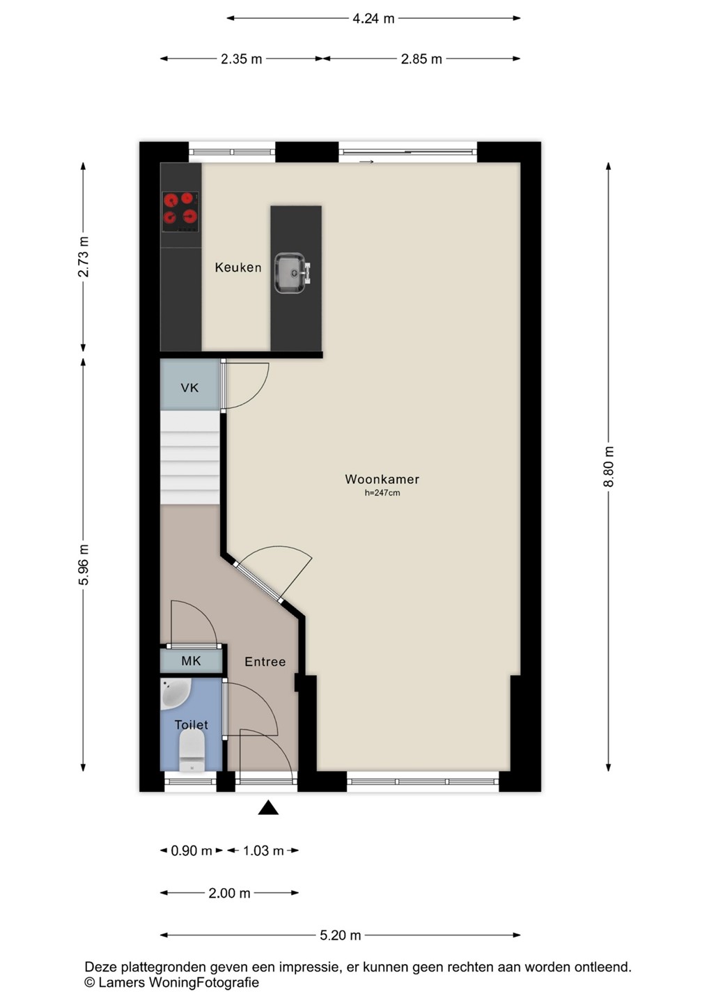
Op de begane grond komt u binnen in de hal met toilet en vernieuwde meterkast (2021).

De lichte woonkamer met vloerverwarming biedt ruimte voor een fijne zithoek en een gezellige eethoek direct bij de open keuken. De keuken is in 2017 vernieuwd en vormt een gezellige centrale plek in de woning, van waaruit je de gehele woonkamer kunt overzien. Deze keuken is van alle gemakken voorzien:
- Bosch vaatwasser
- Zanussi elektrische oven met magnetronfunctie
- Zanussi koelvriescombinatie
- Zanussi inductie kookplaat
- Wave inbouw afzuigkap

De kunststof schuifpui aan de achterzijde biedt toegang tot de onderhoudsvriendelijke achtertuin op het zonnige zuidoosten.

First floor

Op de eerste verdieping liggen 3 slaapkamers en de badkamer. Alle slaapkamers zijn voorzien van kunststof kozijnen met HR ++ beglazing. De badkamer (2007) is voorzien van een inloopdouche, zwevend toilet, wastafel met meubel en een apart bergmeubel.

Second floor

De zolderverdieping is bereikbaar via een dichte vaste trap. Door de grote dakkapel met rolluiken is er op deze verdieping een lichte en royale vierde slaapkamer gecreëerd met extra opbergruimte. Op de voorzolder is er bergruimte, een mogelijke werkplek en plaats voor de wasmachine, de droger en de CV -installatie. Ook hangt hier de airco, op een strategische plek, zodat ook de eerste verdieping op de warme dagen gekoeld wordt.

Garden

De tuin ziet er zomer en winter heel netjes uit! Een zeer royaal terras met zonnescherm waar je met velen kunt zitten, strakke borders en moderne schuttingen aan beide zijden. Hier heb je nauwelijks onderhoud aan. Een uitgebouwde stenen berging met achter uitgang zorgt ten slotte voor veel bergruimte voor de fietsen en de tuinspullen.

Details

* Uitbouw voorzijde, dakkapel en berging
* Vloerverwarming begane grond
* 9 zonnepanelen (2023)
* airco (2023)
* moderne keuken (2017)
* Vernieuwd toilet (2011)
* schilderwerk schuur (2023)

Floor plans

ZonZone

Close

Recently viewed