slide
Outstanding Agents. Outstanding Results. DIVA staat voor ‘Ster’: wij willen dan ook uitblinken in optimale service en kwaliteit
New for sale

For sale: Couperinstraat 20, 2901 RA Capelle aan den IJssel

€795,000
Type of residence House, single-family house, semi-detached linked House
Plot size 218 m²
Liveable area 171.5 m²
Acceptance By consultation
Status New for sale

Note

General

Ontdek deze royale en goed onderhouden twee-onder-een-kapwoning, gelegen op een unieke en rustige locatie in de geliefde wijk ’s-Gravenland.

De woning beschikt over een ruime, lichte woonkamer met open keuken, momenteel drie slaapkamers (met mogelijkheid tot vijf), een royale badkamer en een zolderverdieping met dakkapel.
Daarnaast zijn er zowel een voor- als fraai aangelegde achtertuin aa... More info
  • Features

    All characteristics
    Type of residence House, single-family house, semi-detached linked House
    Construction period 1997
    Status New for sale
  • Location

Features

Offer
Reference number 00420
Asking price €795,000
Status New for sale
Acceptance By consultation
Construction
Type of residence House, single-family house, semi-detached linked House
Type of construction Existing estate
Construction period 1997
Certifications Energy performance advice
Isolations Full, Insulated glazing
Surfaces and content
Plot size 218 m²
Floor Surface 171.5 m²
Content 607 m³
External surface area storage rooms 5 m²
External surface area 2.9 m²
Layout
Number of floors 3
Number of rooms 4 (of which 3 bedrooms)
Number of bathrooms 1 (and 2 separate toilets)
Outdoors
Location City centre, Near public transport, Near school
Garden
Type Front yard
Orientation East
Condition Beautifully landscaped
Garden 2 - Type Back yard
Garden 2 - Main garden Yes
Garden 2 - Orientation South
Garden 2 - Condition Beautifully landscaped
Energy consumption
Energy certificate A
Boiler
Type of boiler Nefit
Heating source Gas
Year of manufacture 2012
Combiboiler Yes
Features
Number of parking spaces 1
Water heating Central heating system
Heating Central heating, Partial Floor heating, Solar collectors
Ventilation method Mechanical ventilation
Has an alarm Yes
Has cable TV Yes
Garden available Yes
Has an internet connection Yes
Has a storage room Yes
Has a skylight Yes
Has solar panels Yes
Has ventilation Yes
Cadastral informations
Cadastral designation Capelle Aan Den Ijssel E 2298
Area 218 m²
Range Entire lot
Ownership Full ownership

Description

Ontdek deze royale en goed onderhouden twee-onder-een-kapwoning, gelegen op een unieke en rustige locatie in de geliefde wijk ’s-Gravenland.

De woning beschikt over een ruime, lichte woonkamer met open keuken, momenteel drie slaapkamers (met mogelijkheid tot vijf), een royale badkamer en een zolderverdieping met dakkapel.
Daarnaast zijn er zowel een voor- als fraai aangelegde achtertuin aanwezig.

Parkeren is eenvoudig op eigen terrein, waar tevens een laadpaal voor een elektrische auto aanwezig is.

De ligging is ideaal: in een rustige straat, maar toch nabij alle dagelijkse voorzieningen zoals basisscholen, winkels (o.a. winkelcentrum Puccinipassage), sportverenigingen, speeltuinen, dierenparkje en openbaar vervoer.

Metrostation Capelsebrug bevindt zich op circa 5 minuten loopafstand en biedt een directe verbinding naar het centrum van Rotterdam, Alexandrium en Capelle aan den IJssel.

Waarom kiezen voor deze woning:
• Bouwjaar 1997
• Energielabel A
• Gelegen op eigen grond (ca. 218 m²)
• Woonoppervlakte ca. 171,5 m²
• Inhoud ca. 607 m³
• Vier slaapkamers (mogelijkheid tot vijf)
• Dakkapel op zolder
• Volledig geïsoleerd en voorzien van 12 zonnepanelen
• Verwarming en warm water via cv-ketel (2012)
• Houten kozijnen (deels kunststof) met dubbele beglazing
• Inpandige berging en extra houten berging in de achtertuin
• Fraai aangelegde, royale tuin met beschutte ligging
• Achtertuin grenzend aan een park met speelvoorzieningen en visvijver
• Voorzien van horren in woonkamer en slaapkamers
• Oplevering in overleg

De wijk ’s-Gravenland staat bekend om haar groene karakter en prettige woonomgeving. Er zijn diverse speeltuinen en recent vernieuwde groenvoorzieningen, wat bijdraagt aan een verzorgde uitstraling van de buurt.

Binnen 15 minuten bereikt u het centrum van Rotterdam en via metro en trein bent u ook snel in onder andere Den Haag en Hoek van Holland. Daarnaast zijn uitvalswegen zoals de A16, A20 en N210 eenvoudig bereikbaar. Voor ontspanning fietst u zo naar het Kralingse Bos of het Hitlandgebied.

Huidige bewoners:
‘Toen wij 27 jaar geleden dit huis gingen bezichtigen, waren wij meteen heel enthousiast.
Een droomhuis wat ons betreft: een 2 onder 1 kap met zoveel ruimte, licht, rustig gelegen, eigen parkeerplaats, mooie wijk, vlakbij winkels, water en veel groen. Echt de Wow factor.
We kwamen uit een appartement dus er moesten wel wat meubels bij.
Met ontzettend veel plezier hebben wij hier gewoond en genoten van de ruimte in het huis en de tuin.
Nu breekt er een nieuwe periode aan. Het is het tijd om kleiner te gaan wonen. Best lastig als je zoveel ruimte bent gewend.
Wij wensen de nieuwe bewoners net zoveel plezier toe zoals wij dat hebben gehad. En we gaan dit prachtige huis en de ruimte zeker missen.’

Layout

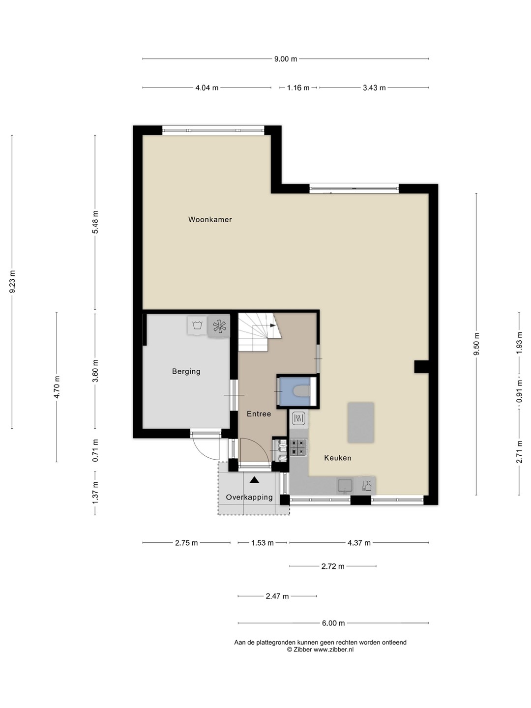
Begane grond

Entree met overkapping, hal, toilet en inpandige berging.
Ruime woonkamer met open keuken en parketvloer (Siberisch lariks).
De woonkamer is voorzien van 2 elektrische zonneschermen.

First floor

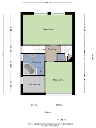
Overloop, twee ruime slaapkamers (mogelijkheid tot drie), vergrote badkamer en separaat toilet.

Met inloopkast in 1 slaapkamer

Second floor

Overloop, één ruime slaapkamer (mogelijkheid tot twee), voorzien van twee dakramen en een dakkapel.

Garden

Voortuin met parkeergelegenheid op eigen terrein.

Achtertuin is fraai aangelegd, deels onderheid en voorzien van een houten berging. Grenzend aan een openbaar groen gebied dat naar verwachting eind april 2026 volledig wordt afgerond.

Details

Gebruiksoppervlak Wonen
De getoonde gebruiksoppervlakten zijn berekend conform de in de branche geldende meetinstructie.
Deze is gebaseerd op de NEN 2580. Deze meetinstructie is bedoeld om een meer eenduidige manier van meten toe te passen en het geven van een indicatie van de gebruiks - oppervlakte. De meetinstructie sluit verschillen in meetuitkomsten niet volledig uit, door bijvoorbeeld interpretatieverschillen, afrondingen of beperkingen bij het uitvoeren van de meting.
Koper kan geen rechten ontlenen aan de opgegeven maatvoering/meetrapport. Koper wordt voor het tot stand komen van een overeenkomst in de gelegenheid gesteld de woning op te (laten) meten.

Internet-/Brochure-informatie
De brochure alsmede de middels internet verstrekte informatie is met de grootst mogelijke zorg samengesteld en geeft een zo duidelijk mogelijk beeld van de woning die wordt aangeboden.
Verkoper en/of verkopend makelaar geven geen garantie op volledige juistheid van deze informatie. Koper wordt nadrukkelijk in de gelegenheid gesteld de woning en apparatuur voor het tot stand komen van een overeenkomst te inspecteren op merk, type en werking.

Rechtsgeldige koopovereenkomst pas ná ondertekening
Een mondelinge overeenstemming tussen de particuliere verkoper en de particuliere koper is niet rechtsgeldig. Met andere woorden: er is geen koop. Er is pas sprake van een rechtsgeldige koop als de particuliere verkoper en de particuliere koper de koopovereenkomst hebben ondertekend. Dit vloeit voort uit artikel 7:2 Burgerlijk Wetboek. Een bevestiging van de mondelinge overeenstemming per e-mail of een toegestuurd concept van de koopovereenkomst wordt overigens niet gezien als een ‘ondertekende koopovereenkomst’.

Floor plans

Brochure(s) and other documents

ZonZone

Close

Recently viewed