slide
Outstanding Agents. Outstanding Results. DIVA staat voor ‘Ster’: wij willen dan ook uitblinken in optimale service en kwaliteit
Sold subject to conditions

Sold subject to conditions: Rolderstraat 59, 7849 PB De Kiel

€525,000
Type of residence House, single-family house, semi-detached house
Plot size 3,666 m²
Liveable area 212 m²
Acceptance By consultation
Status Sold subject to conditions

Note

General

Rolderstraat 59 De Kiel
Bosrijk wonen

In het buitengebied tussen de Kiel en Schoonloo ligt deze fraaie woonboerderij, type twee-onder-een-kapwoning op 3.666 m2 eigen grond. De woning heeft vrij uitzicht op de landerijen aan de voorzijde en uitzicht op een groene omgeving aan de achterzijde.

Vanuit de chalet in de achtertuin geniet je van een uitzicht op je eigen paarden, kippen of schape... More info
  • Features

    All characteristics
    Type of residence House, single-family house, semi-detached house
    Year of construction 1952
    Status Sold subject to conditions
  • Location

Features

Offer
Reference number 63098/5875813
Asking price €525,000
Status Sold subject to conditions
Acceptance By consultation
Last updated 05 January 2026
Construction
Type of residence House, single-family house, semi-detached house
Type of construction Existing estate
Year of construction 1952
Rooftype Front gable
Isolations Floor, Insulated glazing, Roof, Wall
Surfaces and content
Plot size 3,666 m²
Floor Surface 212 m²
Content 636 m³
External surface area 15 m²
Garden area 3,400 m²
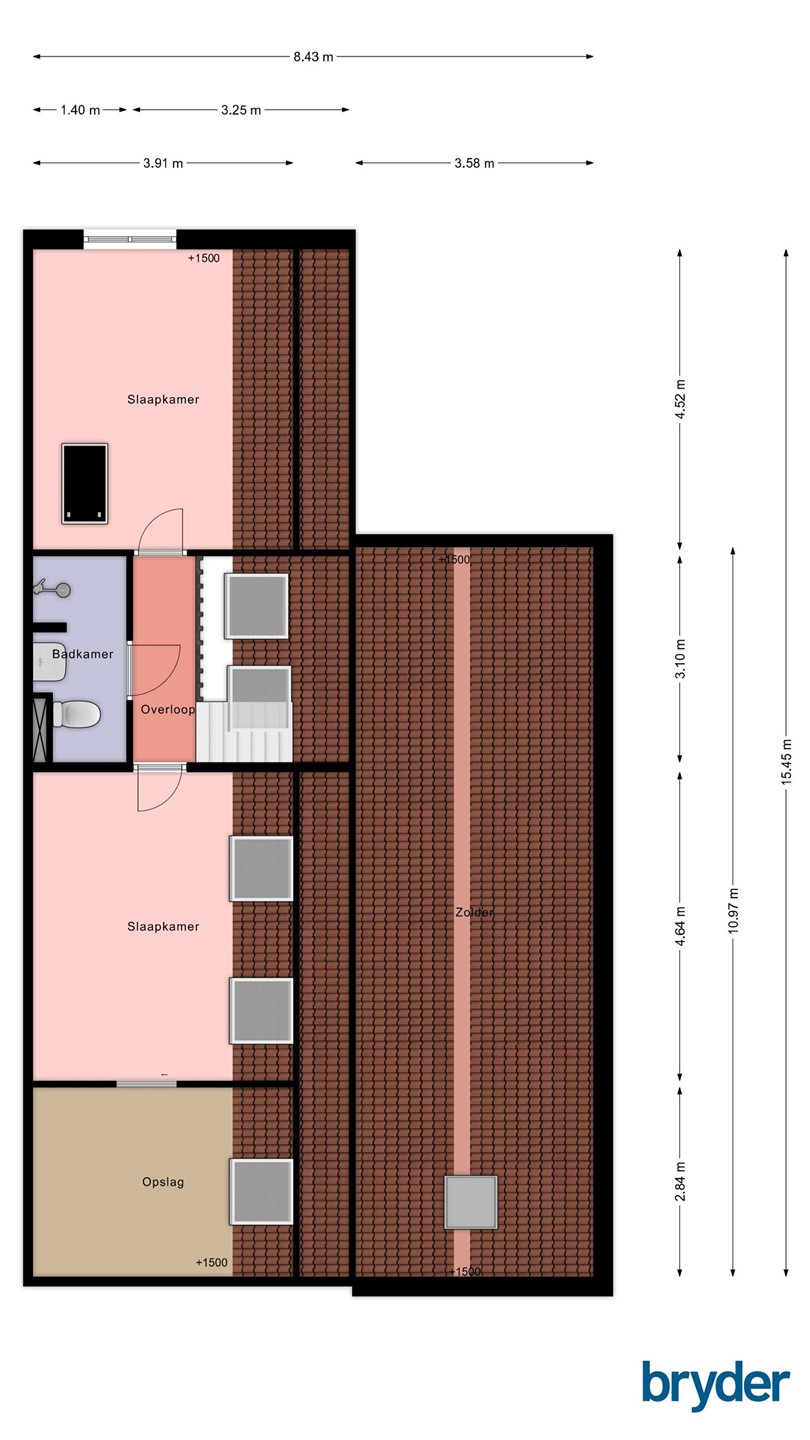
Layout
Number of floors 2
Number of rooms 4 (of which 2 bedrooms)
Outdoors
Location Country side, Forested area, Outside village, Unobstructed view
Garden
Type Back yard
Main garden Yes
Orientation South
Has a backyard entrance Yes
Condition Normal
Energy consumption
Energy certificate A
Features
Water heating Central heating system
Bathroom facilities Bath, Toilet
Garden available Yes
Has a storage room Yes

Description

Rolderstraat 59 De Kiel
Bosrijk wonen

In het buitengebied tussen de Kiel en Schoonloo ligt deze fraaie woonboerderij, type twee-onder-een-kapwoning op 3.666 m2 eigen grond. De woning heeft vrij uitzicht op de landerijen aan de voorzijde en uitzicht op een groene omgeving aan de achterzijde.

Vanuit de chalet in de achtertuin geniet je van een uitzicht op je eigen paarden, kippen of schapen en de rustige groene omgeving. Vanuit het zandpad met naastgelegen fietspad rijd je met je paard en fiets of wandel je zo het bos van De Kiel in zonder de weg over te hoeven steken.

Oprit
Naast de woning loopt de oprit tot aan de achterzijde. Hier is ruimte genoeg om meerdere auto’s te parkeren op eigen terrein of je trailer of bus uit het zicht te plaatsen.

Je bereikt de overdekte voordeur via de zijgevel van de woning en stapt een royale hal binnen met de fraaie trapopgang van de eerste verdieping. Hier bevindt zich ook een (gasten)toilet.

Leefruimte
De hal biedt toegang tot de royale leefruimte met aangrenzend de bijkeuken, de woonkeuken en de woonkamer. Als je de kamer binnenstapt, zie je direct mogelijkheden als je op zoek bent naar meer ruimte binnenshuis.

De deuren zijn de verbinding tot alle vertrekken, waardoor je de indeling kunt aanpassen. Zo behoren een eigen werkplek of slaapkamer op de begane grond tot de mogelijkheden.

In de bijkeuken vind je nu de aansluitingen voor een wasmachine en/of droger en een extra vriezer. De ruimte is groot genoeg om hier desgewenst een tweede badkamer van te maken.

De royale leefkeuken, een lichte open ruimte met balken in het zicht nodigen uit om te koken, te leven en te genieten. De landelijke inbouwkeuken is voorzien van veel werkruimte en een werkeiland met een spoelbak, een 6-pits gasstel, een oven en een Amerikaanse koelkast.

In de keuken is ruimte voor een hele grote eettafel, je kunt je familie en vrienden zeker uitnodigen voor een kerstdiner.

In de doorloop van de keuken naar de woonkamer is ruimte volop voor een buffetkast of piano. De woonkamer aan de voorzijde is over de breedte van de woning gesitueerd en biedt ruimte voor een grote hoekbank.

Vanuit de woonkamer stap je via de openslaande deuren de overdekte veranda op. Zie je jezelf hier al zitten met je gezin of vrienden met de barbecue aan?

Hal
We zijn weer rond en staan weer in de hal. Met de trap bereik je de eerste verdieping met vide. Vanuit de open trap heb je contact met beneden. De twee dakramen zorgen voor extra lichtinval.

Slapen
Er zijn twee royale slaapkamers aanwezig op de eerste verdieping en een tussengelegen badkamer. De slaapkamer aan de voorzijde heeft een fantastisch uitzicht op de landerijen, de slaapkamer aan de achterzijde heeft een zeer royale berging. Deze berging kan ingericht worden als walk-in closet of als badkamer. De aansluitingen, zoals water en riool zijn al voorbereid.

Baden
De tussengelegen badkamer in moderne kleurstelling is voorzien van een douchebad, een zwevend toilet, een wastafelmeubel en een designradiator.

De begane grond is voorzien van vloerverwarming en op de verdieping zijn er drie radiatoren aanwezig. Daarnaast zijn er op de begane grond en verdieping airco’s die kunnen koelen en verwarmen.

Genoeg over de fijne leefruimte binnen. We laten je buiten zien.

Tegenover de woning langs de oprit is een houten schuur geplaatst voor je fietsen. Aan het einde van de oprit gaat het perceel over in de breedte. De tuin is nu ingericht om paarden bij huis te hebben, inclusief stallingsruimte, welke ter overname worden aangeboden en een weiland. Ideaal is de nostalgische waterput voor de watervoorziening voor je tuin of je dieren.

Aan de rechterzijde staat een vrijstaande en geïsoleerde chalet van ongeveer 45 m2, compleet met thermopane beglazing en openslaande deuren naar een terras. De huidige eigenaren hebben deze ruimte intern vergroot en als werkruimte in gebruik gehad.

Ga je liever genieten van je uitzicht, dan kun je deze chalet weer inrichten en de keuken en badkamer weer in gebruik nemen. Hiermee maak je de chalet ook geschikt als mantelzorgwoning en wordt dubbele bewoning interessant. Informeer altijd bij de gemeente naar de mogelijkheden hieromtrent.

De Kiel
Het dorp bevindt zicht op de Rolderrug, een verhoging in het landschap ongeveer 20 m boven zeeniveau. Het ontstaan van de rug is niet eenduidig verklaard. Aan het einde van de ijstijd bij het smelten van het landijs bleven stenen achter. In die tijd ontstonden ook de vier parallelle ruggen: de Zijerrug, de Rolderrug, de rug van Tynaarlo en de Hondsrug. Zij geven het landschap haar licht glooiende karakter. Door de Rolderrug stroomt het water van De Kiel weg in drie richtingen: het noorden, het zuiden en het westen. We hebben hier dan ook te maken met een bijzondere waterhuishouding. Op de Rolderrug bevinden zich van noordwest naar zuidoost onder andere de plaatsen Rolde, Grolloo, Schoonloo, De Kiel, Schoonoord, Noord-Sleen en Sleen.
In de Kiel is ook een dorpsvereniging die onder andere wandelingen, een jaarlijkse grote rommelmarkt en andere activiteiten organiseert voor jong en oud.

Ligging
Ondanks de groene ligging is Schoonoord met voorzieningen zoals school, sportverenigingen, supermarkt en diverse restaurants gemakkelijk, via het naastgelegen fietspad in 10 fietsminuten te bereiken. De bushaltes tegenover de woning brengen je naar station Emmen of Assen voor treinvervoer naar Groningen, Zwolle en Utrecht.

Bijzonderheden:
- vloer-, muur- en dakisolatie
- veranda en stallen gebouwd (2020)
- glasvezel tot de meterkast (2021)
- dak geïmpregneerd (2022)
- zonnepanelen (2023)
- centraal stofzuigersysteem
- het woonoppervlakte van 212 m² is inclusief de chalet van 45 m²

Oplevering in overleg.

Meer informatie over de woning en de (leef)omgeving kun je vinden op rolderstraat59.nl.

Interesse? Maak dan een afspraak, we laten je deze woning graag zien.

Proclaimer
Zwanenburg Makelaardij is verantwoordelijk voor de inhoud van deze informatie en doet er alles aan deze actueel en juist te houden. Je kunt ervan uitgaan dat de teksten, kenmerken en maatvoeringen met de grootste zorgvuldigheid zijn opgesteld en berekend. Kom je desondanks toch iets tegen dat niet correct of verouderd is, dan stellen wij je reactie bijzonder op prijs.

ZonZone

Close

Recently viewed