slide
Outstanding Agents. Outstanding Results. DIVA staat voor ‘Ster’: wij willen dan ook uitblinken in optimale service en kwaliteit
Sold subject to conditions

Sold subject to conditions: Comfortabel appartement met buitenruimte in hartje Gorinchem!

€350,000
Address: Nieuwstad 2, 4201 GP Gorinchem
Type of residence Apartment, upstairs apartment, apartment
Liveable area 72 m²
Acceptance By consultation
Status Sold subject to conditions

Note

General

Comfortabel appartement met buitenruimte in hartje Gorinchem!

Dit appartement van 72 m2 is verdeeld over meerdere woonlagen en biedt een prettige combinatie van comfort, licht en een praktische indeling. De woning is herbouwd in 2002 en beschikt over een fijne buitenruimte op de bovenste verdieping. Je woont hier midden in de binnenstad van Gorinchem met alle voorzieningen op korte afstand.... More info
  • Features

    All characteristics
    Type of residence Apartment, upstairs apartment, apartment
    Construction period 2002
    Status Sold subject to conditions
  • Location

Features

Offer
Reference number 07007
Asking price €350,000
Service costs €83
Upholstered Not furnished
Furnishing Unfurnished
Status Sold subject to conditions
Acceptance By consultation
Last updated 27 February 2026
Construction
Type of residence Apartment, upstairs apartment, apartment
Floor 1st floor
Type of construction Existing estate
Construction period 2002
Rooftype Hipped
Isolations Full, Insulated glazing
Surfaces and content
Floor Surface 72 m²
Living area 26 m²
Kitchen area 5 m²
Content 264 m³
External surface area storage rooms 5 m²
External surface area 4 m²
Balcony 4 m²
Layout
Number of floors 2
Number of rooms 2 (of which 1 bedroom)
Number of bathrooms 1 (and 1 separate toilet)
Outdoors
Location Near public transport, Near school, On a quiet street
Energy consumption
Energy certificate B
Boiler
Type of boiler Intergas extreme 30 cw4
Heating source Gas
Year of manufacture 2023
Combiboiler Yes
Boiler ownership Owned
Features
Water heating Central heating system
Heating Central heating
Ventilation method Mechanical ventilation
Kitchen facilities Cooking island
Bathroom facilities Walkin shower, Washbasin furniture
Has a balcony Yes
Has fibre optical cable Yes
Has a storage room Yes
Has ventilation Yes
Association of owners
Registered at Chamber of Commerce Yes
Annual meeting Yes
Periodic contribution Yes
Reserve fund Yes
Maintenance forecast Yes
Home insurance Yes
Cadastral informations
Cadastral designation Gorinchem D 4340
Range Condominium
Index number 5

Description

Comfortabel appartement met buitenruimte in hartje Gorinchem!

Dit appartement van 72 m2 is verdeeld over meerdere woonlagen en biedt een prettige combinatie van comfort, licht en een praktische indeling. De woning is herbouwd in 2002 en beschikt over een fijne buitenruimte op de bovenste verdieping. Je woont hier midden in de binnenstad van Gorinchem met alle voorzieningen op korte afstand.
De ligging is zonder meer een pluspunt. De historische binnenstad van Gorinchem biedt een breed aanbod aan winkels, horeca en dagelijkse voorzieningen. Ook het NS-station, de vestingwallen en de rivier zijn eenvoudig te bereiken. Alles is op loopafstand, waardoor je hier heel comfortabel en centraal woont.

Wij adviseren je de brochure van deze woning te downloaden van onze website. Hierin tref je uitgebreide informatie met extra foto's evenals plattegronden en kadastrale gegevens.

Layout

Je komt binnen op de begane grond. Hier bevindt zich de berging, geschikt voor fietsen en extra opslag. Vanuit hier ga je via de trap naar boven, richting het appartement.

First floor

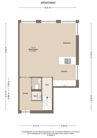
Op de eerste verdieping ligt de entree van de woning. Vanuit de hal zijn de woonkamer en keuken en het toilet bereikbaar.
De woonkamer is licht en prettig van formaat, met grote ramen die zorgen voor een open uitstraling en een fijne lichtinval. Er is voldoende ruimte voor zowel een zithoek als een eettafel.
De keuken in eikenhoutenlook sluit aan op de woonkamer en is praktisch ingericht. De keuken is uitgerust met een vaatwasser, combi-oven/magnetron en koelkast. Op het schiereiland ligt een 5 pits gaskookplaat. Door de open verbinding blijft er een fijne samenhang tussen koken en wonen. Perfect voor de gezellige dineravonden.
Naast de keuken is nog een ruime trapkast met volop opbergmogelijkheden.

Second floor

De tweede verdieping is ingericht als slaapverdieping. De slaapkamer is een rustige ruimte, met de kapconstructie in het zicht en vaste kastruimte.
De badkamer is verzorgd en voorzien van een inloopdouche en wastafelmeubel.
Vanaf deze verdieping is ook het balkon bereikbaar. Een beschutte buitenruimte waar je prettig buiten kunt zitten, met uitzicht over de stad.

Balcony

Een beschutte buitenruimte waar je prettig buiten kunt zitten, met uitzicht over de stad.

Details

De woning maakt deel uit van een kleine en actieve VvE. Er is sprake van een gezonde financiële balans en er wordt maandelijks € 83,- gereserveerd voor onderhoud en beheer.

Voor technische kenmerken en bijzonderheden verwijzen wij je naar de brochure.

Gorinchem is een historische vestingstad aan de Merwede en is meerdere keren verkozen tot mooiste vestingstad van Nederland. Met een prachtig oud stadscentrum, omringd door stadswallen en grachten, biedt Gorinchem een unieke woonomgeving waar historie en modern gemak samenkomen. De stad heeft meer dan 36.000 inwoners en beschikt over alle voorzieningen die je van een moderne stad mag verwachten: van basisscholen en middelbare scholen tot een breed scala aan winkels, horecagelegenheden en culturele instellingen.

Gorinchem is een uitstekende keuze voor forenzen. De stad ligt strategisch aan de snelwegen A15 en A27, waardoor steden als Utrecht, Rotterdam en Breda binnen 30 minuten te bereiken zijn. Bovendien heeft Gorinchem een treinstation met goede verbindingen naar omliggende steden. Voor wie houdt van het buitenleven, biedt de nabijgelegen Biesbosch volop mogelijkheden voor recreatie, zoals varen, wandelen en fietsen. Gorinchem combineert de voordelen van een stad met de charme van een historische omgeving, wat het een aantrekkelijke plek maakt om te wonen voor gezinnen en professionals.

Interesse gewekt? Schakel meteen je eigen aankoopmakelaar in.
Jouw aankoopmakelaar komt op voor jouw belang en bespaart je tijd, geld en zorgen.

Floor plans

Brochure(s) and other documents

ZonZone

Close

Recently viewed