slide
Outstanding Agents. Outstanding Results. DIVA staat voor ‘Ster’: wij willen dan ook uitblinken in optimale service en kwaliteit
New for sale

For sale: Hevel 5, 1967 JC Heemskerk

€675,000
Type of residence House, single-family house, terraced house
Plot size 135 m²
Liveable area 158.6 m²
Acceptance By consultation
Status New for sale

Note

General

Wonen in de Citadel van Heemskerk – stijlvol, comfortabel en centraal

Aan de geliefde Hevel 5 in Heemskerk ligt deze riante woning in de populaire Citadel, in een rustige, autoluwe straat. Met een woonoppervlakte van maar liefst 159 m² biedt dit huis volop ruimte voor comfortabel wonen. Het energielabel A zorgt voor een lage energierekening en een duurzaam, toekomstbestendig huis. Bij de won... More info
  • Features

    All characteristics
    Type of residence House, single-family house, terraced house
    Construction period 2005
    Status New for sale
  • Location

Features

Offer
Reference number 00048
Asking price €675,000
Upholstered Yes
Upholstered Upholstered
Status New for sale
Acceptance By consultation
Construction
Type of residence House, single-family house, terraced house
Type of construction Existing estate
Construction period 2005
Roof materials Tiles
Rooftype Gambrel
Certifications Energy performance advice
Isolations Full
Surfaces and content
Plot size 135 m²
Floor Surface 158.6 m²
Content 602 m³
Surface area other inner rooms 11.4 m²
Layout
Number of floors 3
Number of rooms 5 (of which 4 bedrooms)
Energy consumption
Energy certificate A
Boiler
Type of boiler Remeha
Heating source Gas
Year of manufacture 2005
Combiboiler Yes
Boiler ownership Owned
Features
Water heating Flow-through boiler
Heating Central heating, Heat recovery system
Ventilation method Natural ventilation
Has AC Yes
Cadastral informations
Cadastral designation Heemskerk F 962
Area 135 m²

Description

Wonen in de Citadel van Heemskerk – stijlvol, comfortabel en centraal

Aan de geliefde Hevel 5 in Heemskerk ligt deze riante woning in de populaire Citadel, in een rustige, autoluwe straat. Met een woonoppervlakte van maar liefst 159 m² biedt dit huis volop ruimte voor comfortabel wonen. Het energielabel A zorgt voor een lage energierekening en een duurzaam, toekomstbestendig huis. Bij de woning hoort één parkeerplaats op het afgesloten binnenterrein, waardoor gemak en veiligheid voor uw auto gegarandeerd zijn.

Een wijk met karakter – wonen in de Citadel
De Citadel staat bekend om zijn Amsterdamse School-stijl, fraaie gevels en de intieme opzet met pleintjes en groen. Hier woon je rustig en kindvriendelijk, met een gezellige buurtgemeenschap en alle voorzieningen binnen handbereik. Naast de dichtbijzijnde winkels, bakker en snackbar bevindt zich ook het Gezondheidscentrum Broekpolder, waar je terechtkunt voor onder andere de huisarts, fysiotherapie en tandarts. Verder zijn scholen, sportverenigingen en het treinstation vlakbij. De duinen en het strand van Heemskerk en Castricum liggen op fietsafstand en met de auto of trein ben je zo in Haarlem, Alkmaar of Amsterdam.

Bouwjaar: 2005
Woonoppervlakte: ca. 159 m²
Inhoud: ca. 602 m³
Perceel: 135 m²
Energielabel: A

Layout

Loop je mee?
Begane grond
Via de entree betreedt u de hal met een open trap, een uitgebreide meterkast (10 groepen en 3 aardlekschakelaars) en een zwevend toilet met fonteintje.

De riante, tuingerichte uitgebouwde woonkamer is voorzien van openslaande deuren naar de achtertuin. De gehele woonkamer heeft strakke wanden, een plafond met Amsterdamse plinten, een gietvloer en airconditioning, wat het geheel een moderne en sfeervolle uitstraling geeft.

Aan de voorzijde bevindt zich de vernieuwde keuken, uitgerust met diverse luxe inbouwapparatuur van gerenommeerde merken zoals Bosch, AEG en Liebherr. De keuken beschikt onder andere over een Quooker, vaatwasser, inductiekookplaat, afzuigkap, koel-vriescombinatie, combimagnetrons en sfeervolle inbouwspotjes.

First floor

Via de vaste trap bereikt u de eerste verdieping.
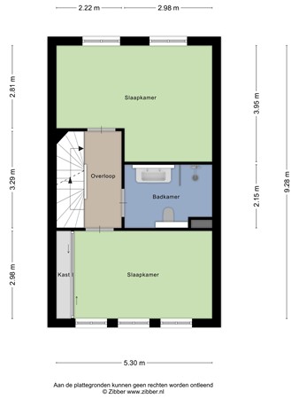
Op de overloop heeft u toegang tot alle vertrekken. De verdieping beschikt over twee ruime slaapkamers, één aan de achterzijde en één aan de voorzijde van de woning. Daarnaast treft u hier de moderne badkamer, volledig betegeld en uitgevoerd in een strakke, luxe stijl. De badkamer is voorzien van een inloopdouche met regen- en handdouche, een dubbel wastafelmeubel en een tweede toilet.

Second floor

Door middel van de vaste trap bereik je de tweede verdieping.
Op de ruime voorzolder, voorzien van airconditioning en de aansluiting voor witgoed, bevinden zich nog twee goed bemeten slaapkamers, één aan de voorzijde en één aan de achterzijde van de woning. De slaapkamer aan de achterzijde is uitgerust met een Velux-dakraam, dat zorgt voor extra lichtinval.

Other floors

Via een vlizotrap is de ruime zolder bereikbaar. Deze overige inpandige ruimte van maar liefst 11 m² biedt veel opbergruimte en herbergt tevens de opstelling van de cv-ketel en WTW-unit.

Garden

De achtertuin is gelegen op het noorden en biedt een rustige, lichte buitenruimte. Daarnaast is er een praktische, vrijstaande houten berging aanwezig, ideaal voor het opbergen van tuinspullen en fietsen.

Direct achter de woning ligt een gezamenlijke, groene binnenplaats met speeltuin, tafeltennistafel en zitbankjes. De binnenplaats is aan beide kanten afgesloten met een hek - een fantastische plek voor kinderen om veilig te spelen en voor buren om elkaar te ontmoeten

Details

2025: Nieuwe schutting
2024: Twee nieuwe airconditioningsunits en nieuw schildwerk aan de voorzijde
2020: Vernieuwde keuken en uitgebreide meterkast
2019: Nieuw wastafelmeubel in de badkamer
2018: Gietvloer in de woonkamer en slaapkamers

- Energielabel A;
- Ruime maatvoering;
- Privé parkeerplaats;
- Aanvaarding in overleg;
- Vier royale slaapkamers;
- Kindvriendelijke omgeving;
- Twee airconditioningsunits;
- Gewilde ligging in de Citadel.

Floor plans

ZonZone

Close

Recently viewed