slide
Outstanding Agents. Outstanding Results. DIVA staat voor ‘Ster’: wij willen dan ook uitblinken in optimale service en kwaliteit
Sold

Sold: Castorweg 193, 7557 KK Hengelo

€335,000
Type of residence House, single-family house, corner house
Plot size 173 m²
Liveable area 115 m²
Acceptance By consultation
Status Sold

Note

General

Goed onderhouden gezinswoning met 4 slaapkamers in Hengelo

Deze goed onderhouden woning heeft alles in huis voor comfortabel wonen! De sfeervolle uitgebouwde woonkamer met lichtkoepel zorgt voor veel licht en ruimte. Met in totaal 4 slaapkamers, een complete keuken en een moderne badkamer is dit een ideale gezinswoning. Daarnaast is er een multifunctionele berging met airco, die voorheen in... More info
  • Features

    All characteristics
    Type of residence House, single-family house, corner house
    Construction period 1963
    Status Sold
  • Location

Features

Offer
Reference number 1029
Asking price €335,000
Status Sold
Acceptance By consultation
Last updated 26 November 2025
Construction
Type of residence House, single-family house, corner house
Type of construction Existing estate
Construction period 1963
Roof materials Tiles
Rooftype Front gable
Isolations Party insulated glazing, Roof, Wall
Surfaces and content
Plot size 173 m²
Floor Surface 115 m²
Content 406 m³
External surface area storage rooms 15 m²
External surface area 14 m²
Layout
Number of floors 3
Number of rooms 5 (of which 4 bedrooms)
Number of bathrooms 1
Garden
Type Back yard
Main garden Yes
Orientation North east
Has a backyard entrance Yes
Condition Normal
Energy consumption
Energy certificate C
Boiler
Type of boiler Atag
Heating source Gas
Year of manufacture 2012
Boiler ownership Owned
Features
Number of parking spaces 1
Water heating Central heating system
Heating Central heating
Bathroom facilities Shower, Toilet, Washbasin furniture
Has fibre optical cable Yes
Garden available Yes
Has roller blinds Yes
Has a storage room Yes
Has a skylight Yes
Cadastral informations
Cadastral designation Hengelo (O) P 1944
Area 173 m²
Ownership Full ownership

Description

Goed onderhouden gezinswoning met 4 slaapkamers in Hengelo

Deze goed onderhouden woning heeft alles in huis voor comfortabel wonen! De sfeervolle uitgebouwde woonkamer met lichtkoepel zorgt voor veel licht en ruimte. Met in totaal 4 slaapkamers, een complete keuken en een moderne badkamer is dit een ideale gezinswoning. Daarnaast is er een multifunctionele berging met airco, die voorheen in gebruik is geweest als salon – ideaal voor werken aan huis, hobby of praktijkruimte.

De woning is merendeel voorzien van kunststof kozijnen en beschikt over een eigen oprit en een aangebouwde overkapping in de tuin, waar je het hele jaar door beschut kunt genieten.

Indeling
Begane grond
Via de entree kom je in de hal met trapkast, meterkast en trapopgang naar de eerste verdieping. Ook bevindt zich hier een eenvoudige toiletruimte. De sfeervolle uitgebouwde woonkamer is voorzien van een lichtkoepel en schuifpui naar de tuin. De dichte keuken is uitgerust met diverse inbouwapparatuur, waaronder een 5-pits gaskookplaat, combi-magnetron, koelkast, vaatwasser en afzuigkap. Aansluitend vind je de bijkeuken met wastafel, wasmachineaansluiting en opstelplaats voor de HR combi-ketel.

Eerste verdieping
De overloop biedt toegang tot drie slaapkamers en een moderne badkamer, voorzien van douchecabine, hangend toilet en wastafelmeubel.

Tweede verdieping
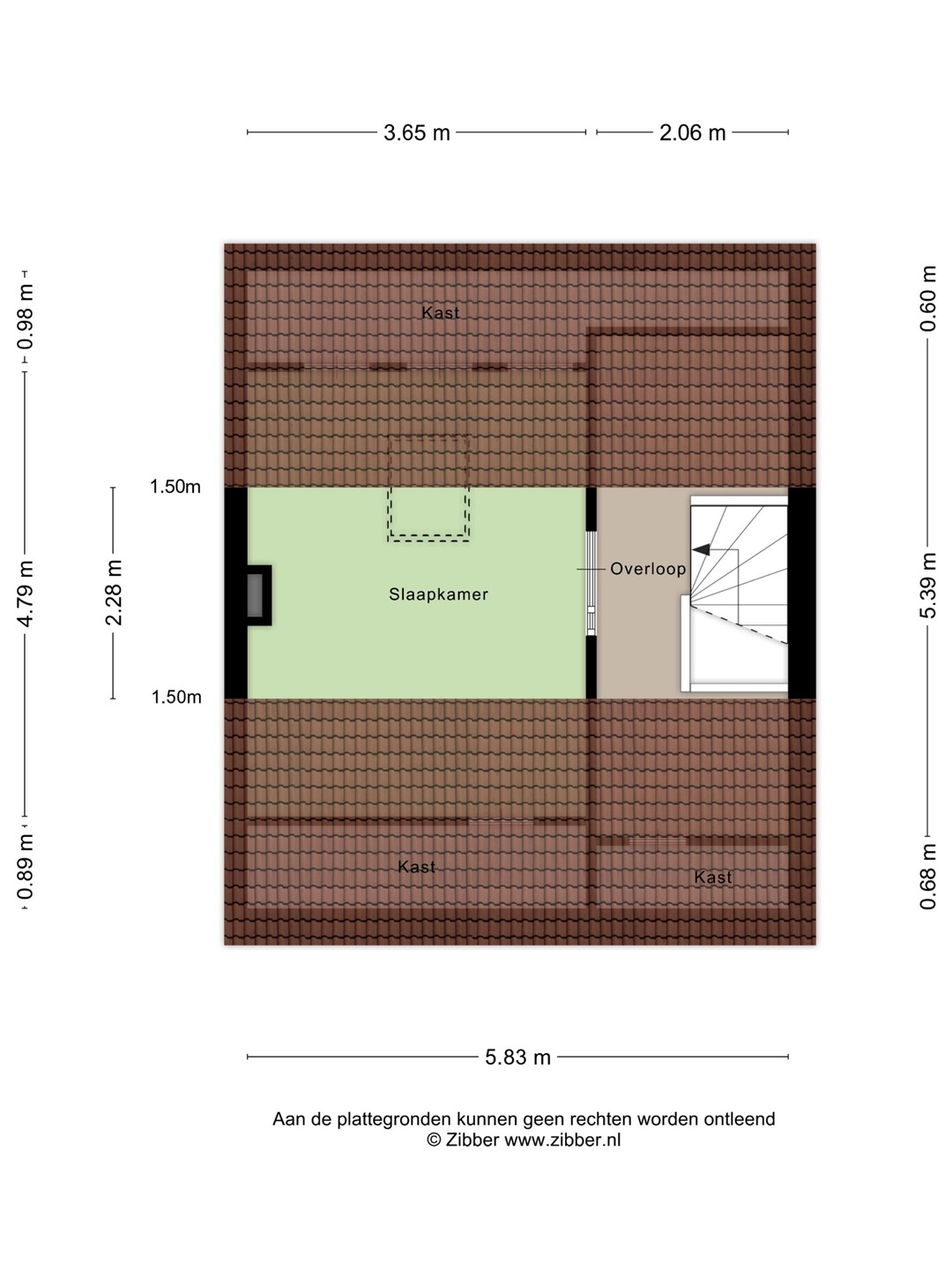
Via een vaste trap bereik je de tweede verdieping. Hier bevindt zich de vierde slaapkamer, voorzien van een dakraam.

Pluspunten van deze woning:
• Sfeervolle uitgebouwde woonkamer met lichtkoepel en schuifpui
• 4 slaapkamers
• Moderne badkamer
• Multifunctionele berging met airco (voorheen salon)
• Goed onderhouden en merendeel voorzien van kunststof kozijnen
• Eigen oprit
• Aangebouwde overkapping in de tuin

Een ruime en complete woning met veel mogelijkheden!

Overige informatie:
• In de koopakte zal een 10% waarborgsom of bankgarantie worden opgenomen.
• Er wordt een ouderdoms- en een asbestclausule in de te sluiten koopovereenkomst opgenomen.
• De koop is pas definitief wanneer beide partijen de koopovereenkomst getekend hebben.
• Aanvaarding: in overleg.

Deze presentatie is informatief en geheel vrijblijvend. Aan eventuele onjuistheden kunnen geen rechten worden ontleend.

Floor plans

Brochure(s) and other documents

ZonZone

Close

Recently viewed