slide
Outstanding Agents. Outstanding Results. DIVA staat voor ‘Ster’: wij willen dan ook uitblinken in optimale service en kwaliteit
Sold subject to conditions

Sold subject to conditions: Unieke kans voor starter!

€252,500
Address: Zandburen 23, 1777 CP Hippolytushoef
Type of residence House, single-family house, terraced house
Plot size 220 m²
Liveable area 75 m²
Acceptance By consultation
Status Sold subject to conditions

Note

General

Gezellig wonen op de rand van het dorp

Sta je aan het begin van jouw woonavontuur en droom je ervan om een eigen huis met ruimte, licht en uitzicht te bewonen? Pak dan nu je kans! Op Zandburen 23 in Hippolytushoef vind je deze tussenwoning uit 1959 waar je écht alle kanten mee op kunt. Het huis staat op een mooi perceel met een heerlijk diepe achtertuin van maar liefst 175 m². Hier voel je j... More info
  • Features

    All characteristics
    Type of residence House, single-family house, terraced house
    Construction period 1959
    Status Sold subject to conditions
  • Location

Features

Offer
Reference number 00516
Asking price €252,500
Status Sold subject to conditions
Acceptance By consultation
Last updated 25 November 2025
Construction
Type of residence House, single-family house, terraced house
Type of construction Existing estate
Construction period 1959
Roof materials Tiles
Rooftype Front gable
Isolations Largely insulated glazing, Wall
Surfaces and content
Plot size 220 m²
Floor Surface 75 m²
Content 300 m³
Surface area other inner rooms 24 m²
External surface area storage rooms 7 m²
Layout
Number of floors 3
Number of rooms 4 (of which 3 bedrooms)
Number of bathrooms 1 (and 1 separate toilet)
Outdoors
Location Near highway, Near public transport, Near school, Residential area, Unobstructed view
Garden
Type Back yard
Orientation West
Condition Normal
Garden 2 - Type Back yard
Garden 2 - Main garden Yes
Garden 2 - Orientation East
Garden 2 - Has a backyard entrance Yes
Garden 2 - Condition Normal
Energy consumption
Energy certificate D
Boiler
Type of boiler Vaillant EcoTec Classic
Heating source Gas
Year of manufacture 2015
Combiboiler Yes
Boiler ownership Owned
Features
Water heating Central heating system
Heating Central heating
Ventilation method Natural ventilation
Kitchen facilities Built-in equipment
Bathroom facilities Sink, Toilet, Walkin shower
Has cable TV Yes
Has a flue tube Yes
Garden available Yes
Has a phone line Yes
Has an internet connection Yes
Has a storage room Yes
Has a skylight Yes
Cadastral informations
Cadastral designation Wieringen C 7081
Area 220 m²
Range Entire lot
Ownership Full ownership

Description

Gezellig wonen op de rand van het dorp

Sta je aan het begin van jouw woonavontuur en droom je ervan om een eigen huis met ruimte, licht en uitzicht te bewonen? Pak dan nu je kans! Op Zandburen 23 in Hippolytushoef vind je deze tussenwoning uit 1959 waar je écht alle kanten mee op kunt. Het huis staat op een mooi perceel met een heerlijk diepe achtertuin van maar liefst 175 m². Hier voel je je meteen thuis.

Een zonnige tuin om in te dromen
En als je van buitenleven houdt, word je hier héél gelukkig. De achtertuin is ontzettend diep én zonnig. Barbecueën met vrienden, kinderen die kunnen spelen (of misschien wil je zelf een trampoline of een moestuintje?), je huisdier dat alle ruimte heeft. Of gewoon na een dag werken even bijkomen met een drankje in het avondzonnetje. Met zoveel vierkante meters tuin heb je altijd een rustig plekje.

Ruimte voor iedereen
De woning telt meerdere slaapkamers, een gezellige woonkamer en een aparte keuken. Door de grote ramen komt er volop daglicht binnen, wat zorgt voor een fijne, huiselijke sfeer. Hier kun je relaxen, je vrienden uitnodigen of juist even lekker alleen zijn.

Alles binnen handbereik
Wonen in Hippolytushoef betekent rustig leven met de belangrijkste voorzieningen in de buurt. Winkels, scholen en sportverenigingen: alles is lekker dichtbij. En wil je eens een dagje de stad in? Met de auto zit je zo op de uitvalswegen.

Kun je niet wachten om je verhuisdozen uit te pakken op Zandburen 23? Bel of mail ons, kom langs en laat je verrassen door alle mogelijkheden die dit huis jou biedt. Dit is jouw kans om groots te starten met een fijn huis én een geweldige tuin!

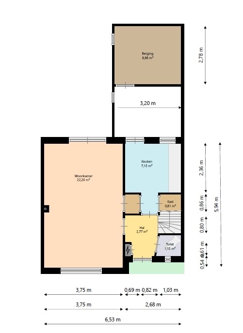
Layout

Via de hal met meterkast, toilet en trapopgang komt u in de straatgerichte woonkamer (ca. 23m2) met dubbele tuindeuren en de keuken. Via keuken gaat u naar de bijkeuken met achterentree en toegang tot de (fietsen)berging (ca. 9m2).

Keuken
De lichte keuken uit 2011 met kelderkast is voorzien van 3 bovenkastjes, 3 onderkastjes en een wasemkap.

Bijkeuken
De bijkeuken is voorzien een wasmachine aansluiting en een plavuizen vloer.

First floor

Ruime overloop, 3 slaapkamers van respectievelijk 11 , 11 en 5,5m2 en een nette badkamer.

Badkamer
De nette badkamer uit 2011 bestaat uit een douchehoek en vaste wastafel.

Other floors

Zolder
De zolder is bereikbaar via de vlizo-trap op de overloop van de eerste verdieping en is volledig afgetimmerd. Ook treft u hier de opstelling voor de HR-combiketel.

Garden

De diepe en zonnige tuin van ca. 21 meter is op het oosten gelegen en voorzien van een gazon, terras, borders, sierbestrating en een houten schutting.

Details

Geïnteresseerden
Als zich gelijktijdig meerdere geïnteresseerden aandienen geldt de volgende rangorde:
1) huurders die een huurwoning van Beter Wonen achterlaten;
2) lokale koopstarters niet zijnde huurders;
3) overige gegadigden.

Als meerdere geïnteresseerden zijn binnen de genoemde rangorde geldt het principe van “het beste bod”. Dit "beste bod" kan éénmalig schriftelijk, door de geïnteresseerde(n) worden ingediend bij Vonder Makelaardij.

Prijsvorming en zelfbewoningsplicht
Beter Wonen hanteert geen korting en geen terugkoopregeling bij de verkoop van haar woningen. Voorts is de getaxeerde verkoopprijs niet onderhandelbaar en volgt Beter Wonen de verkoopvoorwaarden zoals beschreven in de Woningwet. Hiervoor wordt in de verkoopakte een passage opgenomen in het kader van eigen bewoning en gebruik voor de kopende partij.

Zelfbewoningsplicht
Zelfbewoningsplicht is de vereiste dat de koper of een familielid in de eerste graad zelf de woning bewoont, voor een periode van ten minste drie jaar. Onder een eerstegraads familielid wordt verstaan: zowel bloedverwantschap in de eerste graad namelijk de (adoptie)ouder(s) en (adoptie)kinderen, als aanverwantschap in de eerste graad zoals de (adoptie)ouder(s) van de partner, de (adoptie)kind(eren) van de partner en de partner van de (adoptie)kinderen (schoonzoon of schoondochter). Hij/zij is niet bevoegd het verkochte of een gedeelte daarvan te verhuren of anderszins in gebruik af te staan. Verkoper kan koper in bijzondere gevallen toestemming verlenen om van het voormelde af te wijken. Koper dient hiertoe een verzoek in te dienen bij verkoper middels aangetekend schrijven.
Bij overtreding van het vorenstaande verbeurt koper zonder nadere ingebrekestelling en zonder rechtelijke tussenkomst een direct opeisbare boete van vijftig duizend euro (€ 50.000,00), door het enkele feit van niet-nakoming of overtreding van het vorenstaande. Voor de overtreding van de regels inzake de hoofdbewoning is naast genoemde boete voor elke dag dat de overtreding voortduurt eveneens een boete verschuldigd van twee honderd vijftig euro (€ 250,00) per dag.

Anti-speculatiebeding
Als de koper binnen drie jaar na het ondertekenen van de akte van levering de woning aan een derde overdraagt, zal hij gehouden zijn om 10% van de huidige koopsom aan de verkoper te betalen. Verkoper kan koper in bijzondere gevallen toestemming verlenen om van het voormelde af te wijken. Koper dient hiertoe een verzoek in te dienen bij verkoper middels aangetekend schrijven.

Een goede voorbereiding op de aankoop van je nieuwe woning is een waardebepaling c.q. verkoopadvies van de eigen woning.
Vonder Makelaardij komt graag vrijblijvend bij je langs. Bel vandaag nog om een afspraak in te plannen.
Je kunt ons bereiken op 0227-821460.

Floor plans

Brochure(s) and other documents

ZonZone

Close

Recently viewed