slide
Outstanding Agents. Outstanding Results. DIVA staat voor ‘Ster’: wij willen dan ook uitblinken in optimale service en kwaliteit
Under offer

Under offer: Fok 48, 1276 HX Huizen

€500,000
Type of residence House, single-family house, terraced house, drive-in house
Plot size 144 m²
Liveable area 128 m²
Acceptance By consultation
Status Under offer

Note

General

Op een mooie, centrale locatie in Huizen is deze ruime MIDDENWONING, type drive-in woning, gelegen. De woning staat op een fantastische plek in de wijk Stad en Lande, aan de achterzijde direct grenzend aan het water én met vrij uitzicht over het Stadspark. Eindelijk nog een plek waar de kinderen in deze autoluwe straat nog rustig buiten kunnen spelen. In de zomer lekker voetballen en in de wint... More info
  • Features

    All characteristics
    Type of residence House, single-family house, terraced house, drive-in house
    Construction period 1969
    Status Under offer
  • Location

Features

Offer
Reference number 00854
Asking price €500,000
Status Under offer
Acceptance By consultation
Last updated 04 November 2025
Construction
Type of residence House, single-family house, terraced house, drive-in house
Type of construction Existing estate
Construction period 1969
Roof materials Bitumen
Rooftype Flat
Isolations Cavity wall, HR glazing
Surfaces and content
Plot size 144 m²
Floor Surface 128 m²
Content 460 m³
Surface area other inner rooms 13.8 m²
External surface area 41.1 m²
Layout
Number of floors 3
Number of rooms 5 (of which 4 bedrooms)
Number of bathrooms 1 (and 1 separate toilet)
Outdoors
Location Near park, Residential area
Garden
Type Back yard
Main garden Yes
Orientation South east
Condition Normal
Garden 2 - Type Front yard
Garden 2 - Orientation North west
Garden 2 - Condition Normal
Energy consumption
Energy certificate B
Boiler
Heating source Gas
Year of manufacture 2022
Combiboiler Yes
Boiler ownership Owned
Features
Number of parking spaces 1
Water heating Central heating system
Heating Central heating
Parking Indoor
Has a balcony Yes
Garden available Yes
Has a garage Yes
Has roller blinds Yes
Has sliding doors Yes
Has solar panels Yes
Cadastral informations
Cadastral designation Huizen c 8150
Area 144 m²
Range Entire lot
Ownership Full ownership

Description

Op een mooie, centrale locatie in Huizen is deze ruime MIDDENWONING, type drive-in woning, gelegen. De woning staat op een fantastische plek in de wijk Stad en Lande, aan de achterzijde direct grenzend aan het water én met vrij uitzicht over het Stadspark. Eindelijk nog een plek waar de kinderen in deze autoluwe straat nog rustig buiten kunnen spelen. In de zomer lekker voetballen en in de winter lekker schaatsen achter de woning. In het Stadspark zijn onder andere de kinderboerderij De Warande, de openbare tennisbanen, sportvelden en de Waterspeeltuin gelegen. Wat een uniek uitzicht en schitterende ligging! De woonoppervlakte bedraagt 128 m². Het type drive-in woning heeft als kenmerk dat er erg veel praktische leefruimte aanwezig is, welke ook de flexibiliteit in zich heeft om andere indelingen tot stand te brengen. Een heerlijk gezinshuis welke ook mogelijkheden heeft voor inwoning en een kantoor-/praktijk aan huis situatie. De woning heeft een fijne achtertuin met een diepte van circa 12 meter welke op het Zuidoosten is gelegen. Op de eigen oprit is er de mogelijkheid om de auto te parkeren.

Layout

Entree, hal, garderobe, meterkast, deur naar de garage, woning brede en lichte tuinkamer met openslaande deuren naar de achtertuin (met een ruime gezellige overkapping). Deze tuinkamer is ook op te splitsen in een tweetal separate kamers.

First floor

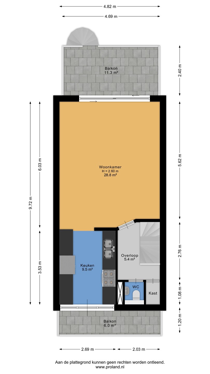
Overloop, vaste trapopgang naar de 2e verdieping, toilet met fonteintje en bergruimte, lichte woonkamer met een schuifpui naar het vergrootte balkon en met geweldig uitzicht op het groene stadspark, open keuken voorzien van diverse (inbouw)apparatuur als een 5 pits gasfornuis met oven en afzuigkap) en toegang naar het balkon aan de voorzijde.

Second floor

Overloop, vaste (berg)kast, 3 in grootte variërende slaapkamers waarvan 1 met een vaste schuifkast, badkamer met wastafelmeubel, toilet en aansluiting voor wasmachine en droger.

Balcony

2 balkons, 1 aan de voorkant en 1 aan de achterkant.

Garden

Voortuin (oprit) en ruime achtertuin met overkapping.

Details

- De garage is een open ruimte van circa 14 m² en is toegankelijk middels een elektrisch bedienbare garagedeur, werk/spoeltafel met warm en koud water.
- Perceeloppervlakte: 144 m²;
- Woonoppervlakte: 128 m²;
- Woning is grotendeels gerenoveerd en voorzien van vloerverwarming.
- Ruime (gezins-) woning met veel privacy en diverse gebruiksmogelijkheden;
- Fantastische ligging aan de achterzijde met vrij uitzicht over het water en het park;
- Het balkon aan de achterzijde is extra groot: 11 m² en geeft een prachtig uitzicht over het park;
- Goede mogelijkheid om te parkeren op eigen terrein;
- Centrale ligging: dicht bij de natuur (grenzend aan het Stadspark en het Gooisch Natuurreservaat met aansluiting op fiets- en wandelroutes), de winkelcentra, basis- en middelbare scholen, uitvalswegen A1 (ca 10 autominuten) en A27 (circa 5 autominuten) en overige voorzieningen;
- De asbestclausule en de ouderdomsclausule zullen in de koopovereenkomst worden opgenomen;
- Onder voorbehoud van gunning verkoper.

Floor plans

ZonZone

Close

Recently viewed