slide
Outstanding Agents. Outstanding Results. DIVA staat voor ‘Ster’: wij willen dan ook uitblinken in optimale service en kwaliteit
Sold subject to conditions

Sold subject to conditions: Meidoornstraat 17, 2351 NH Leiderdorp

€550,000
Type of residence House, single-family house, corner house
Plot size 124 m²
Liveable area 101 m²
Acceptance By consultation
Status Sold subject to conditions

Note

General

Deze verrassend ruime 5 kamer hoekwoning in de geliefde Kerkwijk biedt precies de mix van comfort, energiezuinigheid en sfeer die je zoekt. De Kerkwijk staat bekend om haar rustige karakter, vriendelijke straten en het dorpsgevoel waar bewoners zo van houden. Een wijk met historie, charme en vooral veel leefkwaliteit: je woont hier op loopafstand van winkels, scholen en het openbaar vervoer, ma... More info
  • Features

    All characteristics
    Type of residence House, single-family house, corner house
    Construction period 1953
    Status Sold subject to conditions
  • Location

Features

Offer
Reference number 05985
Asking price €550,000
Status Sold subject to conditions
Acceptance By consultation
Last updated 03 February 2026
Construction
Type of residence House, single-family house, corner house
Type of construction Existing estate
Construction period 1953
Roof materials Tiles
Rooftype Front gable
Isolations Cavity wall, Floor, Full, HR glazing, Insulated glazing, Roof, Wall
Surfaces and content
Plot size 124 m²
Floor Surface 101 m²
Content 380 m³
External surface area storage rooms 6 m²
External surface area 9 m²
Layout
Number of floors 3
Number of rooms 5 (of which 4 bedrooms)
Number of bathrooms 1 (and 1 separate toilet)
Outdoors
Location Near highway, Near public transport, Near school, Near shopping center, On a quiet street, Residential area, Sheltered location
Garden
Type Back yard
Main garden Yes
Orientation South west
Has a backyard entrance Yes
Condition Normal
Energy consumption
Energy certificate D
Features
Water heating Electric boiler
Heating Air conditioning, Electric heating, Partial Floor heating
Ventilation method Natural ventilation
Kitchen facilities Built-in equipment
Bathroom facilities Shower, Sink, Toilet, Washbasin furniture
Has AC Yes
Has cable TV Yes
Has fibre optical cable Yes
Garden available Yes
Has a phone line Yes
Has an internet connection Yes
Has roller blinds Yes
Has a storage room Yes
Has sliding doors Yes
Has solar panels Yes
Cadastral informations
Cadastral designation Leiderdorp A 9248
Area 124 m²
Range Entire lot
Ownership Full ownership

Description

Deze verrassend ruime 5 kamer hoekwoning in de geliefde Kerkwijk biedt precies de mix van comfort, energiezuinigheid en sfeer die je zoekt. De Kerkwijk staat bekend om haar rustige karakter, vriendelijke straten en het dorpsgevoel waar bewoners zo van houden. Een wijk met historie, charme en vooral veel leefkwaliteit: je woont hier op loopafstand van winkels, scholen en het openbaar vervoer, maar ook dicht bij groen en water. Het is een buurt waar kinderen veilig buiten spelen en buren elkaar nog echt kennen.
De woning zelf is door de jaren heen flink uitgebouwd en gemoderniseerd. Waaronder een luxe en moderne open hoekkeuken. Waar deze huizen oorspronkelijk compact waren, is hier door de dakopbouw en de serre aan de achterzijde verrassend veel extra woonruimte ontstaan—bij elkaar goed voor zo’n 101 m² woonoppervlak.

De woning is volledig voorbereid op de toekomst: gasloos, uitstekend geïsoleerd (spouwmuur-, vloer- én dakisolatie) en voorzien van 8 zonnepanelen plus een 8,5 kWh thuisbatterij. Verwarmen gebeurt via moderne airco’s, elektrische radiatoren en op de begane grond zelfs elektrische vloerverwarming. Dit zorgt niet alleen voor comfort, maar ook voor opmerkelijk lage maandlasten—slechts ongeveer ca. €50,- per maand bij huidig gebruik van verkopers. Daarnaast vind je HR++ glas in houten, kunststof én aluminium kozijnen, waardoor het huis nog energiezuiniger en comfortabeler is.

Van deze woning is ook een eigen website beschikbaar. Url van de website is straatnaam, dan een - en dan het huisnummer en dan .nl. Scan de QR code in de foto's. Behalve de foto’s op groot formaat zijn er ook allerlei handige tools. De relevante documentatie kan je hier vinden. Je kan ook zelf je afspraak maken via onze website of bv funda. Wel zo makkelijk.

Layout

Bij binnenkomst valt meteen de nette hal op met vernieuwde meterkast (o.a 3-fase) en een net toilet. Door naar de woonkamer. Bij binnenkomst zal je even nadenken en zien dat dit echt anders is dan anders. Het voelt bijzonder door de lichtinval en de open verbinding met de luxe keuken aan de voorzijde. Deze keuken is uitgerust met een enorme koelkast en vriezer, een stoomoven, een inductiekookplaat, de afzuigkap en de vaatwasser—helemaal klaar voor dagelijks gemak.
Aan de achterzijde is de woning uitgebouwd met een ruime serre, welke door de schuifpui echt onderdeel is van je woonkamer. Het is een heerlijke plek om te zitten. Via de schuifpui bereik je de zonnige achtertuin op het zuidwesten (ca. 51m2), met vrijwel de hele dag zon. Ideaal voor de zonliefhebber. Natuurlijk ontbreken de berging met elektra en een zij-om ook niet. Door naar de 1e etage.

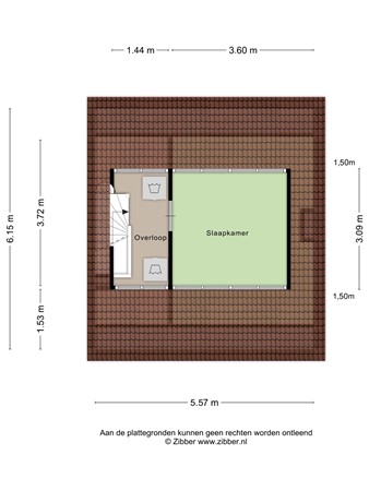
Hier vind je drie slaapkamers: twee goede kamers met een vaste kast in het midden en een kleinere kamer die ideaal is als babykamer of werkplek. De badkamer is netjes, praktisch ingedeeld en voorzien van een tweede toilet, wastafelmeubel en een brede douchecabine. Door naar de 2e etage.

Dankzij de dakopbouw is dit een volwaardige verdieping geworden. Je komt binnen op de voorzolder met veel bergruimte, de warmwaterboiler (76 liter) en opstelplaats voor de wasmachine. De grote zolderkamer heeft kunststof HR++ ramen en wordt verwarmd via airco. Ook de omvormer van de zonnepanelen bevindt zich hier.

Kortom wil je een (gasloos) energiezuinig huis, geen 1 uit een dozijn woning, dan ben je hier aan het goede adres.

Details

- Oplevering ca. maart 2026
- Gasloos en zeer energiezuinig, voorschot nu is € 50,- per maand. Label D officieel, maar we legen u uit hoe dat komt. Heeft te maken met regelgeving.
- Elektrisch verwarmd

Floor plans

Virtual tour

ZonZone

Close

Recently viewed