slide
Outstanding Agents. Outstanding Results. DIVA staat voor ‘Ster’: wij willen dan ook uitblinken in optimale service en kwaliteit
Sold

Sold: Tooroplaan 102, 3141 JT Maassluis

€435,000
Type of residence Apartment, flat with shared staircase, apartment
Liveable area 104 m²
Acceptance Immediately
Status Sold

Note

General

Hou je van vrij uitzicht met o.a. de skyline van Rotterdam ?
Zoek je een instap klaar appartement met een luxe badkamer en een fantastische keuken? Dan heb je hier wellicht je droom appartement gevonden.
  • Features

    All characteristics
    Type of residence Apartment, flat with shared staircase, apartment
    Construction period 1971
    Status Sold
  • Location

Features

Offer
Reference number 00222
Asking price €435,000
Service costs €391.50
Electricity €48.12
Heating €90
Water €15
Upholstered Yes
Upholstered Upholstered
Status Sold
Acceptance Immediately
Last updated 10 December 2025
Construction
Type of residence Apartment, flat with shared staircase, apartment
Floor 8th floor
Type of construction Existing estate
Construction period 1971
Roof materials Bitumen
Rooftype Flat
Isolations Insulated glazing
Surfaces and content
Floor Surface 104 m²
Content 320 m³
External surface area storage rooms 8 m²
External surface area 30 m²
Balcony 30 m²
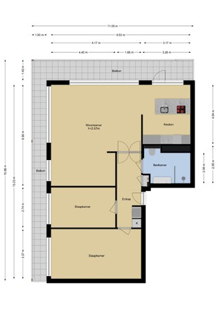
Layout
Number of floors 1
Number of rooms 3 (of which 2 bedrooms)
Number of bathrooms 1
Outdoors
Location Near highway, Near park, Near public transport, On waterway, Unobstructed view
Energy consumption
Energy certificate E
Features
Number of parking spaces 20
Number of covered parking spaces 1
Water heating Centrally supplied
Heating Collective heating
Bathroom facilities Sink, Walkin shower, Washbasin furniture
Parking Garagebox
Has a balcony Yes
Has an elevator Yes
Has fibre optical cable Yes
Has a garage Yes
Has a storage room Yes
Association of owners
Registered at Chamber of Commerce Yes
Annual meeting Yes
Periodic contribution Yes
Reserve fund Yes
Long term maintenance plan Yes
Maintenance forecast Yes
Home insurance Yes
Cadastral informations
Cadastral designation Maassluis B 1078
Range Condominium
Ownership Full ownership
Index number 29

Description

Hou je van vrij uitzicht met o.a. de skyline van Rotterdam ?
Zoek je een instap klaar appartement met een luxe badkamer en een fantastische keuken? Dan heb je hier wellicht je droom appartement gevonden.

Layout

Compleet gerenoveerd en klaar voor de toekomst
Waarom nog tijd of moeite besteden aan klussen, als je hier zó kunt intrekken?
In 2024 is deze woning tot in de puntjes vernieuwd. Strak afgewerkte plafonds en wanden, nieuwe vloeren, moderne installaties; het is allemaal gedaan, en dat voel je vanaf het eerste moment dat je binnenstapt. Ook qua isolatie zit je goed: de kunststof kozijnen zorgen voor minder onderhoud én een prettig binnenklimaat.

Wonen zonder zorgen
De lichte woonkamer vormt het kloppend hart van het appartement, waar je dankzij de grote ramen altijd geniet van een prettige lichtinval. Of je nu met het ochtendzonnetje een kop koffie drinkt of ’s avonds ontspant met een goed boek, hier voel je je meteen thuis. Vanuit de woonkamer heb je bovendien zicht op het groen in de buurt: rustgevend en fraai om te zien.

Frisse Ideeën voor koken en comfort
De ruime woonkamer grenst aan een fraaie eetkeuken, dé plek waar culinair genieten centraal staat. De smaakvolle keuken is van alle denkbare gemakken voorzien: een inductie kookplaat met geïntegreerde afzuiging (Bora Bora), zodat kook- en geurexplosies netjes binnenboord blijven. Verder tref je een apothekerskast voor al je kruiden en voorraad, een royaal koffie- en thee-eiland – ideaal voor een goed gesprek met een warme mok in de hand – plus hoogwaardige inbouwapparatuur zoals een koelkast, losse vriezer, vaatwasser en oven met grillfunctie. Zo wordt koken elke dag opnieuw een feestje.

Luxe badkamer voor fijnproevers
De badkamer is, als kers op de taart, uitgerust met een inloopdouche waar je heerlijk onder stapt. Wil je meer dan alleen wassen? Dan biedt de sunshower mét infraroodfunctie precies wat je nodig hebt voor een ontspannen moment.
Het eigentijdse toilet beschikt bovendien over een moderne spoelfunctie; hygiëne en comfort zijn hier vanzelfsprekend.

Ruimte om tot rust te komen
Het appartement heeft twee slaapkamers, waarvan de hoofdslaapkamer oorspronkelijk uit twee kamers is samengevoegd. Dat betekent: een zee van ruimte en volop mogelijkheden voor kasten, een knus zitje of simpelweg die grote boxspring waar je altijd al van droomde. De tweede slaapkamer is ideaal als logeerkamer, hobbyruimte of studeerplek – the sky is the limit!

Berging
Bij dit appartement is op de eerste etage een grote berging beschikbaar.

Balcony

Langs de slaapkamers tot aan de keuken loopt het balkon. Zo kan je in de ochtend genieten van de opkomende zon.

Details

Parkeren? Eigen garage beschikbaar!
Bij dit appartement heb je de unieke eerste keuze om een royale privé-garage aan te schaffen. Voor €40.000 staat je auto dus veilig en warm, met volop extra opbergruimte. Dat is wel zo prettig; je hoeft nooit meer op zoek naar een plekje in de buurt, en weet zeker dat je altijd dichtbij huis parkeert.

Een instapklaar appartement
Wil je graag onbezorgd en comfortabel wonen, met ruimte voor jezelf en genoeg privacy in een prettige wijk? Dan is dit appartement ideaal voor diegenen die zonder zorgen, in alle rust en luxe, willen genieten. Stel je het eens voor: een fris gerenoveerde woning met nét dat beetje extra, waar alles klopt vanaf dag één. Kom gerust kijken en proef de sfeer van jouw mogelijke, nieuwe thuis!

-Bijzonderheden-
• Luxe badkamer
• Sunshower met infrarood
• Luxe keuken met Bora Bora
• Taats gangdeur opent naar beide kanten
• Vrij uitzicht

-Dichtbij-
• Centrum Maassluis
• Winkelcentrum pallet
• Metro
• Snelweg

-Clausule-
Gezien de leeftijd van de woning wordt de Ouderdomsclausule opgenomen in de koopovereenkomst

Deze informatie is door ons met de nodige zorgvuldigheid samengesteld. Onzerzijds wordt echter geen enkele aansprakelijkheid aanvaard voor enige onvolledigheid, onjuistheid of anderszins, dan wel de gevolgen daarvan.

Floor plans

Brochure(s) and other documents

ZonZone

Close

Recently viewed